+ Lisa oma töö      

Otsid ehitajat "Korterite remont" valdkonnast?

Parima pakkumise ja teostaja leidmiseks lisa oma töö.

Hange on lõppenud!

Võitjaks osutus kasutaja ID 1280

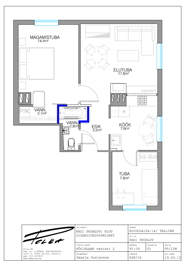
Vannitoa/wc ja esiku kapitaalremont

ID 26982

4495 vaatamist

Prindi

  • check Pakkumiste tegemine
    kuni 14.04.2013
  • check Võitja valik kuni
    21.04.2013
  • 3 Töö teostamine
    ja hinnang
Hanke lõpp: P, 14. aprill, 2013
Maakond: Harjumaa
Linn: Tallinn
Tööde algus: L, 15. juuni, 2013 (Soovituslik)
Tööde lõpp: P, 21. juuli, 2013 (Soovituslik)
Ehitusmaterjalid: Töö tegija poolt

Töö sisu

Vannitoa/WC ja esiku kapitaalremont 1912. a ehitatud kortermajas. Köögipõranda ja põrandakütte paigaldus. Vannitoa ja wc kokkuehitamine, seinte ümberpaigutamine. Dušinurga likvideerimine, torutööd (vanade torude eemaldamine, veetorude asukohtade muutmine, siugtoru asukoha vahetamine, kanalisatsioonitoru asukoha muutmine, pesumasina ühenduste ümberpaigaldamine), põrandakütte paigaldamine, põranda ja seinte plaatimine, vanni paigaldamine, sanitaartehnika paigaldamine (dušisegisti,valamu ja segisti, wc-pott), elektritööd. Madalale toodud lae lammutamine ja originaalkõrguse taastamine. Kahhelahju lammutamine. Esiku remont: põrandakütte paigaldamine, põranda plaatimine, seinte/lagede krohvimine/värvimine, elektritööd. Köögi remont: põrandakütte paigaldamine, põranda plaatimine. Jäätmete utiliseerimine.

Pildid, video ja failid

Hanke korraldaja: eraisik ID31791

Pakkumised

Pakkumisi kokku: 7

Ettevõte Summa Käibemaks Lisatud Vestlus
Kasutaja ikoon ID30328
Pakkuja profiil Väike nool paremale
1 400€ Ei sisalda Ei sisalda 01.04.2013 Vestlus (0)

Pakkumise kirjeldus:

Tere.Oleme valmis kohe alustada.Tööle garanti - 5 a.

Kasutaja ikoon ID1280
Pakkuja profiil Väike nool paremale
5 170€ Ei sisalda Ei sisalda 02.04.2013 Vestlus (0)

Pakkumise kirjeldus:

Tere!

Hinnas töö ja materjalid loetletud mahus, välja arvatud plaadid vajalikus koguses ja santehnilised paigaldised.

Kasutaja ikoon ID22801
Pakkuja profiil Väike nool paremale
3 575€ Ei sisalda Ei sisalda 04.04.2013 Vestlus (0)

Pakkumise kirjeldus:

Tööraha+materjalid,käibemaksu ei lisandu.

Kasutaja ikoon ID27816
Pakkuja profiil Väike nool paremale
3 000€ Ei sisalda Ei sisalda 08.04.2013 Vestlus (0)

Pakkumise kirjeldus:

Ei sisalda siugtoru,vanni ja san.tehnikat. plaat kuni 12 euri. Koostööle lootes

Kasutaja ikoon ID26037
Pakkuja profiil Väike nool paremale
2 500€ Ei sisalda Ei sisalda 14.04.2013 Vestlus (0)

Pakkumise kirjeldus:

tere.Pakkumises tööraha ja materjalide hind kohapeal peale tööde loetelu ülevaatamist.Parimatega

Kasutaja ikoon ID31049
Pakkuja profiil Väike nool paremale
3 600€ Ei sisalda Ei sisalda 14.04.2013 Vestlus (0)

Pakkumise kirjeldus:

hinnas tööraha ja materjal.Edu ja lugupidamisega.

Kasutaja ikoon ID30317
Pakkuja profiil Väike nool paremale
2 999€ Ei sisalda Ei sisalda 14.04.2013 Vestlus (0)

Küsimused hanke korraldajale

Küsimus: private ID28252   01.04.2013 12:08
Tere, mis sorti põrandaküttest käib jutt?
Lugupidamisega!

Teavita reeglite rikkumisest

Korraldaja vastus: 01.04.2013 20:56

betoonivalu sees olev vesiküte

Teavita reeglite rikkumisest

Küsimus: private ID31655   01.04.2013 15:53
Tere,kuidas on võimalik teile teha pakkumine materjalile,puuduvad mahud,kahjuks ei saa teha ju pakkumist selle najal,et teil on kanalisatsiooni toru vaja vedada kuhugi teise koha peale ja vee torud on ka vaja vedada kuhugi,puuduvad plaatide jaoks m2-d,mis plaati soovite jne. jne. kahjuks teile võimalik pakkuda tunni hinne ja hanke võitmisel ja kontaktide saamisel võimalik korter üle vaadata ja siis konkreetne hinnapakkumine esitada.

Teavita reeglite rikkumisest

Korraldaja vastus:
Hanke korraldaja ei ole küsimusele veel vastanud

Lisa küsimus

Lisa küsimus

Minu pakkumine

Reeglid

Pakkumise kirjelduse väli on mõeldud pakkumise detailsemaks lahti kirjutamiseks. Pikema teksti mugavaks sisestamiseks klikkige kasti paremal ülaservas oleval ikoonil.
Pakkumist tehes on keelatud postitada enda kontaktandmeid (nimi, telefon, aadress jne). Me jälgime ja analüüsime pakkumisi, et vältida pettuseid ja reeglite rikkumisi.
Rikkumise puhul kasutajakonto blokeeritakse.

 

Teisi töid samas valdkonnas

Valdkonnas "Korterite remont" on 2 aktiivset tööd

Vannitoa lampide paigaldus + erinevad pisiparandused korteris

Asukoht: Harjumaa, Tallinn
Aega jäänud: 1p 10h
Tehtud pakkumisi: 3

Korteri kapitaalremont ja ümberehitus (täielik siseviimistlus + elektritööd)

Asukoht: Järvamaa
Aega jäänud: 12p 10h
Tehtud pakkumisi: 0

Vanemad teated:

Vaata kõiki

Sellel veebilehel kasutatakse küpsiseid. Kasutamist jätkates nõustute küpsiste kasutamisega.

Sulge
 
Minu pakkumine

Reeglid

Pakkumise kirjelduse väli on mõeldud pakkumise detailsemaks lahti kirjutamiseks. Pikema teksti mugavaks sisestamiseks klikkige kasti paremal ülaservas oleval ikoonil.
Pakkumist tehes on keelatud postitada enda kontaktandmeid (nimi, telefon, aadress jne). Me jälgime ja analüüsime pakkumisi, et vältida pettuseid ja reeglite rikkumisi.
Rikkumise puhul kasutajakonto blokeeritakse.