+ Lisa oma töö      

Otsid ehitajat "Pinnasetööd" valdkonnast?

Parima pakkumise ja teostaja leidmiseks lisa oma töö.

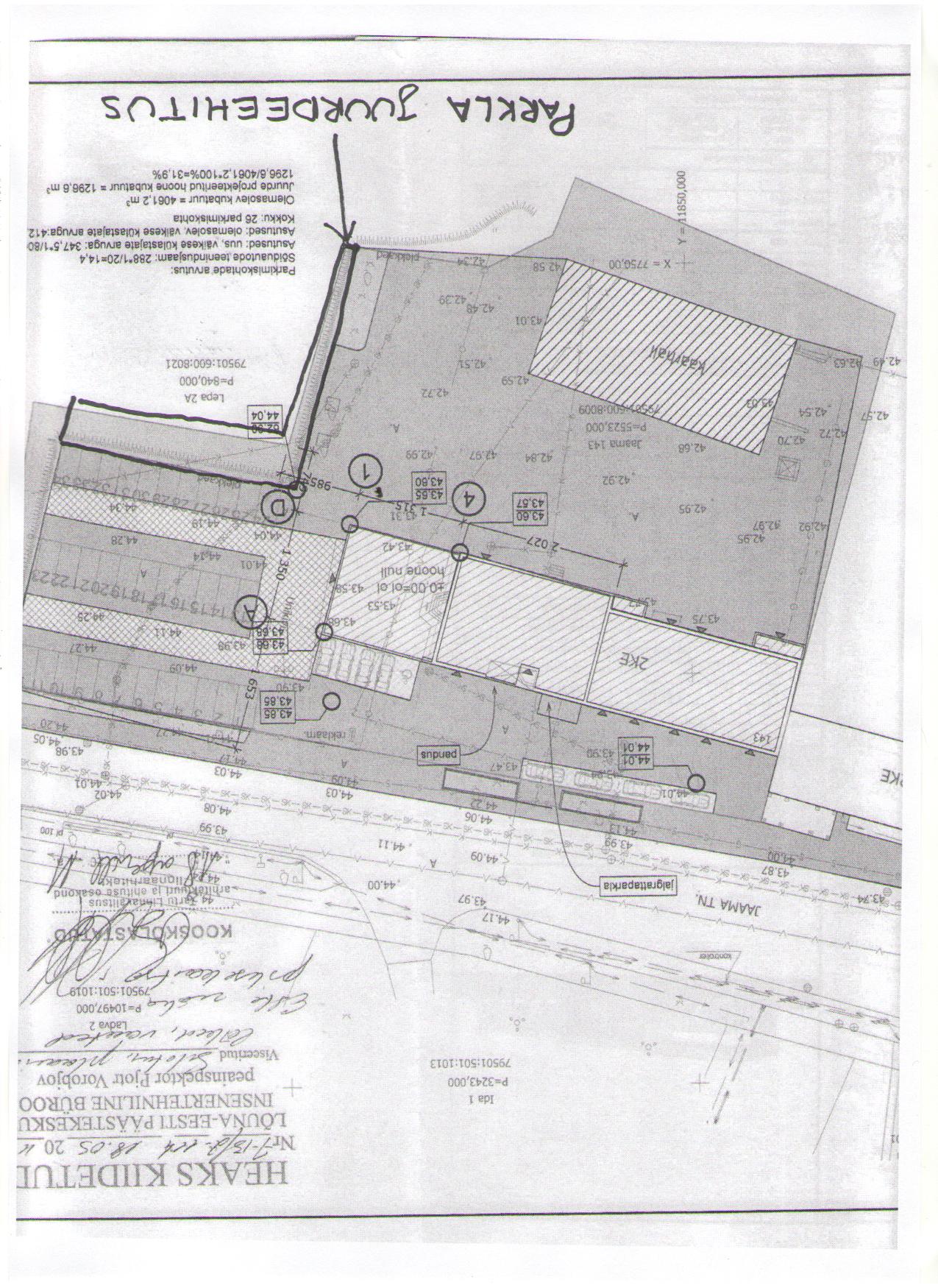
Parkla juurdeehitus

ID 27069

1763 vaatamist

Prindi

  • check Pakkumiste tegemine
    kuni 03.05.2013
  • check Võitja valik kuni
    10.05.2013
  • 3 Töö teostamine
    ja hinnang
Hanke lõpp: R, 3. mai, 2013
Maakond: Tartumaa
Linn: Tartu
Tööde algus: E, 20. mai, 2013 (Soovituslik)
Tööde lõpp: P, 16. juuni, 2013 (Soovituslik)
Ehitusmaterjalid: Töö tegija poolt

Töö sisu

Autode müügiplatsi juurdeehitus 32,5m x30,5m x 3m x 25,5m x 28,5m x 4,5m kõrguste vahe 2m.Piiripunktide mõõdistamine.Piirdeaia demonteerimine ja ajutise aia paigaldus.Täitepinnase vedu ja tihendamine, täiteliiva vedu ja tihendamine,killustiku vedu ja tihendamine ,sõelmete vedu ja tihendamine.Kõrguste ja kallete mõõdistamine.Piirdeaia montaaz.

Pildid, video ja failid

Hanke korraldaja: ettevõte ID26276

Pakkumised

Pakkumisi kokku: 0

Küsimused hanke korraldajale

Hanke korraldajale ei ole veel küsimusi esitatud.

Lisa küsimus

Lisa küsimus

Minu pakkumine

Reeglid

Pakkumise kirjelduse väli on mõeldud pakkumise detailsemaks lahti kirjutamiseks. Pikema teksti mugavaks sisestamiseks klikkige kasti paremal ülaservas oleval ikoonil.
Pakkumist tehes on keelatud postitada enda kontaktandmeid (nimi, telefon, aadress jne). Me jälgime ja analüüsime pakkumisi, et vältida pettuseid ja reeglite rikkumisi.
Rikkumise puhul kasutajakonto blokeeritakse.

 

Teisi töid samas valdkonnas

Valdkonnas "Pinnasetööd" on 2 aktiivset tööd

Muru loomine

Asukoht: Harjumaa, Jüri
Aega jäänud: 6p 12h
Tehtud pakkumisi: 3

Õueala tasandamine

Asukoht: Läänemaa, Paslepa / Pasklep
Aega jäänud: 3p 12h
Tehtud pakkumisi: 2

Vanemad teated:

Vaata kõiki

Sellel veebilehel kasutatakse küpsiseid. Kasutamist jätkates nõustute küpsiste kasutamisega.

Sulge
 
Minu pakkumine

Reeglid

Pakkumise kirjelduse väli on mõeldud pakkumise detailsemaks lahti kirjutamiseks. Pikema teksti mugavaks sisestamiseks klikkige kasti paremal ülaservas oleval ikoonil.
Pakkumist tehes on keelatud postitada enda kontaktandmeid (nimi, telefon, aadress jne). Me jälgime ja analüüsime pakkumisi, et vältida pettuseid ja reeglite rikkumisi.
Rikkumise puhul kasutajakonto blokeeritakse.