+ Lisa oma töö      

Otsid ehitajat "Ehitusprojektid" valdkonnast?

Parima pakkumise ja teostaja leidmiseks lisa oma töö.

Korteri projekteerimine

ID 27259

4386 vaatamist

Prindi

  • check Pakkumiste tegemine
    kuni 29.05.2013
  • check Võitja valik kuni
    05.06.2013
  • 3 Töö teostamine
    ja hinnang
Hanke lõpp: K, 29. mai, 2013
Maakond: Harjumaa
Linn: Tallinn
Tööde algus: E, 03. juuni, 2013 (Soovituslik)
Tööde lõpp: R, 30. august, 2013 (Soovituslik)
Ehitusmaterjalid: Töö tegija poolt

Töö sisu

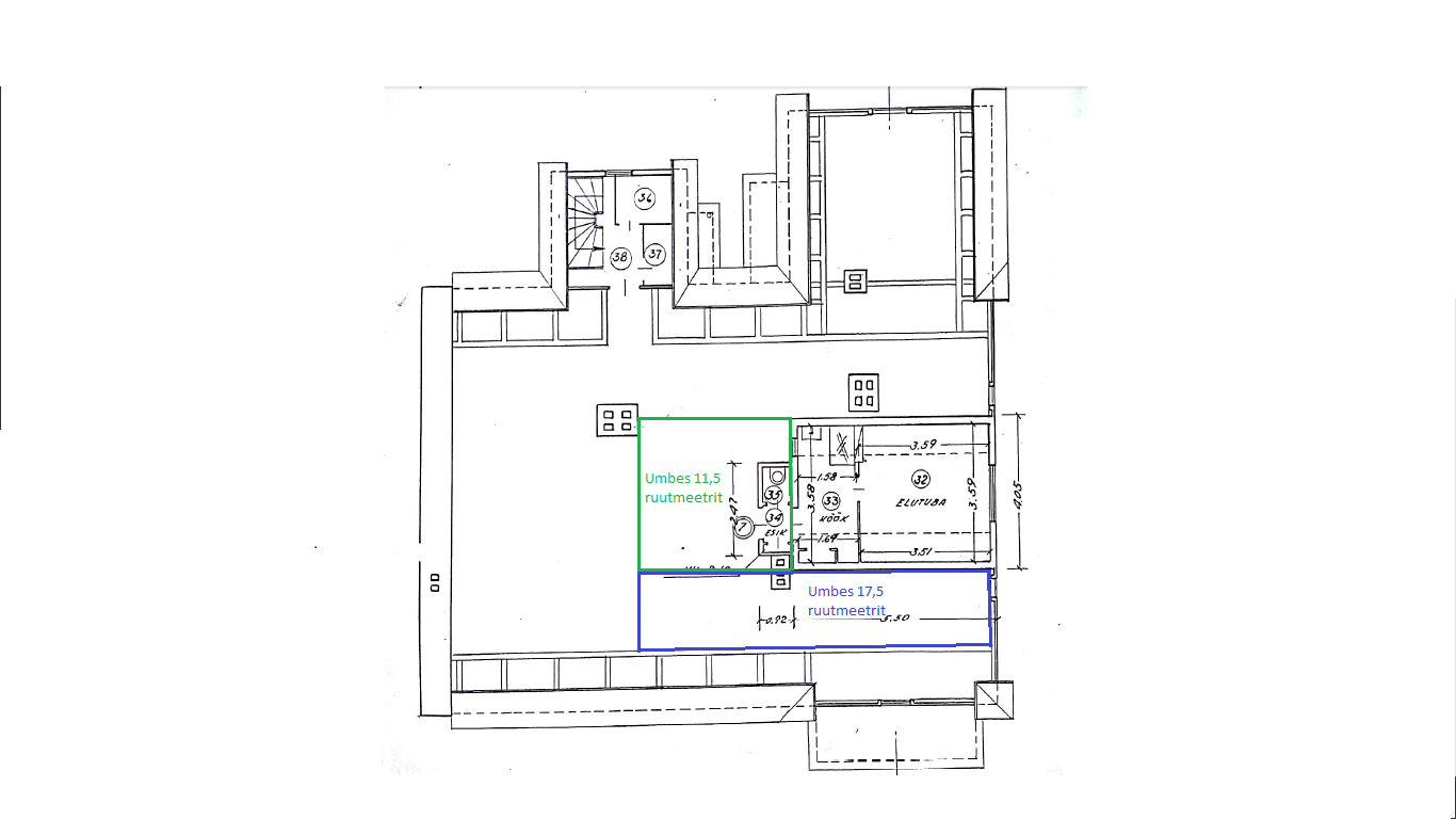
Vajatakse projekteerimist miljööväärtuslikus alas pööningu korrusel oleva korteri laiendamiseks .Projekteerimis pinna suurus on umbes 50 M2 .Soov lasta teha katuseaknad ,vintskapid.

Pildid, video ja failid

Hanke korraldaja: eraisik ID32069

Pakkumised

Pakkumisi kokku: 5

Ettevõte Summa Käibemaks Lisatud Vestlus
Kasutaja ikoon ID22632
Pakkuja profiil Väike nool paremale
3 000€ Ei sisalda Ei sisalda 30.04.2013 Vestlus (0)

Pakkumise kirjeldus:

Korterelamu rekonstrueerimis-laiendamise ehitusprojekt põhiprojekti staadiumis. Kooskõlastused, ehitusloa hange TLPA. Hind kõrge seetõttu, et on vajalik kogu hoone vaated ja lõiked uuesti üles joonestada. Vajalik geodeetiline alusplaan, hind 300EUR

Kasutaja ikoon ID27402
Pakkuja profiil Väike nool paremale
3 000€ Sisaldab KM Sisaldab KM 02.05.2013 Vestlus (0)

Pakkumise kirjeldus:

Oleme väike projekteerimisettevõte mille asutajaliikmed on kõik TTÜ magistrikraadiga insenerid ning omavad suurt huvi Arhitektuuri ja linnaplaneerimise elementide vastu.

Omame projekteerimise pädevust nii konstrtuktsioonide kui arhitektuuri valdkonnas.

Hinnas sisaldub kogu projekti maksumus koos kõikide kooskõlastustega. Projekt koostatakse eelp ... Rohkem

Kasutaja ikoon ID28077
Pakkuja profiil Väike nool paremale
500€ Ei sisalda Ei sisalda 08.05.2013 Vestlus (1)

Pakkumise kirjeldus:

HP tase-põhiprojekt. Soovi korral eriosade projektid

Kasutaja ikoon ID30344
Pakkuja profiil Väike nool paremale
1 500€ Ei sisalda Ei sisalda 18.05.2013 Vestlus (0)

Pakkumise kirjeldus:

Koostame vajaliku arhitektuurse projekti ja hangime kooskõlastused. Hind ei sisalda topo-geodeetilist mõõdistamist.

Kasutaja ikoon ID27307
Pakkuja profiil Väike nool paremale
200€ Sisaldab KM Sisaldab KM 19.05.2013 Vestlus (0)

Pakkumise kirjeldus:

Hind sisaldab elektripaigaldise ja nõrkvoolusüsteemide (TV, andmeside, valvesüsteem, ...) projekte põhiprojekti staadiumis (seletuskiri, valgustus- ja jõuseadmete ning nõrkvooluseadmete paigutusjoonised korrustel, peakilbi skeemi ja seadmete spetsifikatsioone) 2- s eksemplaris paberkandjal ning 1 eksemplaris digitaalsel kujul pdf failina.

Küsimused hanke korraldajale

Hanke korraldajale ei ole veel küsimusi esitatud.

Lisa küsimus

Lisa küsimus

Minu pakkumine

Reeglid

Pakkumise kirjelduse väli on mõeldud pakkumise detailsemaks lahti kirjutamiseks. Pikema teksti mugavaks sisestamiseks klikkige kasti paremal ülaservas oleval ikoonil.
Pakkumist tehes on keelatud postitada enda kontaktandmeid (nimi, telefon, aadress jne). Me jälgime ja analüüsime pakkumisi, et vältida pettuseid ja reeglite rikkumisi.
Rikkumise puhul kasutajakonto blokeeritakse.

 

Teisi töid samas valdkonnas

Valdkonnas "Ehitusprojektid" on 6 aktiivset tööd

no-img Pilt puudub

Ehitusinsener tase 7 vastutav allikiri

Asukoht: Pärnumaa, Pärnu
Aega jäänud: 5h 22 min
Tehtud pakkumisi: 2

Korteri elektri projekt

Asukoht: Harjumaa, Tallinn
Aega jäänud: 2p 5h
Tehtud pakkumisi: 2

Vanemad teated:

Vaata kõiki

Sellel veebilehel kasutatakse küpsiseid. Kasutamist jätkates nõustute küpsiste kasutamisega.

Sulge
 
Minu pakkumine

Reeglid

Pakkumise kirjelduse väli on mõeldud pakkumise detailsemaks lahti kirjutamiseks. Pikema teksti mugavaks sisestamiseks klikkige kasti paremal ülaservas oleval ikoonil.
Pakkumist tehes on keelatud postitada enda kontaktandmeid (nimi, telefon, aadress jne). Me jälgime ja analüüsime pakkumisi, et vältida pettuseid ja reeglite rikkumisi.
Rikkumise puhul kasutajakonto blokeeritakse.