+ Lisa oma töö      

Otsid ehitajat "Plaatimistööd" valdkonnast?

Parima pakkumise ja teostaja leidmiseks lisa oma töö.

Põrandate ja seinte plaatimistööd

ID 27480

3084 vaatamist

Prindi

  • check Pakkumiste tegemine
    kuni 30.05.2013
  • check Võitja valik kuni
    06.06.2013
  • 3 Töö teostamine
    ja hinnang
Hanke lõpp: N, 30. mai, 2013
Maakond: Raplamaa
Muu asula: Pahkla
Tööde algus: E, 10. juuni, 2013 (Soovituslik)
Tööde lõpp: E, 24. juuni, 2013 (Soovituslik)
Ehitusmaterjalid: Töö tellija poolt

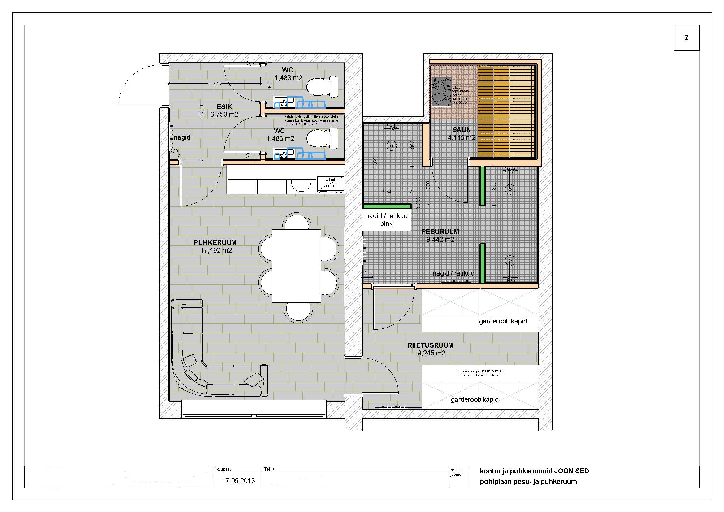
Töö sisu

Põrandate plaatimine kontoriruumides.
Põrandate ja seinte plaatimine olmeruumides.
Mahud ruutmeetrites on näidatud joonistel.

Pildid, video ja failid

Hanke korraldaja: ettevõte ID32264

Pakkumised

Pakkumisi kokku: 5

Ettevõte Summa Käibemaks Lisatud Vestlus
Kasutaja ikoon ID32172
Pakkuja profiil Väike nool paremale
3 500€ Ei sisalda Ei sisalda 27.05.2013 Vestlus (0)

Pakkumise kirjeldus:

Plaatimine, vuukimine ja silikoonimine.

Kasutaja ikoon ID26236
Pakkuja profiil Väike nool paremale
12€ Ei sisalda Ei sisalda 28.05.2013 Vestlus (0)

Pakkumise kirjeldus:

Tere. Pakkumine tööraha 12eur/m2. Kaks töömeest. Lugupidamisega....

Kasutaja ikoon ID31013
Pakkuja profiil Väike nool paremale
1 800€ Sisaldab KM Sisaldab KM 30.05.2013 Vestlus (0)
Kasutaja ikoon ID31957
Pakkuja profiil Väike nool paremale
2 765,5€ Ei sisalda Ei sisalda 30.05.2013 Vestlus (0)

Pakkumise kirjeldus:

Tere! Plaani pealt arvutades sain ruute koku 163 m2. Hinnas sisaldub plaatmine, vuukimine, silikonimine ning transport. Hinnale lisandub KM. Plaatimise ruutmeetrihind 15 €/m2, plaadist porte paigaldus 3,5 €/jm Töö ametlik, kiire ning korrektne. Alustada saaks 1 juuli. Lugupidamisega

Kasutaja ikoon ID29489
Pakkuja profiil Väike nool paremale
16€ Ei sisalda Ei sisalda 30.05.2013 Vestlus (0)

Pakkumise kirjeldus:

Tere.Plaatimisega tegelenud üle 15a.Olemas hüdroisolatsiooni paigaldus sertifikaat.Vajadusel soodsa hinnaga segud ja muud materjalid.Lp.Tarmo

Küsimused hanke korraldajale

Küsimus: private ID32172   25.05.2013 22:00
Et saaksime Teile teha täpse hinnapakkumise ootame vastuseid järgnevatele küsimustele.
Kas joonisel olevad välja toodud mahud on puhtalt põranda pindala, kui jah, siis millises mahus seinasid vaja plaatida? Kas vaja teha hüdroisolatsioonitööd või on need juba tehtud? Plaatide mõõtmed?

Teavita reeglite rikkumisest

Korraldaja vastus: 27.05.2013 18:45

Joonistel on toodud põrandate pindalad.Seinad tuleb plaatida WC-des ja pesuruumis.Seina kõrgus 2400 mm.Hüdroisolatsiooni teeme ise.Põrandaplaadid 1000x165;600x200 ja mosaiik 50x50.Seinaplaadid 600x300,borde 600x30.

Teavita reeglite rikkumisest

Küsimus: private ID31957   29.05.2013 01:04
Tere! Kas oleks mõtet teile pakkumist esitada, kui reaalselt võimalik töödega alustada 1 juuli? Lugupidamisega

Teavita reeglite rikkumisest

Korraldaja vastus: 29.05.2013 08:40

Kontori osa on võimalik varem alustada.

Teavita reeglite rikkumisest

Lisa küsimus

Lisa küsimus

Minu pakkumine

Reeglid

Pakkumise kirjelduse väli on mõeldud pakkumise detailsemaks lahti kirjutamiseks. Pikema teksti mugavaks sisestamiseks klikkige kasti paremal ülaservas oleval ikoonil.
Pakkumist tehes on keelatud postitada enda kontaktandmeid (nimi, telefon, aadress jne). Me jälgime ja analüüsime pakkumisi, et vältida pettuseid ja reeglite rikkumisi.
Rikkumise puhul kasutajakonto blokeeritakse.

 

Teisi töid samas valdkonnas

Valdkonnas "Plaatimistööd" on 2 aktiivset tööd

Trepikoja plaatimine

Asukoht: Tartumaa, Ülenurme
Aega jäänud: 4p 6h
Tehtud pakkumisi: 2

Pesuruumi plaatimine 12.6 m2

Asukoht: Tartumaa, Teedla
Aega jäänud: 1p 6h
Tehtud pakkumisi: 0

Vanemad teated:

Vaata kõiki

Sellel veebilehel kasutatakse küpsiseid. Kasutamist jätkates nõustute küpsiste kasutamisega.

Sulge
 
Minu pakkumine

Reeglid

Pakkumise kirjelduse väli on mõeldud pakkumise detailsemaks lahti kirjutamiseks. Pikema teksti mugavaks sisestamiseks klikkige kasti paremal ülaservas oleval ikoonil.
Pakkumist tehes on keelatud postitada enda kontaktandmeid (nimi, telefon, aadress jne). Me jälgime ja analüüsime pakkumisi, et vältida pettuseid ja reeglite rikkumisi.
Rikkumise puhul kasutajakonto blokeeritakse.