+ Lisa oma töö      

Otsid ehitajat "Eramu ehitus" valdkonnast?

Parima pakkumise ja teostaja leidmiseks lisa oma töö.

Palkmaja ehitus

ID 2749

9267 vaatamist

Prindi

  • check Pakkumiste tegemine
    kuni 23.12.2006
  • check Võitja valik kuni
    30.12.2006
  • 3 Töö teostamine
    ja hinnang
Hanke lõpp: L, 23. detsember, 2006
Maakond: Raplamaa
Muu asula: Vilivere
Tööde algus: P, 01. aprill, 2007 (Soovituslik)
Tööde lõpp: L, 05. mai, 2007 (Soovituslik)
Ehitusmaterjalid: Töö tegija poolt

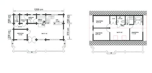
Töö sisu

Projekti korraldab tellija.

Soovin leida ehitajat, kes teeb:
1) kaevetööd
2) plaatvundamendi 74 m2
3) püstitab tellija poolt hangitud palkidest maja (Landhaus projekt Mart,nelikant palgist)
4) paigaldab aknad ja uksed
5) paigaldab katuse
materjal ehitaja poolt (va palkosa)
Vastutab tehtud töö eest!

Pildid, video ja failid

Hanke korraldaja: eraisik ID3974

Pakkumised

Pakkumisi kokku: 3

Ettevõte Summa Käibemaks Lisatud Vestlus
Kasutaja ikoon ID2201
Pakkuja profiil Väike nool paremale
28 760,2€ Ei sisalda Ei sisalda 24.11.2006 Vestlus (0)
Kasutaja ikoon ID1688
Pakkuja profiil Väike nool paremale
10 545,4€ Sisaldab KM Sisaldab KM 24.11.2006 Vestlus (0)

Pakkumise kirjeldus:

see oleks vaid töö raha

Kasutaja ikoon ID3524
Pakkuja profiil Väike nool paremale
19 301,3€ Ei sisalda Ei sisalda 27.11.2006 Vestlus (0)

Küsimused hanke korraldajale

Küsimus: private ID1055   23.11.2006 16:11
Tere! Sooviks teada kas vajate ka kütte ja torutöid?

Teavita reeglite rikkumisest

Korraldaja vastus: 19.05.2026 20:44

Kütteks on ahiküte ja lisaks on el.radiaatorid. Kanalisatsioon on lokaalne. Torude vedamisega saab ehk ise hakkama.

Teavita reeglite rikkumisest

Küsimus: private ID1688   23.11.2006 19:02
Kas ka sisetööd on pakkumise sees? oleks hea teada täpsemat töömahtu (kas pinnase uuringud on tehtud, kui sügavale on vaja kaevata)

Teavita reeglite rikkumisest

Korraldaja vastus: 19.05.2026 20:44

Pinnase uuringuid hetkel pole tehtud. Sisetöödega saab ehk ise hakkama.

Teavita reeglite rikkumisest

Küsimus: private ID2933   23.11.2006 21:14
Tervitus! peaks seal suures vilivere metsas kokku saama ja seda ehitus juttu kohapeal vaatama äkki saame sooduspakkumise teha! Mis arvad?

Teavita reeglite rikkumisest

Korraldaja vastus: 19.05.2026 20:44

Ehk oskad mingitest orienteeruvatest hindadest rääkida.

Teavita reeglite rikkumisest

Küsimus: private ID1688   23.11.2006 23:53
Ilma projekti nägematta on raske teha hinnapakkumist kui peab ka materjali arvestama.ja uste , akende tellimine peab ka sees olema või hangite ehk need ka ise. ainult tööraha oleks lihtne arvestada.

Teavita reeglite rikkumisest

Korraldaja vastus: 19.05.2026 20:44

Tellija poolt oleks vaid palgiosa. Muud materjalid hanke võitja poolt. Kui hanke võitja valitud matrejal aknad ja uksed ei sobi, siis tellija hangib ise. Paigaldab hanke võitja. Lõplik projekt on koostamisel.

Teavita reeglite rikkumisest

Küsimus: private ID2933   24.11.2006 07:56
kui kõige tähtsamast osast rääkida siis usun, et kolmesaja kiloga tuleb toime aga see oleks siis ainult töö raha sinupoolt kõik tehnika ja tavaar. Täpse hinna ja pakkumisega saad tutvuda alles kui olen krunti ja paberit näinud.

Teavita reeglite rikkumisest

Korraldaja vastus: 19.05.2026 20:44

Tellija poolt oleks vaid palgiosa. Muud materjalid hanke võitja poolt. Kui hanke võitja valitud matrejal aknad ja uksed ei sobi, siis tellija hangib ise. Paigaldab hanke võitja. Lõplik projekt on koostamisel.

Teavita reeglite rikkumisest

Küsimus: private ID3778   30.11.2006 00:05
landhausil on (palgiosa, tenderlauad, talad, põranda lae lauad, aknad uksed, palktrepp, sarikad, roovitus ja piirdeliistud) hinna sees juba.

Teavita reeglite rikkumisest

Korraldaja vastus: 19.05.2026 20:44

Jah on. Minu soov on palgiosa (nelikant) ise tarnida ja kõik muu matrejal hankija poolt ning lisaks paigaldus.

Teavita reeglite rikkumisest

Lisa küsimus

Lisa küsimus

Minu pakkumine

Reeglid

Pakkumise kirjelduse väli on mõeldud pakkumise detailsemaks lahti kirjutamiseks. Pikema teksti mugavaks sisestamiseks klikkige kasti paremal ülaservas oleval ikoonil.
Pakkumist tehes on keelatud postitada enda kontaktandmeid (nimi, telefon, aadress jne). Me jälgime ja analüüsime pakkumisi, et vältida pettuseid ja reeglite rikkumisi.
Rikkumise puhul kasutajakonto blokeeritakse.

 

Vanemad teated:

Vaata kõiki

Sellel veebilehel kasutatakse küpsiseid. Kasutamist jätkates nõustute küpsiste kasutamisega.

Sulge
 
Minu pakkumine

Reeglid

Pakkumise kirjelduse väli on mõeldud pakkumise detailsemaks lahti kirjutamiseks. Pikema teksti mugavaks sisestamiseks klikkige kasti paremal ülaservas oleval ikoonil.
Pakkumist tehes on keelatud postitada enda kontaktandmeid (nimi, telefon, aadress jne). Me jälgime ja analüüsime pakkumisi, et vältida pettuseid ja reeglite rikkumisi.
Rikkumise puhul kasutajakonto blokeeritakse.