+ Lisa oma töö      

Otsid ehitajat "Eramu ehitus" valdkonnast?

Parima pakkumise ja teostaja leidmiseks lisa oma töö.

Ehitusjärelvalve teostamine

ID 2754

4131 vaatamist

Prindi

  • check Pakkumiste tegemine
    kuni 24.12.2006
  • check Võitja valik kuni
    31.12.2006
  • 3 Töö teostamine
    ja hinnang
Hanke lõpp: P, 24. detsember, 2006
Maakond: Raplamaa
Muu asula: Vilivere
Tööde algus: P, 01. aprill, 2007 (Soovituslik)
Tööde lõpp: P, 29. juuli, 2007 (Soovituslik)
Ehitusmaterjalid: Töö tegija poolt

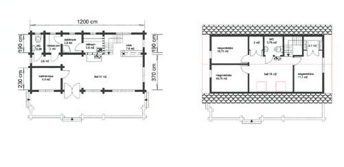
Töö sisu

ehitusjärelvalve teostamine palkmaja ehitusel Landahaus OÜ tüüpprojekti Mart järgi

Pildid, video ja failid

Hanke korraldaja: eraisik ID3974

Pakkumised

Pakkumisi kokku: 4

Ettevõte Summa Käibemaks Lisatud Vestlus
Kasutaja ikoon ID680
Pakkuja profiil Väike nool paremale
319,6€ Ei sisalda Ei sisalda 24.11.2006 Vestlus (0)
Kasutaja ikoon ID1605
Pakkuja profiil Väike nool paremale
511,3€ Ei sisalda Ei sisalda 25.11.2006 Vestlus (0)

Pakkumise kirjeldus:

olenevalt asukohast ja töö teostamise ajast

Kasutaja ikoon ID175
Pakkuja profiil Väike nool paremale
958,7€ Ei sisalda Ei sisalda 28.11.2006 Vestlus (0)

Pakkumise kirjeldus:

Oleme spetsialiseerunud ehituse omanikujärelevalve, ekspertiiside ning konsultatsioonide teenuse osutamisele. Omame head referentsi.

Kasutaja ikoon ID2933
Pakkuja profiil Väike nool paremale
1 917,4€ Sisaldab KM Sisaldab KM 23.12.2006 Vestlus (0)

Pakkumise kirjeldus:

vaataks heameelega kuidas mehed palki paigaldavad

Küsimused hanke korraldajale

Hanke korraldajale ei ole veel küsimusi esitatud.

Lisa küsimus

Lisa küsimus

Minu pakkumine

Reeglid

Pakkumise kirjelduse väli on mõeldud pakkumise detailsemaks lahti kirjutamiseks. Pikema teksti mugavaks sisestamiseks klikkige kasti paremal ülaservas oleval ikoonil.
Pakkumist tehes on keelatud postitada enda kontaktandmeid (nimi, telefon, aadress jne). Me jälgime ja analüüsime pakkumisi, et vältida pettuseid ja reeglite rikkumisi.
Rikkumise puhul kasutajakonto blokeeritakse.

 

Teisi töid samas valdkonnas

Valdkonnas "Eramu ehitus" on 2 aktiivset tööd

Eramu ehitus

Asukoht: Viljandimaa, Viljandi
Aega jäänud: 5p 12h
Tehtud pakkumisi: 1

no-img Pilt puudub

Eramu ehitus. Karp kinni.

Asukoht: Lääne-Virumaa
Aega jäänud: 3p 12h
Tehtud pakkumisi: 0

Vanemad teated:

Vaata kõiki

Sellel veebilehel kasutatakse küpsiseid. Kasutamist jätkates nõustute küpsiste kasutamisega.

Sulge
 
Minu pakkumine

Reeglid

Pakkumise kirjelduse väli on mõeldud pakkumise detailsemaks lahti kirjutamiseks. Pikema teksti mugavaks sisestamiseks klikkige kasti paremal ülaservas oleval ikoonil.
Pakkumist tehes on keelatud postitada enda kontaktandmeid (nimi, telefon, aadress jne). Me jälgime ja analüüsime pakkumisi, et vältida pettuseid ja reeglite rikkumisi.
Rikkumise puhul kasutajakonto blokeeritakse.