+ Lisa oma töö      

Otsid ehitajat "Energiasüsteemide ehitus, hooldus" valdkonnast?

Parima pakkumise ja teostaja leidmiseks lisa oma töö.

Hange on lõppenud!

Võitjaks osutus kasutaja ID 31470

Korraldaja hinnang tehtud tööle

5.0
12.08.2013
Töökiirus: 12345
Kvaliteet: 12345
Hind: 12345

Väga hea koostöö ja töö tulemus! - Ivo K.

Korteri elektriprojekt ja selle alusel tehtavad tööd

ID 27854

8465 vaatamist

Prindi

  • check Pakkumiste tegemine
    kuni 04.07.2013
  • check Võitja valik kuni
    11.07.2013
  • 3 Töö teostamine
    ja hinnang
Hanke lõpp: N, 4. juuli, 2013
Maakond: Harjumaa
Linn: Tallinn
Tööde algus: R, 05. juuli, 2013 (Soovituslik)
Tööde lõpp: K, 31. juuli, 2013 (Soovituslik)
Ehitusmaterjalid: Töö tegija poolt

Töö sisu

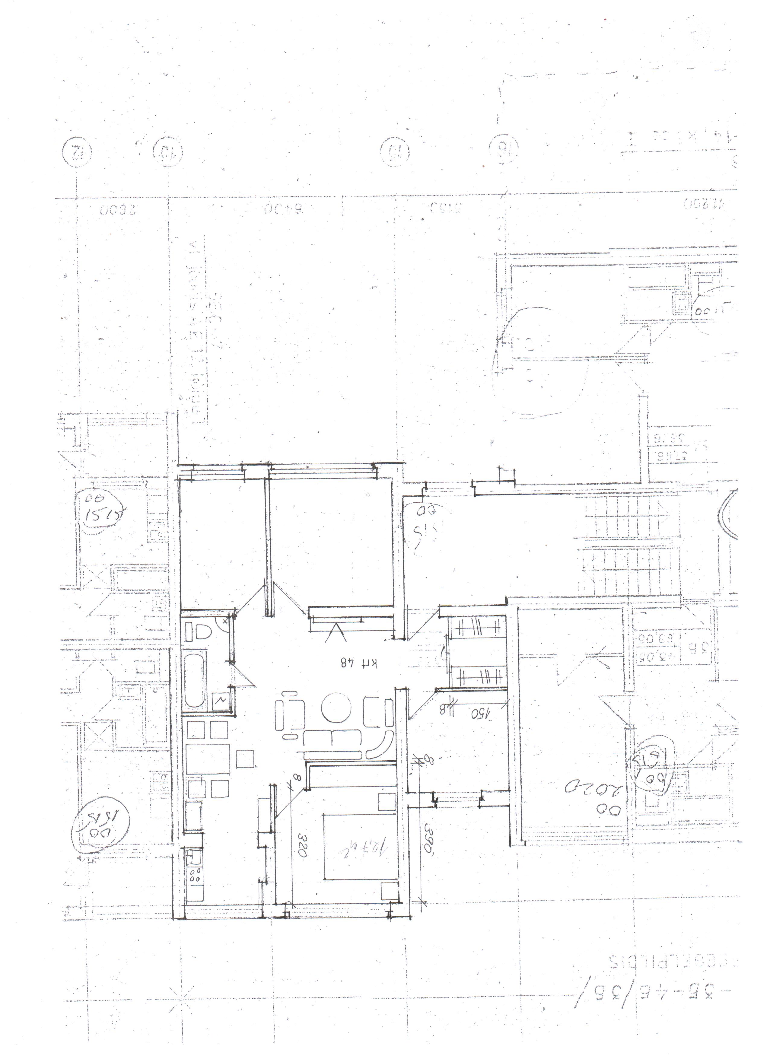
Soovin saada tüüpkorterisse nõukogude aegse elektrilahenduse asemel moodsat elektrilahendust. Hetkel puudub igasugune algdokumentatsioon. Hankele on lisatud korteriplaan ja sellest tuleb tööde projekteerimisel ja teostamisel lähtuda. Vajadusel saab plaani ka digitaliseerida.

Pildid, video ja failid

Hanke korraldaja: eraisik ID32568

Pakkumised

Pakkumisi kokku: 4

Ettevõte Summa Käibemaks Lisatud Vestlus
Kasutaja ikoon ID31470
Pakkuja profiil Väike nool paremale
150€ Ikoon kell Sisaldab KM Sisaldab KM 04.07.2013 Vestlus (5)

Pakkumise kirjeldus:

Tere, teeme pakkumise antud korteri elektriprojekti koostamisele. Töö võiks käia kas selliselt, et te märgite valgustid, lülitid ja pistikupesad kohtadesse, kuhu soovite, et need olema hakkaks prinditud alusplaanile ning see järel vormistame me projektidokumentatsiooni selle alusel. Või kui korter on Tallinnas, siis võime saada ka koha peal kokku ni ... Rohkem

Kasutaja ikoon ID24128
Pakkuja profiil Väike nool paremale
170€ Ei sisalda Ei sisalda 02.07.2013 Vestlus (0)

Pakkumise kirjeldus:

Elektritööde projekti koostamine.

Kasutaja ikoon ID30944
Pakkuja profiil Väike nool paremale
150€ Ei sisalda Ei sisalda 03.07.2013 Vestlus (0)

Pakkumise kirjeldus:

Hinnapakkumine sisaldab projekteerimise hinda. Raske on koostada pakkumist lähteülesande puudumisel.
Firma omab A- pädevusklassi st. mis tahes tehniliste näitajatega elektripaigaldised ja -seadmed, kaasaarvatud projekteerimine.

Kasutaja ikoon ID30848
Pakkuja profiil Väike nool paremale
2 200€ Ei sisalda Ei sisalda 04.07.2013 Vestlus (0)

Pakkumise kirjeldus:

Elektripaigaldiste projekteerimise õigust ja elektritööde tegevusluba omav firma pakub oma teenust paigaldise projekteerimiseks ja ehitamiseks. Töö teostame vajadusel 1kuu jooksul, tööle 2a.garantii.
Lugupidamisega.

Küsimused hanke korraldajale

Küsimus: private ID32544   02.07.2013 09:27
Tere!!!Hetkel ei näe plaani.

Teavita reeglite rikkumisest

Korraldaja vastus:
Hanke korraldaja ei ole küsimusele veel vastanud

Küsimus: private ID30848   03.07.2013 08:42
Tere.
Mõned täpsustavad küsimused. Mis aastal maja on ehitatud (orient.) Lagede, seinade materjal, nii palju kui oskate öelda. Kas arvesti ja kilp on korteris või koridoris? Kas planeerite ripplagesid remondi käigus paigaldada? Kas korter on remondi ajal tühi? Milline on korteri üldpind? Pildi järgi tundub ca 80m2. Tänan ja lugupidamine.

Teavita reeglite rikkumisest

Korraldaja vastus: 03.07.2013 11:38

Tere, Korter on ehitatud 1987, laed paneel, seinad kivi, kilp on trepikojas, ripplagesid ei planeeri, juhtmed soovin süvistatuna seina või piirdeliistu taha, remondi ajal on korter tühi. Korteri üldpind on 80 m2. Lugupidamisega, I

Teavita reeglite rikkumisest

Lisa küsimus

Lisa küsimus

Minu pakkumine

Reeglid

Pakkumise kirjelduse väli on mõeldud pakkumise detailsemaks lahti kirjutamiseks. Pikema teksti mugavaks sisestamiseks klikkige kasti paremal ülaservas oleval ikoonil.
Pakkumist tehes on keelatud postitada enda kontaktandmeid (nimi, telefon, aadress jne). Me jälgime ja analüüsime pakkumisi, et vältida pettuseid ja reeglite rikkumisi.
Rikkumise puhul kasutajakonto blokeeritakse.

 

Vanemad teated:

Vaata kõiki

Sellel veebilehel kasutatakse küpsiseid. Kasutamist jätkates nõustute küpsiste kasutamisega.

Sulge
 
Minu pakkumine

Reeglid

Pakkumise kirjelduse väli on mõeldud pakkumise detailsemaks lahti kirjutamiseks. Pikema teksti mugavaks sisestamiseks klikkige kasti paremal ülaservas oleval ikoonil.
Pakkumist tehes on keelatud postitada enda kontaktandmeid (nimi, telefon, aadress jne). Me jälgime ja analüüsime pakkumisi, et vältida pettuseid ja reeglite rikkumisi.
Rikkumise puhul kasutajakonto blokeeritakse.