+ Lisa oma töö      

Otsid ehitajat "Küttesüsteemid" valdkonnast?

Parima pakkumise ja teostaja leidmiseks lisa oma töö.

Gaasikütte paigaldus

ID 28163

7387 vaatamist

Prindi

  • check Pakkumiste tegemine
    kuni 05.08.2013
  • check Võitja valik kuni
    12.08.2013
  • 3 Töö teostamine
    ja hinnang
Hanke lõpp: E, 5. august, 2013
Maakond: Harjumaa
Muu asula: põhja-tallinn
Tööde algus: E, 12. august, 2013 (Soovituslik)
Tööde lõpp: R, 30. august, 2013 (Soovituslik)
Ehitusmaterjalid: Töö tellija poolt

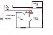
Töö sisu

Soovin korterisse (60m2) paigaldada gaasikütet.
Torud on veetud põranda alt.

Soetada tuleb gaasikatel ja 3 radikat.
Esialgu soovin hinnapakkumist paigaldusele ja soovitage, mida vaja eelnevalt varuda (radiaatorid ja katel)

Pildid, video ja failid

Hanke korraldaja: eraisik ID30710

Pakkumised

Pakkumisi kokku: 2

Ettevõte Summa Käibemaks Lisatud Vestlus
Kasutaja ikoon ID31288
Pakkuja profiil Väike nool paremale
375€ Ikoon kell Ei sisalda Ei sisalda 04.08.2013 Vestlus (7)

Pakkumise kirjeldus:

Tere, pakkumine muudetud. Katla ja radiaatorite hinna saan homme teada.
Lugupidamisega, T.

Kasutaja ikoon ID7697
Pakkuja profiil Väike nool paremale
450€ Ei sisalda Ei sisalda 05.08.2013 Vestlus (0)

Küsimused hanke korraldajale

Hanke korraldajale ei ole veel küsimusi esitatud.

Lisa küsimus

Lisa küsimus

Minu pakkumine

Reeglid

Pakkumise kirjelduse väli on mõeldud pakkumise detailsemaks lahti kirjutamiseks. Pikema teksti mugavaks sisestamiseks klikkige kasti paremal ülaservas oleval ikoonil.
Pakkumist tehes on keelatud postitada enda kontaktandmeid (nimi, telefon, aadress jne). Me jälgime ja analüüsime pakkumisi, et vältida pettuseid ja reeglite rikkumisi.
Rikkumise puhul kasutajakonto blokeeritakse.

 

Teisi töid samas valdkonnas

Valdkonnas "Küttesüsteemid" on 2 aktiivset tööd

no-img Pilt puudub

Küttesüsteemi püstakute vahetus ja radiaatoritega ühendamine

Asukoht: Järvamaa, Paide
Aega jäänud: 3p 11h
Tehtud pakkumisi: 2

Cooper&Hunter Consol Inverter 18

Asukoht: Harjumaa, Tallinn
Aega jäänud: 11h 15 min
Tehtud pakkumisi: 1

Vanemad teated:

Vaata kõiki

Sellel veebilehel kasutatakse küpsiseid. Kasutamist jätkates nõustute küpsiste kasutamisega.

Sulge
 
Minu pakkumine

Reeglid

Pakkumise kirjelduse väli on mõeldud pakkumise detailsemaks lahti kirjutamiseks. Pikema teksti mugavaks sisestamiseks klikkige kasti paremal ülaservas oleval ikoonil.
Pakkumist tehes on keelatud postitada enda kontaktandmeid (nimi, telefon, aadress jne). Me jälgime ja analüüsime pakkumisi, et vältida pettuseid ja reeglite rikkumisi.
Rikkumise puhul kasutajakonto blokeeritakse.