+ Lisa oma töö      

Otsid ehitajat "Puitehitised" valdkonnast?

Parima pakkumise ja teostaja leidmiseks lisa oma töö.

Puitkarkassi ehitus, katuse kivi paigaldus

ID 28184

6559 vaatamist

Prindi

  • check Pakkumiste tegemine
    kuni 01.08.2013
  • check Võitja valik kuni
    08.08.2013
  • 3 Töö teostamine
    ja hinnang
Hanke lõpp: N, 1. august, 2013
Maakond: Harjumaa
Muu asula: Muratse
Tööde algus: E, 05. august, 2013 (Soovituslik)
Tööde lõpp: R, 13. september, 2013 (Soovituslik)
Ehitusmaterjalid: Töö tellija poolt

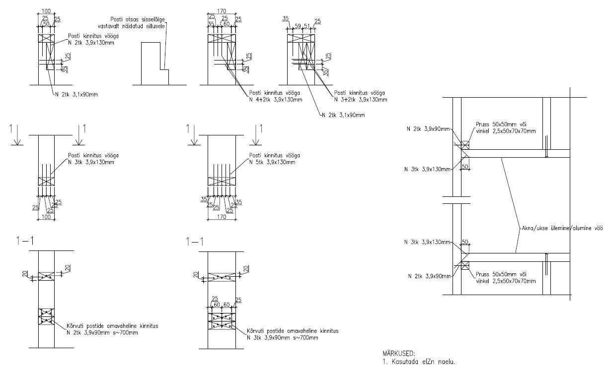
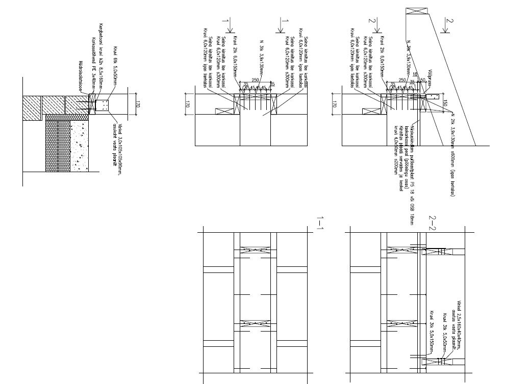
Töö sisu

Puitkarkassi ehitus:
alusvööd, sillusvööd, vahevööd, välisseinad, kandvad siseseinad, jäigastavad vaheseinad, vahelaetalad, teise korruse välisseinad, teise korruse vaheseinad, teise korruse laetalad, esimese ja teise korruse sarikad. kaasa arvatud auto varjualuse katus. kogu puitkarkassi osa.
Välisseinad 50x170 prussist
kandvad vaheseinad 50x100 prussist
vahelaed 50x250
sarikad 50x250
karkassi ehitus naeltega
osad kinnitused kinnitusnurkadega.
vajalik paigaldada ka 2 liimpuittala.

Katusetöödest vaja paigaldada aluskate, distantsliist, roovitis, kivid, lumetõkked, katuseluugid.

Pildid, video ja failid

Hanke korraldaja: eraisik ID32372

Pakkumised

Pakkumisi kokku: 2

Ettevõte Summa Käibemaks Lisatud Vestlus
Kasutaja ikoon ID12190
Pakkuja profiil Väike nool paremale
20 000€ Ei sisalda Ei sisalda 31.07.2013 Vestlus (0)
Kasutaja ikoon ID32806
Pakkuja profiil Väike nool paremale
22 000€ Sisaldab KM Sisaldab KM 01.08.2013 Vestlus (0)

Pakkumise kirjeldus:

Firma toimib eesti ja soome ehitusturul juba aastast 1993. Kõiki töid teostavad oma ala spetsialistid.

Küsimused hanke korraldajale

Hanke korraldajale ei ole veel küsimusi esitatud.

Lisa küsimus

Lisa küsimus

Minu pakkumine

Reeglid

Pakkumise kirjelduse väli on mõeldud pakkumise detailsemaks lahti kirjutamiseks. Pikema teksti mugavaks sisestamiseks klikkige kasti paremal ülaservas oleval ikoonil.
Pakkumist tehes on keelatud postitada enda kontaktandmeid (nimi, telefon, aadress jne). Me jälgime ja analüüsime pakkumisi, et vältida pettuseid ja reeglite rikkumisi.
Rikkumise puhul kasutajakonto blokeeritakse.

 

Vanemad teated:

Vaata kõiki

Sellel veebilehel kasutatakse küpsiseid. Kasutamist jätkates nõustute küpsiste kasutamisega.

Sulge
 
Minu pakkumine

Reeglid

Pakkumise kirjelduse väli on mõeldud pakkumise detailsemaks lahti kirjutamiseks. Pikema teksti mugavaks sisestamiseks klikkige kasti paremal ülaservas oleval ikoonil.
Pakkumist tehes on keelatud postitada enda kontaktandmeid (nimi, telefon, aadress jne). Me jälgime ja analüüsime pakkumisi, et vältida pettuseid ja reeglite rikkumisi.
Rikkumise puhul kasutajakonto blokeeritakse.