+ Lisa oma töö      

Otsid ehitajat "Kanalisatsioonitööd" valdkonnast?

Parima pakkumise ja teostaja leidmiseks lisa oma töö.

Kanalisatsioonitorustiku ühendamine Võrus

ID 28248

4502 vaatamist

Prindi

  • check Pakkumiste tegemine
    kuni 14.08.2013
  • check Võitja valik kuni
    21.08.2013
  • 3 Töö teostamine
    ja hinnang
Hanke lõpp: K, 14. august, 2013
Maakond: Võrumaa
Linn: Võru
Tööde algus: L, 17. august, 2013 (Soovituslik)
Tööde lõpp: L, 24. august, 2013 (Soovituslik)
Ehitusmaterjalid: Töö tellija poolt

Töö sisu

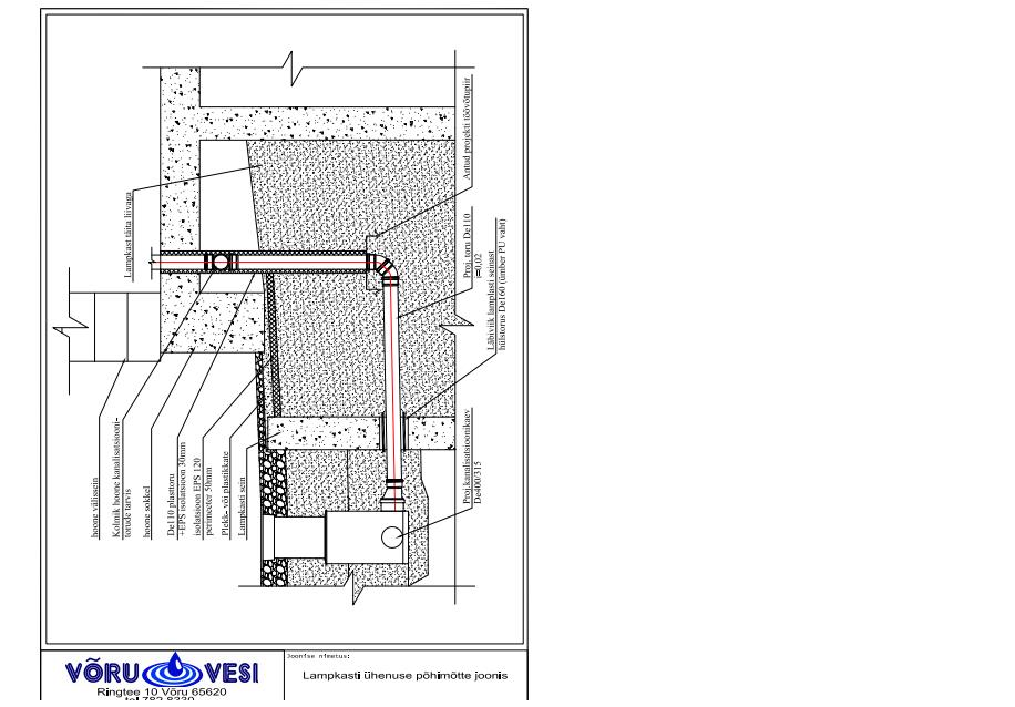
Töö seisneb Võru linnas asuva eramaja kanalisatsioonitorustiku täielikus ühendamises linna üldkanalisatsiooniga praeguse kogumiskastiga kuivkäimla ning vee kogumiskaevu asemel.

Väljavõte projektis toodud töödde kirjeldusest:
1. Kanalisatsioonitorustik
Kinnistu kanalisatsioonitorustik rajatakse PVC SN8 reovee kanalisatsioonitorudest De110 ja De160. Kinnistu kanalisatsioonitorustik ühendatakse ühiskanalisatsiooniga kinnistu piiri juures oleva liitumispunkti vaatluskaevuga. Vastavalt joonisele paigaldada kinnistule kontrollkaev.
Kanalisatsioonitoru minimaalne lubatud paigaldussügavus on teemaal 1,2 m ja
haljasaladel 1,0 m maapinnast toru põhjani. Kui torustik ulatub maapinnale lähemale kui eelpool kirjeldatud, siis torustik soojustatakse.

2. Torustiku paigaldamine
Torude seinadevaheline kaugus peab olema vähemalt 30 cm. Torude kaugus kaeviku servadest peab olema vähemalt 20 cm. Torustiku alla paigutada 15 cm paksune liivast või peenkillustikust tasanduskiht, mis tuleb tihendada. Toru külgedele teha tagasitäide ühtlaste kihtidena tihendades. Torustik, kaevud ja muud armatuurid paigaldatakse vastavalt tootja paigaldusjuhendile. Hoonesisesed reoveeneelud, mis paigaldatakse allapoole paisutustaset (tänava tasapind +0,1 m) peab varustama tagasilöögiklapiga.

3. Kaevetööd

4. Kaevikute tagasitäide

5. Materjalide spetsifikatsioon
Kanalisatsioonitorustik
Nimetus Kogus
Kanalisatsioonitorustik PVC SN8 De 110 2 m
Kanalisatsioonitorustik PVC SN8 De 160 8 m
Kanalisatsioonikaev De 400/315 1 tk

6. Tööde loetelu
Torustiku mahamärkimine 1 tk
Kaevetööd 1 tk
Kanalisatsioonitorustiku paigaldamine koos kaevudega 10 m
Torustiku teostusmõõdistus 1 tk
Torustiku katsetamine 1 tk
Asfaltkatte taastamine 5,3 m2
Killustikkatte taastamine 18 m2

Pildid, video ja failid

Hanke korraldaja: eraisik ID32863

Pakkumised

Pakkumisi kokku: 0

Küsimused hanke korraldajale

Hanke korraldajale ei ole veel küsimusi esitatud.

Lisa küsimus

Lisa küsimus

Minu pakkumine

Reeglid

Pakkumise kirjelduse väli on mõeldud pakkumise detailsemaks lahti kirjutamiseks. Pikema teksti mugavaks sisestamiseks klikkige kasti paremal ülaservas oleval ikoonil.
Pakkumist tehes on keelatud postitada enda kontaktandmeid (nimi, telefon, aadress jne). Me jälgime ja analüüsime pakkumisi, et vältida pettuseid ja reeglite rikkumisi.
Rikkumise puhul kasutajakonto blokeeritakse.

 

Vanemad teated:

Vaata kõiki

Sellel veebilehel kasutatakse küpsiseid. Kasutamist jätkates nõustute küpsiste kasutamisega.

Sulge
 
Minu pakkumine

Reeglid

Pakkumise kirjelduse väli on mõeldud pakkumise detailsemaks lahti kirjutamiseks. Pikema teksti mugavaks sisestamiseks klikkige kasti paremal ülaservas oleval ikoonil.
Pakkumist tehes on keelatud postitada enda kontaktandmeid (nimi, telefon, aadress jne). Me jälgime ja analüüsime pakkumisi, et vältida pettuseid ja reeglite rikkumisi.
Rikkumise puhul kasutajakonto blokeeritakse.