+ Lisa oma töö      

Otsid ehitajat "Üldehitus" valdkonnast?

Parima pakkumise ja teostaja leidmiseks lisa oma töö.

Kõrvalhoone vundament, müürid ja katus

ID 28546

5058 vaatamist

Prindi

  • check Pakkumiste tegemine
    kuni 26.09.2013
  • check Võitja valik kuni
    03.10.2013
  • 3 Töö teostamine
    ja hinnang
Hanke lõpp: N, 26. september, 2013
Maakond: Pärnumaa
Muu asula: Paikuse
Tööde algus: E, 30. september, 2013 (Soovituslik)
Tööde lõpp: K, 30. oktoober, 2013 (Soovituslik)
Ehitusmaterjalid: Töö tegija poolt

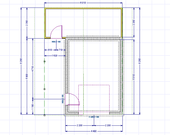
Töö sisu

Ostetakse töö, mille käigus peaks valmima eramu kõrvalhoone katusega karp.
Soovitav töö hõlmab endast lintvundamendi ehitust, põranda valu, kergplokkidest garaaži müüride ladumist (seina pind u.50m2) , katuse konstruktsioonide ehitust ja katuse paigaldust (katuse pind u.65m2).

Välisviimistlus, elektritööd ja kommunikatsioonid ei ole soovitud tööde hulgas.

Materjalide soetamine kokkuleppel

Töö tellib firma, algus esimesel võimalusel

Pildid, video ja failid

Hanke korraldaja: eraisik ID33137

Pakkumised

Pakkumisi kokku: 4

Ettevõte Summa Käibemaks Lisatud Vestlus
Kasutaja ikoon ID8095
Pakkuja profiil Väike nool paremale
11 500€ Ei sisalda Ei sisalda 15.09.2013 Vestlus (0)
Kasutaja ikoon ID33160
Pakkuja profiil Väike nool paremale
10 000€ Sisaldab KM Sisaldab KM 21.09.2013 Vestlus (0)
Kasutaja ikoon ID10532
Pakkuja profiil Väike nool paremale
11 300€ Ei sisalda Ei sisalda 26.09.2013 Vestlus (0)
Kasutaja ikoon ID18444
Pakkuja profiil Väike nool paremale
14 700€ Ei sisalda Ei sisalda 26.09.2013 Vestlus (0)

Pakkumise kirjeldus:

Tere. Hinnapakkumine sialdab nii tööraha kui ka kõiki ehituseks vajaminevaid materjale. (müürid aeroc 200/300, katusele profiilplekk). Muidugi ka portaali tasu ... Lugupidamsiega!

Küsimused hanke korraldajale

Küsimus: private ID8095   12.09.2013 16:45
Tere.Kas must müür.Kui võimalik laadige üles lõike fail,kui sellist on.Terv Janek

Teavita reeglite rikkumisest

Korraldaja vastus: 14.09.2013 10:20

Tere, sein ise tuleb hiljem horisontaalse laudisega ja seest kips otse seina, seega võib olla viisakas must müür

Teavita reeglite rikkumisest

Lisa küsimus

Lisa küsimus

Minu pakkumine

Reeglid

Pakkumise kirjelduse väli on mõeldud pakkumise detailsemaks lahti kirjutamiseks. Pikema teksti mugavaks sisestamiseks klikkige kasti paremal ülaservas oleval ikoonil.
Pakkumist tehes on keelatud postitada enda kontaktandmeid (nimi, telefon, aadress jne). Me jälgime ja analüüsime pakkumisi, et vältida pettuseid ja reeglite rikkumisi.
Rikkumise puhul kasutajakonto blokeeritakse.

 

Teisi töid samas valdkonnas

Valdkonnas "Üldehitus" on 28 aktiivset tööd

Maja värvimine

Asukoht: Harjumaa, Saue
Aega jäänud: 2p 9h
Tehtud pakkumisi: 5

Terassi õlitamine, 13,7 ruutu

Asukoht: Harjumaa, Saue
Aega jäänud: 5p 9h
Tehtud pakkumisi: 5

Vanemad teated:

Vaata kõiki

Sellel veebilehel kasutatakse küpsiseid. Kasutamist jätkates nõustute küpsiste kasutamisega.

Sulge
 
Minu pakkumine

Reeglid

Pakkumise kirjelduse väli on mõeldud pakkumise detailsemaks lahti kirjutamiseks. Pikema teksti mugavaks sisestamiseks klikkige kasti paremal ülaservas oleval ikoonil.
Pakkumist tehes on keelatud postitada enda kontaktandmeid (nimi, telefon, aadress jne). Me jälgime ja analüüsime pakkumisi, et vältida pettuseid ja reeglite rikkumisi.
Rikkumise puhul kasutajakonto blokeeritakse.