+ Lisa oma töö      

Otsid ehitajat "Puitehitised" valdkonnast?

Parima pakkumise ja teostaja leidmiseks lisa oma töö.

Hange on lõppenud!

Võitjaks osutus kasutaja ID 17335

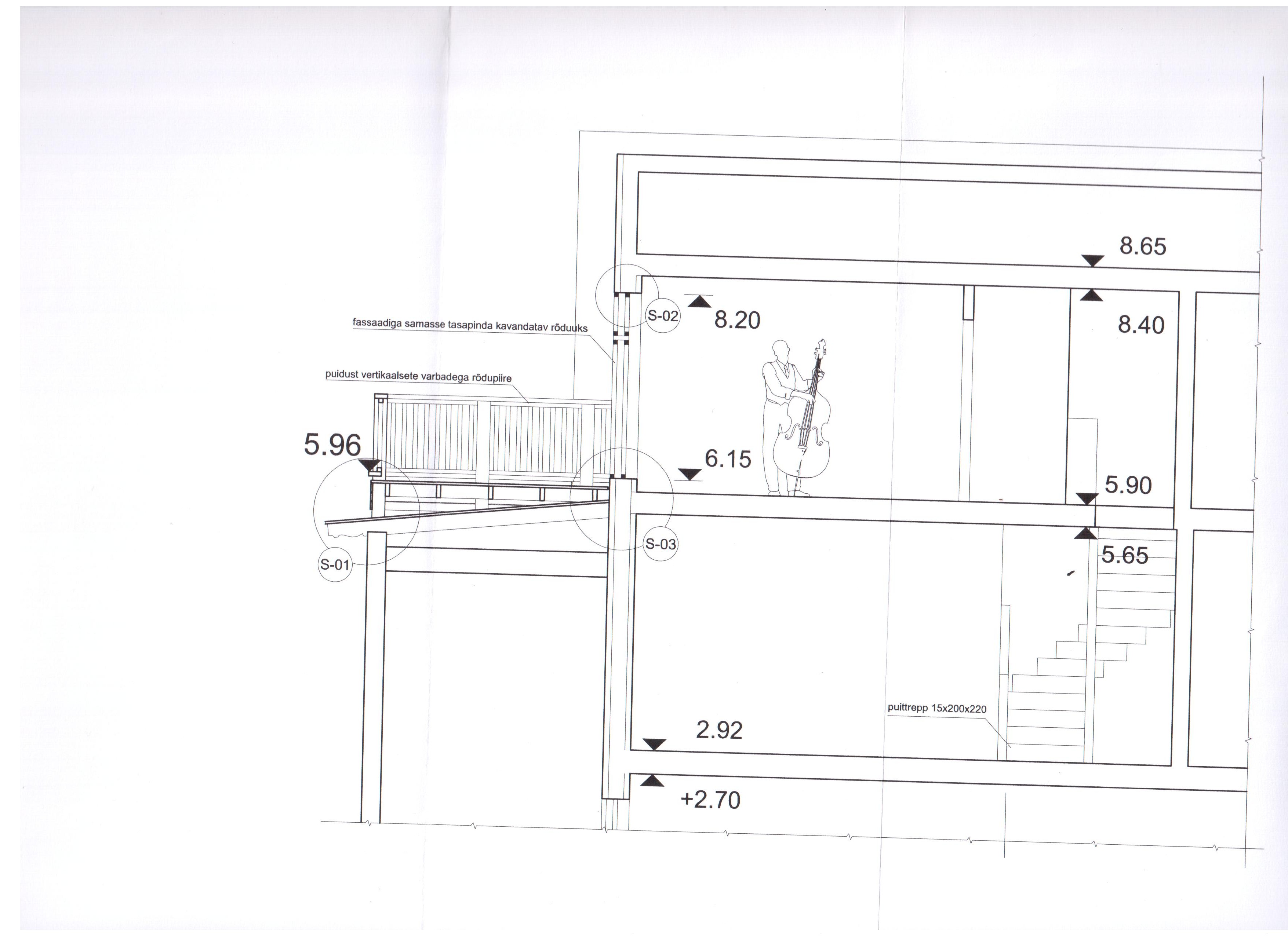
Rõdu ehitus

ID 28932

6446 vaatamist

Prindi

  • check Pakkumiste tegemine
    kuni 22.11.2013
  • check Võitja valik kuni
    29.11.2013
  • 3 Töö teostamine
    ja hinnang
Hanke lõpp: R, 22. november, 2013
Maakond: Harjumaa
Muu asula: Kalamaja
Tööde algus: E, 25. november, 2013 (Kohustuslik)
Tööde lõpp: E, 09. detsember, 2013
Ehitusmaterjalid: Töö tegija poolt

Töö sisu

Kortermaja sissekäigu katusele rõdu ehitus. ca 12m2 piirdekõrgus 1h . Ehitusmaterjal on puit.

Pildid, video ja failid

Hanke korraldaja: eraisik ID1716

Pakkumised

Pakkumisi kokku: 5

Ettevõte Summa Käibemaks Lisatud Vestlus
Kasutaja ikoon ID6503
Pakkuja profiil Väike nool paremale
600€ Ei sisalda Ei sisalda 15.11.2013 Vestlus (0)

Pakkumise kirjeldus:

GE CONSTRUCTION OU
TEL.5016128
INFO@GECO.EE

Kasutaja ikoon ID31288
Pakkuja profiil Väike nool paremale
1 300€ Ei sisalda Ei sisalda 17.11.2013 Vestlus (0)

Pakkumise kirjeldus:

Hind siis immutatud puiduga terassiehitusele. Põrandatalad tulevad kanduritega katusele ning põran restide näol peale, et hiljem lihtne puhastustöid teha oleks. Piirde alumine ning ülemine vöö 45x95mm immutatud ning pulgad 45x45 immutatud. Restide jaoks tulevad lauad 21x95mm.

LP. TM

Kasutaja ikoon ID17905
Pakkuja profiil Väike nool paremale
1 230€ Ei sisalda Ei sisalda 20.11.2013 Vestlus (0)

Pakkumise kirjeldus:

Km ei lisandu. Hind ssisaldab kõiki vajalikke materjale.

Kasutaja ikoon ID17335
Pakkuja profiil Väike nool paremale
1 250€ Ei sisalda Ei sisalda 21.11.2013 Vestlus (0)

Pakkumise kirjeldus:

Pakkumine sisaldab vajaminevaid materjale ja tööraha.Töö kiire ja korralik!

Kasutaja ikoon ID32665
Pakkuja profiil Väike nool paremale
1 250€ Ei sisalda Ei sisalda 22.11.2013 Vestlus (0)

Küsimused hanke korraldajale

Küsimus: private ID33451   15.11.2013 14:52
Tere,
Palun postitage rõdu mõõdud,mis puidust te seda soovite ja millise pind viimistlusega ?

Tervisi !

Teavita reeglite rikkumisest

Korraldaja vastus: 16.11.2013 07:04

tere.rõdu põrand on tavaline soonitud terassilaud mis on kavandatud võimalikult funktsionaalsena, arvestades võimalikku vajadust pääseda rõdu põrandalaudade alla, näiteks selle puhastamiseks on planeeritud kõnealune põrand eraldi osadena monteeritavana ja lihtsasti eemaldatavana. Ja mõõdud 12,8 m2

Teavita reeglite rikkumisest

Küsimus: private ID17905   15.11.2013 19:02
Mis on koridori kautusekate? Kas rõduukse paigaldus on ka vaja teha?

Teavita reeglite rikkumisest

Korraldaja vastus: 16.11.2013 07:06

olemasolev trapetsprofiiliga katusekate. Ei ole vaja teha, kuna uks on tellimisel paigaldusega.

Teavita reeglite rikkumisest

Küsimus: private ID17905   16.11.2013 15:38
Kas piirdeaed tuleb ka immutatud puidust või värvitud? Kas peavad olema mingi profiiliga lipid ?

Teavita reeglite rikkumisest

Korraldaja vastus: 16.11.2013 20:10

Piirded tulevad ka immutatud puidust.hiljem Saab vajadusel värvida.

Teavita reeglite rikkumisest

Lisa küsimus

Lisa küsimus

Minu pakkumine

Reeglid

Pakkumise kirjelduse väli on mõeldud pakkumise detailsemaks lahti kirjutamiseks. Pikema teksti mugavaks sisestamiseks klikkige kasti paremal ülaservas oleval ikoonil.
Pakkumist tehes on keelatud postitada enda kontaktandmeid (nimi, telefon, aadress jne). Me jälgime ja analüüsime pakkumisi, et vältida pettuseid ja reeglite rikkumisi.
Rikkumise puhul kasutajakonto blokeeritakse.

 

Teisi töid samas valdkonnas

Valdkonnas "Puitehitised" on 2 aktiivset tööd

Terrass + Puidust Pergola

Asukoht: Harjumaa, Lähtse
Aega jäänud: 3p 9h
Tehtud pakkumisi: 1

Kuur, auto varjualune

Asukoht: Pärnumaa, Kabli
Aega jäänud: 12p 9h
Tehtud pakkumisi: 1

Vanemad teated:

Vaata kõiki

Sellel veebilehel kasutatakse küpsiseid. Kasutamist jätkates nõustute küpsiste kasutamisega.

Sulge
 
Minu pakkumine

Reeglid

Pakkumise kirjelduse väli on mõeldud pakkumise detailsemaks lahti kirjutamiseks. Pikema teksti mugavaks sisestamiseks klikkige kasti paremal ülaservas oleval ikoonil.
Pakkumist tehes on keelatud postitada enda kontaktandmeid (nimi, telefon, aadress jne). Me jälgime ja analüüsime pakkumisi, et vältida pettuseid ja reeglite rikkumisi.
Rikkumise puhul kasutajakonto blokeeritakse.