+ Lisa oma töö      

Otsid ehitajat "Siseviimistlustööd" valdkonnast?

Parima pakkumise ja teostaja leidmiseks lisa oma töö.

2 toalise korteri remont

ID 28999

3152 vaatamist

Prindi

  • check Pakkumiste tegemine
    kuni 11.12.2013
  • check Võitja valik kuni
    18.12.2013
  • 3 Töö teostamine
    ja hinnang
Hanke lõpp: K, 11. detsember, 2013
Maakond: Harjumaa
Muu asula: Põhja - Tallinn
Tööde algus: E, 16. detsember, 2013 (Soovituslik)
Tööde lõpp: P, 16. veebruar, 2014 (Soovituslik)
Ehitusmaterjalid: Töö tegija poolt

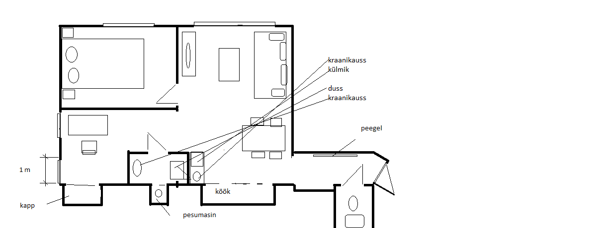
Töö sisu

2 toaline korter 43m2, wc ja dushiruum eraldi.
Seintel on vana krohv eemaldatud kuni puitsõrestikuni.
Vajalik ehitada dushiruum.
Paigaldada karkass ja kipsplaadid seintesse ja lakke + pahteldamine ja lihvimine ning värv (hele toon).
Paigaldada parkett põrandale ja plaadid dushiruumi põrandale ning seintele (materjalid toon ise)
Paigaldada san.tehnika (materjalid toon ise).
Paigaldada siseuksed (toon ise).
Paigaldada gaasiboiler.

Elektritöid ei ole vaja, selleks ehitaja olemas.
Aknad on vahetatud

Pildid, video ja failid

Hanke korraldaja: eraisik ID7113

Pakkumised

Pakkumisi kokku: 20

Ettevõte Summa Käibemaks Lisatud Vestlus
Kasutaja ikoon ID33693
Pakkuja profiil Väike nool paremale
6 000€ Ei sisalda Ei sisalda 28.11.2013 Vestlus (0)
Kasutaja ikoon ID28412
Pakkuja profiil Väike nool paremale
5 400€ Ei sisalda Ei sisalda 28.11.2013 Vestlus (0)
Kasutaja ikoon ID31939
Pakkuja profiil Väike nool paremale
5 200€ Sisaldab KM Sisaldab KM 28.11.2013 Vestlus (0)

Pakkumise kirjeldus:

Kvaliteet, garantii 2a.Lp.

Kasutaja ikoon ID5859
Pakkuja profiil Väike nool paremale
6 200€ Ei sisalda Ei sisalda 28.11.2013 Vestlus (0)

Pakkumise kirjeldus:

Hind sisaldab kõiki töödeks vajaminevaid vahendeid ja materjale, va need materjalid, mille üle saab otsustada ainult tellija nt santehnika, plaadid, uksed, parkett jne. Täpsem hind selgub peale objektiga tutvumist. Ettemaks tasutakse peale lepingu allkirjastamist. Garantii teostatud töödele 2 aastat.

Kasutaja ikoon ID30556
Pakkuja profiil Väike nool paremale
5 600€ Ei sisalda Ei sisalda 28.11.2013 Vestlus (0)
Kasutaja ikoon ID33213
Pakkuja profiil Väike nool paremale
5 000€ Ei sisalda Ei sisalda 29.11.2013 Vestlus (0)

Pakkumise kirjeldus:

Meil on suure kogemusega kvalifitseeritud spetsialistid: maaler, plaatija, parketipaigaldaja. Ehitusmaterjalide kohale toomine ning prügikoristus pärast meie tööd. Kehtiv garantii. Ettemaksu ei võta. Käibemaksu ei pea tasuma!!!

Kasutaja ikoon ID30317
Pakkuja profiil Väike nool paremale
4 800€ Ei sisalda Ei sisalda 01.12.2013 Vestlus (0)

Pakkumise kirjeldus:

Ettemaks vajalik materjaali soetamiseks.Päikest

Kasutaja ikoon ID33483
Pakkuja profiil Väike nool paremale
4 800€ Ei sisalda Ei sisalda 03.12.2013 Vestlus (0)

Pakkumise kirjeldus:

Mp 75 ei soovita,kuna puit hakkab nagunii all mängima ja lõpuks on praod taga.Las jääda ikka karkass. Hind sisaldab siis nimetatud tööe tegemist.

Kasutaja ikoon ID31426
Pakkuja profiil Väike nool paremale
6 000€ Ei sisalda Ei sisalda 04.12.2013 Vestlus (0)

Pakkumise kirjeldus:

tere hinnale ei lisandu käbemaksu, maksmine kahes osas vastavalt tööde valmimisele! Töö hinnatud tegijatelt!
Kõike paremat teile.

Kasutaja ikoon ID23287
Pakkuja profiil Väike nool paremale
5 574€ Sisaldab KM Sisaldab KM 06.12.2013 Vestlus (0)
Kasutaja ikoon ID33751
Pakkuja profiil Väike nool paremale
4 800€ Ei sisalda Ei sisalda 06.12.2013 Vestlus (0)

Pakkumise kirjeldus:

Tere,

Pakkumises arvestatud teie päringuga ja hind sisaldab materjale.Käibemaksu ei lisandu

Kasutaja ikoon ID23416
Pakkuja profiil Väike nool paremale
4 500€ Ei sisalda Ei sisalda 09.12.2013 Vestlus (0)

Pakkumise kirjeldus:

EI SISALDA GAASIBOILERI PAIGALDUST.

Kasutaja ikoon ID33782
Pakkuja profiil Väike nool paremale
5 000€ Sisaldab KM Sisaldab KM 10.12.2013 Vestlus (0)
Kasutaja ikoon ID31773
Pakkuja profiil Väike nool paremale
4 300€ Ei sisalda Ei sisalda 10.12.2013 Vestlus (0)

Pakkumise kirjeldus:

see on tööraha.materjalide arvutamiseks peaks m2 teadma

Kasutaja ikoon ID2175
Pakkuja profiil Väike nool paremale
4 250€ Ei sisalda Ei sisalda 11.12.2013 Vestlus (0)

Pakkumise kirjeldus:

Tere.Hinna sobivusel saaksime töödega alustada jaanuari alguses.Tööde kestvus max.1,5 kuud.Lugupidamisega Raimond

Kasutaja ikoon ID33658
Pakkuja profiil Väike nool paremale
4 200€ Ei sisalda Ei sisalda 11.12.2013 Vestlus (0)

Pakkumise kirjeldus:

Ettemaks on materjalide osa. Töödega saaksime alustada koheselt. Hind sisaldab loetletud töösi ja materjale mida on vaja lisaks tuua! Olemas litsentsid ehituses ja ehitusjuhtimises.
Lgp. S.R.

Kasutaja ikoon ID33664
Pakkuja profiil Väike nool paremale
3 200€ Ei sisalda Ei sisalda 11.12.2013 Vestlus (0)
Kasutaja ikoon ID33789
Pakkuja profiil Väike nool paremale
4 500€ Ei sisalda Ei sisalda 11.12.2013 Vestlus (0)
Kasutaja ikoon ID31049
Pakkuja profiil Väike nool paremale
5 400€ Ei sisalda Ei sisalda 11.12.2013 Vestlus (0)

Pakkumise kirjeldus:

Ettemaks materjali ulatuses. Töö kiire ja kvaliteetne. Tehtud töödele garantii. Edu ja lugupidamisega.

Kasutaja ikoon ID33327
Pakkuja profiil Väike nool paremale
4 000€ Ei sisalda Ei sisalda 11.12.2013 Vestlus (0)

Pakkumise kirjeldus:

Tere, tööga saaksime alustada kohe. Garantii 2 aastat ja käibemaksu ei lisandu.

Küsimused hanke korraldajale

Küsimus: private ID33691   28.11.2013 09:23
Tere!

Oleks vaja mõõtmetega korteri plaani ja võimalusel pilte, et teostada arvutused ja materjalikulu.

Teavita reeglite rikkumisest

Korraldaja vastus: 01.12.2013 23:52

hetkel joonist pole

Teavita reeglite rikkumisest

Küsimus: private ID33708   01.12.2013 12:02
Tere. Hetkel hinda koos materjaliga pakkuda ei oska, kuna on vaja teada tööde mahtu. Kuid soovitan kindlasti seina panna mp75. Karkassiga kips teeb ruumi väiksemaks. Kindlasti soovitan leida gaasiboilerile spetsjalist koos paigaldamisega. Kõike paremat.

Teavita reeglite rikkumisest

Korraldaja vastus:
Hanke korraldaja ei ole küsimusele veel vastanud

Küsimus: private ID33789   11.12.2013 21:19
Tahaks korteri vaadata

Teavita reeglite rikkumisest

Korraldaja vastus:
Hanke korraldaja ei ole küsimusele veel vastanud

Lisa küsimus

Lisa küsimus

Minu pakkumine

Reeglid

Pakkumise kirjelduse väli on mõeldud pakkumise detailsemaks lahti kirjutamiseks. Pikema teksti mugavaks sisestamiseks klikkige kasti paremal ülaservas oleval ikoonil.
Pakkumist tehes on keelatud postitada enda kontaktandmeid (nimi, telefon, aadress jne). Me jälgime ja analüüsime pakkumisi, et vältida pettuseid ja reeglite rikkumisi.
Rikkumise puhul kasutajakonto blokeeritakse.

 

Teisi töid samas valdkonnas

Valdkonnas "Siseviimistlustööd" on 25 aktiivset tööd

Korteri remont

Asukoht: Harjumaa, Muraste
Aega jäänud: 2p 6h
Tehtud pakkumisi: 15

no-img Pilt puudub

Laminaatparketi paigaldus

Asukoht: Harjumaa, Tallinn
Aega jäänud: 4p 6h
Tehtud pakkumisi: 8

Vanemad teated:

Vaata kõiki

Sellel veebilehel kasutatakse küpsiseid. Kasutamist jätkates nõustute küpsiste kasutamisega.

Sulge
 
Minu pakkumine

Reeglid

Pakkumise kirjelduse väli on mõeldud pakkumise detailsemaks lahti kirjutamiseks. Pikema teksti mugavaks sisestamiseks klikkige kasti paremal ülaservas oleval ikoonil.
Pakkumist tehes on keelatud postitada enda kontaktandmeid (nimi, telefon, aadress jne). Me jälgime ja analüüsime pakkumisi, et vältida pettuseid ja reeglite rikkumisi.
Rikkumise puhul kasutajakonto blokeeritakse.