+ Lisa oma töö      

Otsid ehitajat "Korterite remont" valdkonnast?

Parima pakkumise ja teostaja leidmiseks lisa oma töö.

Korteri ehitus (must karp)

ID 29085

4703 vaatamist

Prindi

  • check Pakkumiste tegemine
    kuni 25.01.2014
  • check Võitja valik kuni
    10.02.2014
  • 3 Töö teostamine
    ja hinnang
Hanke lõpp: L, 25. jaanuar, 2014
Maakond: Harjumaa
Linn: Tallinn
Tööde algus: N, 02. jaanuar, 2014 (Soovituslik)
Tööde lõpp: P, 02. veebruar, 2014 (Soovituslik)
Ehitusmaterjalid: Töö tellija poolt

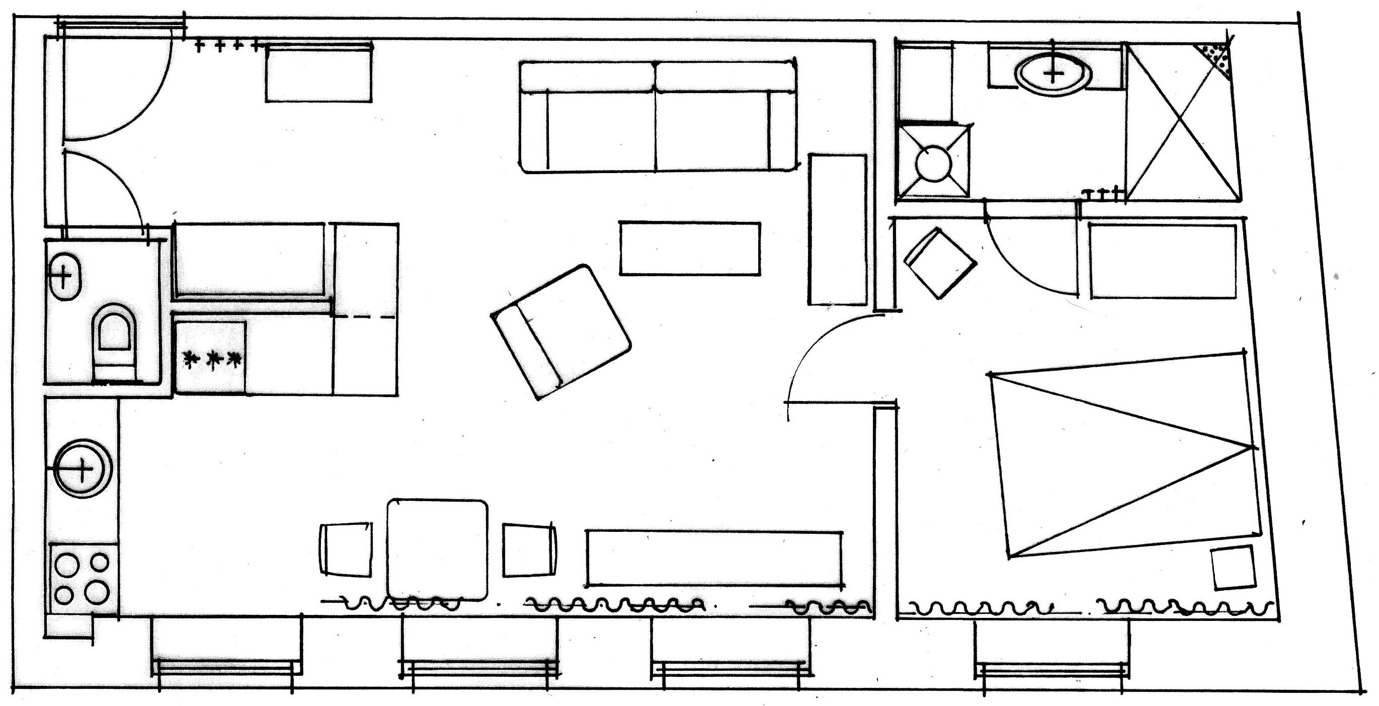
Töö sisu

Korteri ehitus, materjal tellija poolt

Korter 44m2, 3. korrus. Kõik uue korteri ehitustööd. Kapitaalremondi mahust jääb välja akende ja korteriuksebvahetus, aga aknapalede tegemine ning aknalaudade paigaldus on hankes sees. Hankes on elektritööd alates toa kilbist, uued põrandad, uued seinad, pahteldada ja värvida, laed pahteldada ja värvida, uksed vahetada (3tk), wc ja dušširuum uuesti ehitada, radiaatorid paigaldada.Vesi vedada kööki.
Põrandad laminaat, keraamiline plaat. Seinad kipsplaat.


Olemasoleva kirjeldus:
Korter musta karbina, laudpõrand, kõik kommunaalide otsad toodud korterisse


Hinnapakkumises näidata eraldi
- seinad, põrandad, laed, uksed
- elekter

Tuua välja tööde kestus.

Pildid, video ja failid

Hanke korraldaja: eraisik ID33832

Pakkumised

Pakkumisi kokku: 17

Ettevõte Summa Käibemaks Lisatud Vestlus
Kasutaja ikoon ID30768
Pakkuja profiil Väike nool paremale
5 500€ Sisaldab KM Sisaldab KM 22.12.2013 Vestlus (3)
Kasutaja ikoon ID33834
Pakkuja profiil Väike nool paremale
4 900€ Sisaldab KM Sisaldab KM 22.12.2013 Vestlus (12)

Pakkumise kirjeldus:

Elektritööde maksumus on 1400 eurot, ülejäänud on seina,-laed,-põrandad. Ja küsimus selline, et kas kõik vajalikud ehitusmaterjal on teiepoolt ning ei teki probleeme töökäigus, et midagi puudu oleks ?

Tervitades !

Kasutaja ikoon ID5859
Pakkuja profiil Väike nool paremale
5 100€ Ei sisalda Ei sisalda 23.12.2013 Vestlus (2)

Pakkumise kirjeldus:

Hind sisaldab tööraha antud projektile. Teostatud töödele garantii 2 aastat. Tööde algusaeg 28.01.2014 ja kestvus ca 1 kuu! Lugupidamisega

Kasutaja ikoon ID33639
Pakkuja profiil Väike nool paremale
5 000€ Ei sisalda Ei sisalda 23.12.2013 Vestlus (0)

Pakkumise kirjeldus:

Hind sisaldab tööraha antud projektile. Tööde algusaeg 2 jaanuar 2014 ja kestvus ca 1 kuu.

Kasutaja ikoon ID30317
Pakkuja profiil Väike nool paremale
4 880€ Ei sisalda Ei sisalda 27.12.2013 Vestlus (2)

Pakkumise kirjeldus:

Maksmine ettappide kaupa. Tööde kestus orjenteeruvalt kuskil kuuaega. see on orjenteeruv aeg. Selgub kui objekt üle vaadatud. Võimalik aidata materjaalide soetamisel. Päikest

Kasutaja ikoon ID31426
Pakkuja profiil Väike nool paremale
4 900€ Ei sisalda Ei sisalda 28.12.2013 Vestlus (6)

Pakkumise kirjeldus:

Tere Hinnale ei lisandu käibemaksu !
seinad 2400.-, põrandad 308.-, laed 264.-, uksed ja aknalauad 200.-
elekter 240.- wc ja dušširuum 1450.-
Tööde aeg 4 nädalat ! Töö hinnatud tegijatelt
Kõike paremat teile !

Kasutaja ikoon ID31317
Pakkuja profiil Väike nool paremale
5 012€ Ei sisalda Ei sisalda 29.12.2013 Vestlus (0)

Pakkumise kirjeldus:

Tere,

Edastan meie poolse pakkumise. Pakkumine sisaldab: seinte rihtimist, karkassi paigaldust, kipsiga katmist, pahteldamist ja värvimist, märgruumide seinte hüdroisolatsiooni ja plaatimist. Seinad kokku 2054€. Lagede rihtimist, karkassi paigaldust, kipsiga katmist, pahteldamist ja värvimist. Laed kokku 748€. Dušširuumi põranda valu, põranda ... Rohkem

Kasutaja ikoon ID33146
Pakkuja profiil Väike nool paremale
4 865€ Ei sisalda Ei sisalda 30.12.2013 Vestlus (4)

Pakkumise kirjeldus:

Teostatud töödel garantii 2-s aastat. Teostame ka ehitusjärelvalvet!

Lugupidamisega,
Ahti

Kasutaja ikoon ID30852
Pakkuja profiil Väike nool paremale
3 640€ Ei sisalda Ei sisalda 09.01.2014 Vestlus (0)
Kasutaja ikoon ID33951
Pakkuja profiil Väike nool paremale
3 500€ Ei sisalda Ei sisalda 09.01.2014 Vestlus (0)

Pakkumise kirjeldus:

KM ei lisandu. Ei ole km kohuslane. Töö kestus umbes 6 nädalat.

Kasutaja ikoon ID33601
Pakkuja profiil Väike nool paremale
5 140€ Ei sisalda Ei sisalda 10.01.2014 Vestlus (0)
Kasutaja ikoon ID9713
Pakkuja profiil Väike nool paremale
4 900€ Ei sisalda Ei sisalda 15.01.2014 Vestlus (0)

Pakkumise kirjeldus:

Tere. Töö aeg oleks orienteeruvalt 1,5 kuud aga täpse aja kulu oskaks öelda kui olen korteriga tutvunud. Töödele kehtib ka 2 aastane garantii aeg ning töö on kiire ja kvaliteetne. Just sai ka lõpetatud Põhja-Tallinnas kahe katuse korteri ehitamine. Lugupidamisega

Kasutaja ikoon ID28530
Pakkuja profiil Väike nool paremale
5 000€ Ei sisalda Ei sisalda 16.01.2014 Vestlus (0)

Pakkumise kirjeldus:

Keskmiselt läheb sellise töö peale 5000 eur (töökulu). Aega 1-2 kuud. Kui kirjutate täpsemal m2 ( plaat, kips, laminaat, pistikute kogus....) saab täpsemalt arvestada.

Kasutaja ikoon ID28645
Pakkuja profiil Väike nool paremale
5 000€ Ei sisalda Ei sisalda 17.01.2014 Vestlus (0)

Pakkumise kirjeldus:

Töö

Kasutaja ikoon ID9973
Pakkuja profiil Väike nool paremale
4 200€ Ei sisalda Ei sisalda 24.01.2014 Vestlus (0)

Pakkumise kirjeldus:

Tere. Hind sisaldab kõiki selle korteri kapitaalremondiks vajalike töid. Hinnale käibemaksu ei lisandu kuna pole km kohuslane . Tehtud töödele garantii 2 a. Töödeks kuluv aeg 4 kuni 5 nädalat. Vajadusel võime alustada 27 Jaanuar.

Kasutaja ikoon ID31939
Pakkuja profiil Väike nool paremale
5 800€ Sisaldab KM Sisaldab KM 24.01.2014 Vestlus (0)

Pakkumise kirjeldus:

Kiire ja korralik. Lp

Kasutaja ikoon ID33367
Pakkuja profiil Väike nool paremale
4 450€ Ei sisalda Ei sisalda 24.01.2014 Vestlus (0)

Küsimused hanke korraldajale

Küsimus: private ID31426   22.12.2013 19:48
Tere kas korteris lammutustöid ei ole vaja teha ? kõik kommunaalide otsad toodud korterisse, kuhu vesi toodud on ?kas wc ja dušširuumi asukohta on otsad olemas ? mis olukorras on laudpõrand kas korras vaja üles võtta või tasandada (lihvides) ?<br />
Hanke Pakkumiste tegemine kuni 22.01.14 ja Töö lõpp: P, veebruar 2, 2014 (Soovituslik) ? <br />

Teavita reeglite rikkumisest

Korraldaja vastus: 22.12.2013 21:32

Lammutustöid pole vaja teha. Dussiruumi on olemas, wc-sse ei ole, laudpõrand on heas korras, sinna panna laminaat peale.

Teavita reeglite rikkumisest

Küsimus: private ID33146   29.12.2013 18:16
Tere! <br />
1. Kas laed, sise –ja vaheseinad tuleb Cyproc`ist välja ehitada? <br />
2. Kas välisseinte katmisel Cyproc-plaadiga tuleb lisasoojustus? <br />
3. Kas ol.olev põranda 2 meetri kohta ebatasasus on kuni 3mm ja püsiv?<br />
4. Kas tulevad el. –või keskkütteradiaatorid? <br />
5. Kas dussiruumi tuleb põr.küte? <br />
6. Kuidas lahendatakse köögi ventilatsioon? <br />
7. Mitu amprit on peakaitse?<br />

Teavita reeglite rikkumisest

Korraldaja vastus: 29.12.2013 19:52

1. jah<br />
2. jah<br />
3. enne laminaadi panemist peab võib olla natuke lihvima<br />
4. keskkütteradiaatorid<br />
5. jah<br />
6. praegu on auk õue, midagi peaks tegema.<br />
7. 20A, 1 faas<br />
<br />
<br />
Tervitustega<br />

Teavita reeglite rikkumisest

Lisa küsimus

Lisa küsimus

Minu pakkumine

Reeglid

Pakkumise kirjelduse väli on mõeldud pakkumise detailsemaks lahti kirjutamiseks. Pikema teksti mugavaks sisestamiseks klikkige kasti paremal ülaservas oleval ikoonil.
Pakkumist tehes on keelatud postitada enda kontaktandmeid (nimi, telefon, aadress jne). Me jälgime ja analüüsime pakkumisi, et vältida pettuseid ja reeglite rikkumisi.
Rikkumise puhul kasutajakonto blokeeritakse.

 

Teisi töid samas valdkonnas

Valdkonnas "Korterite remont" on 2 aktiivset tööd

Vannitoa lampide paigaldus + erinevad pisiparandused korteris

Asukoht: Harjumaa, Tallinn
Aega jäänud: 1p 8h
Tehtud pakkumisi: 3

Korteri kapitaalremont ja ümberehitus (täielik siseviimistlus + elektritööd)

Asukoht: Järvamaa
Aega jäänud: 12p 8h
Tehtud pakkumisi: 0

Vanemad teated:

Vaata kõiki

Sellel veebilehel kasutatakse küpsiseid. Kasutamist jätkates nõustute küpsiste kasutamisega.

Sulge
 
Minu pakkumine

Reeglid

Pakkumise kirjelduse väli on mõeldud pakkumise detailsemaks lahti kirjutamiseks. Pikema teksti mugavaks sisestamiseks klikkige kasti paremal ülaservas oleval ikoonil.
Pakkumist tehes on keelatud postitada enda kontaktandmeid (nimi, telefon, aadress jne). Me jälgime ja analüüsime pakkumisi, et vältida pettuseid ja reeglite rikkumisi.
Rikkumise puhul kasutajakonto blokeeritakse.