+ Lisa oma töö      

Otsid ehitajat "Vundamenditööd" valdkonnast?

Parima pakkumise ja teostaja leidmiseks lisa oma töö.

Vundament

ID 29201

3821 vaatamist

Prindi

  • check Pakkumiste tegemine
    kuni 09.02.2014
  • check Võitja valik kuni
    16.02.2014
  • 3 Töö teostamine
    ja hinnang
Hanke lõpp: P, 9. veebruar, 2014
Maakond: Viljandimaa
Linn: Viljandi
Tööde algus: E, 24. märts, 2014 (Soovituslik)
Tööde lõpp: L, 12. aprill, 2014 (Soovituslik)
Ehitusmaterjalid: Töö tegija poolt

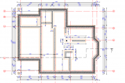
Töö sisu

Vundamendi ehitus.+ Drenaaz ja tagasitäide. Kaevetööd tehtud, killustik kohapeal olemas.

Pildid, video ja failid

Hanke korraldaja: eraisik ID5116

Pakkumised

Pakkumisi kokku: 5

Ettevõte Summa Käibemaks Lisatud Vestlus
Kasutaja ikoon ID33261
Pakkuja profiil Väike nool paremale
380€ Ei sisalda Ei sisalda 31.01.2014 Vestlus (0)

Pakkumise kirjeldus:

Tere!
On vaja projekt, kui te tahate täpne hinnapakkumine.
Praegu:
betoon: 380eur/m3
Fibo 5 300mm: 58 eur/m2
Drenaaz: 50 eur/jm

Kasutaja ikoon ID30768
Pakkuja profiil Väike nool paremale
12 500€ Sisaldab KM Sisaldab KM 31.01.2014 Vestlus (0)

Pakkumise kirjeldus:

Tere
Hind sisaldab kõiki teie poolt soovitud töid koos materjalidega. Hinnapakkumisse ei ole arvestatud killustikku kuna väidetavalt see objektil olemas. Akteerimine iga nädal, tasustamine vastavalt valminud töödele. Ettemaks materjalide osas.
Meeldivale koostööle lootma jäädes
Rando

Kasutaja ikoon ID33675
Pakkuja profiil Väike nool paremale
6 850€ Sisaldab KM Sisaldab KM 05.02.2014 Vestlus (0)
Kasutaja ikoon ID31418
Pakkuja profiil Väike nool paremale
8 000€ Ei sisalda Ei sisalda 07.02.2014 Vestlus (0)
Kasutaja ikoon ID18444
Pakkuja profiil Väike nool paremale
13 100€ Ei sisalda Ei sisalda 09.02.2014 Vestlus (0)

Pakkumise kirjeldus:

Tere.. Hind sisaldab kõiki vajaminevaid töid ja materjale.(k.a. geodeet ja pinnase tiheduse mõõtmine). Eeldusega et objekjektile on ligipääs raskeveokitele tagatud, olemas objektil vesi ja elekter.... Lugupidamisega

Küsimused hanke korraldajale

Küsimus: private ID8095   27.01.2014 07:51
Tere.Välis-ja siseseinte kivide mõõt on kuid mis kividega on tegemist(õõnes,fibo jne)

Teavita reeglite rikkumisest

Korraldaja vastus: 27.01.2014 12:30

Fibo 5

Teavita reeglite rikkumisest

Küsimus: private ID32048   28.01.2014 11:53
Tere.<br />
Väga raske on neid numbreid joonisel näha kas saaks vähe teravamaks neid numbreid.<br />

Teavita reeglite rikkumisest

Korraldaja vastus:
Hanke korraldaja ei ole küsimusele veel vastanud

Küsimus: private ID8095   30.01.2014 07:52
Tere.Ka mina ei saa kuidagi mõõte välja loetud.

Teavita reeglite rikkumisest

Korraldaja vastus:
Hanke korraldaja ei ole küsimusele veel vastanud

Lisa küsimus

Lisa küsimus

Minu pakkumine

Reeglid

Pakkumise kirjelduse väli on mõeldud pakkumise detailsemaks lahti kirjutamiseks. Pikema teksti mugavaks sisestamiseks klikkige kasti paremal ülaservas oleval ikoonil.
Pakkumist tehes on keelatud postitada enda kontaktandmeid (nimi, telefon, aadress jne). Me jälgime ja analüüsime pakkumisi, et vältida pettuseid ja reeglite rikkumisi.
Rikkumise puhul kasutajakonto blokeeritakse.

 

Vanemad teated:

Vaata kõiki

Sellel veebilehel kasutatakse küpsiseid. Kasutamist jätkates nõustute küpsiste kasutamisega.

Sulge
 
Minu pakkumine

Reeglid

Pakkumise kirjelduse väli on mõeldud pakkumise detailsemaks lahti kirjutamiseks. Pikema teksti mugavaks sisestamiseks klikkige kasti paremal ülaservas oleval ikoonil.
Pakkumist tehes on keelatud postitada enda kontaktandmeid (nimi, telefon, aadress jne). Me jälgime ja analüüsime pakkumisi, et vältida pettuseid ja reeglite rikkumisi.
Rikkumise puhul kasutajakonto blokeeritakse.