+ Lisa oma töö      

Otsid ehitajat "Eramu ehitus" valdkonnast?

Parima pakkumise ja teostaja leidmiseks lisa oma töö.

Hange on lõppenud!

Võitjaks osutus kasutaja ID 34028

Eramu sisetööd

ID 29555

3075 vaatamist

Prindi

  • check Pakkumiste tegemine
    kuni 15.04.2014
  • check Võitja valik kuni
    22.04.2014
  • 3 Töö teostamine
    ja hinnang
Hanke lõpp: T, 15. aprill, 2014
Maakond: Tartumaa
Linn: Elva
Tööde algus: N, 01. mai, 2014 (Soovituslik)
Tööde lõpp: P, 31. august, 2014 (Soovituslik)
Ehitusmaterjalid: Töö tegija poolt

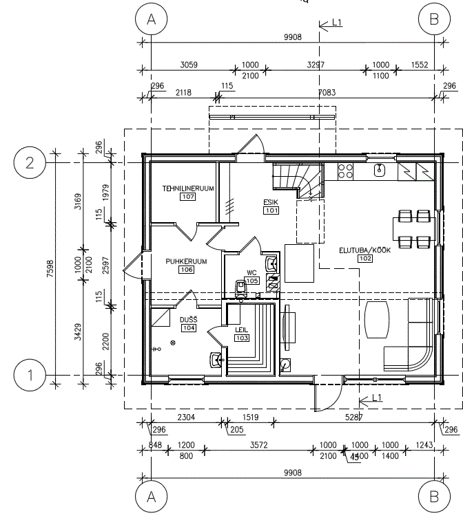
Töö sisu

Soovin hinnapakkumist eramu sisetöödele. Objektiks on aastal 2012 valminud kahekorruseline pakettpuumaja. Käesolev hange kehtib alumise korruse töödele. Elektritööd on majas tehtud. Töö sisaldab:

- leiliruumi ehitus koos elektrikerisega (3,5m2)
- dushi- ja ühe wc-ruumi plaatimine, sanitaartehnika ja selle paigaldus (7,6m2)
- vahelae roovi ja kipsplaadi paigaldus
- siseuksed ja paigaldus (4 tükki)
- puittrep käsipuudega ja paigaldus
- laminaatpõrand ja paigaldus (elutuba + esik, pindala ca 40m2)
- seinte ja lae pahteldamine ning värvimine

Võimaluse korral hange võib sisaldada ka järgmised torutööd
- boiler + paigaldus
- külma- ja soojaveetorutööd (tehnilisest ruumist dushiruumi, wc:sse ja kööki)

Pildid, video ja failid

Hanke korraldaja: eraisik ID34682

Pakkumised

Pakkumisi kokku: 4

Ettevõte Summa Käibemaks Lisatud Vestlus
Kasutaja ikoon ID31418
Pakkuja profiil Väike nool paremale
4 900€ Ei sisalda Ei sisalda 19.03.2014 Vestlus (0)
Kasutaja ikoon ID34028
Pakkuja profiil Väike nool paremale
8€ Ei sisalda Ei sisalda 29.03.2014 Vestlus (0)

Pakkumise kirjeldus:

Teen alguse lagede paigaldusega, hind siis tööle, ülejäänud lepime kokku kohapeal. Materjali võite osta ise või siis läbi meie. Kui soovite pilte meiepoolt tehtud töödest siis antke teada kogemusi vundamendist katuseni piisavalt.

Kasutaja ikoon ID30483
Pakkuja profiil Väike nool paremale
2 200€ Ei sisalda Ei sisalda 31.03.2014 Vestlus (0)
Kasutaja ikoon ID33612
Pakkuja profiil Väike nool paremale
2 100€ Ei sisalda Ei sisalda 12.04.2014 Vestlus (0)

Pakkumise kirjeldus:

Tööraha millele makse ei lisandu. Kaks kogenud töömeest. Materjalidele saame soodustusi. Hind ei sisalda torutöid, need võib üle vaadata kohapeal. Lugupidamisega...

Küsimused hanke korraldajale

Küsimus: private ID33612   23.03.2014 13:49
Tere. Kas pakkumises tuleks arvestada ka san.tehnikaga ja laminaadiga? Või teete need valikud ise? Lugupidamisega...

Teavita reeglite rikkumisest

Korraldaja vastus: 24.03.2014 19:13

Tervist ja tänud küsimuse eest. Sanitaartehnika ja laminaadi materialide maksumuse võite hinnapakkumisest välja jätta.

Teavita reeglite rikkumisest

Küsimus: private ID34447   29.03.2014 19:15
Tere,kas te soovide ainult töö hinda millele lisanud hiljem ehitus materjal otsa.<br />

Teavita reeglite rikkumisest

Korraldaja vastus: 30.03.2014 19:22

Tervist! Selguse mõttes on parem et pakkumises oleks ainult töö hind.

Teavita reeglite rikkumisest

Lisa küsimus

Lisa küsimus

Minu pakkumine

Reeglid

Pakkumise kirjelduse väli on mõeldud pakkumise detailsemaks lahti kirjutamiseks. Pikema teksti mugavaks sisestamiseks klikkige kasti paremal ülaservas oleval ikoonil.
Pakkumist tehes on keelatud postitada enda kontaktandmeid (nimi, telefon, aadress jne). Me jälgime ja analüüsime pakkumisi, et vältida pettuseid ja reeglite rikkumisi.
Rikkumise puhul kasutajakonto blokeeritakse.

 

Vanemad teated:

Vaata kõiki

Sellel veebilehel kasutatakse küpsiseid. Kasutamist jätkates nõustute küpsiste kasutamisega.

Sulge
 
Minu pakkumine

Reeglid

Pakkumise kirjelduse väli on mõeldud pakkumise detailsemaks lahti kirjutamiseks. Pikema teksti mugavaks sisestamiseks klikkige kasti paremal ülaservas oleval ikoonil.
Pakkumist tehes on keelatud postitada enda kontaktandmeid (nimi, telefon, aadress jne). Me jälgime ja analüüsime pakkumisi, et vältida pettuseid ja reeglite rikkumisi.
Rikkumise puhul kasutajakonto blokeeritakse.