+ Lisa oma töö      

Otsid ehitajat "Katusetööd" valdkonnast?

Parima pakkumise ja teostaja leidmiseks lisa oma töö.

Katuse ehitus

ID 29579

10361 vaatamist

Prindi

  • check Pakkumiste tegemine
    kuni 28.03.2014
  • check Võitja valik kuni
    07.04.2014
  • 3 Töö teostamine
    ja hinnang
Hanke lõpp: R, 28. märts, 2014
Maakond: Harjumaa
Linn: Keila
Tööde algus: T, 01. aprill, 2014 (Soovituslik)
Tööde lõpp: L, 31. mai, 2014 (Soovituslik)
Ehitusmaterjalid: Töö tellija poolt

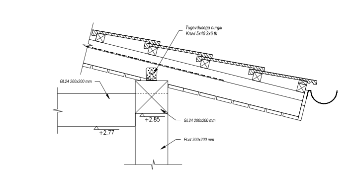
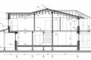
Töö sisu

Katuse ehitus konstruktsioonist katuse kivini .

Pildid, video ja failid

Hanke korraldaja: eraisik ID32206

Pakkumised

Pakkumisi kokku: 4

Ettevõte Summa Käibemaks Lisatud Vestlus
Kasutaja ikoon ID33358
Pakkuja profiil Väike nool paremale
85€ Ei sisalda Ei sisalda 25.03.2014 Vestlus (0)

Pakkumise kirjeldus:

Garantii tööle 10a.
85eur m2

Kasutaja ikoon ID33675
Pakkuja profiil Väike nool paremale
13 776,8€ Ei sisalda Ei sisalda 27.03.2014 Vestlus (10)

Pakkumise kirjeldus:

Hind sisaldab katuse puitkonstruktsiooni ehitust, soojustuse (vill) paigaldust, katuse katte (kivi) paigaldust, vihmavee rennide ja torude paigaldust, garantiid teostatud töödele 2 aastat. Hind ei sisalda materjalide maksumust. Materjalide tarnimine poolte kokkuleppel hinnapakkumiste võrdluse järgi.

Kasutaja ikoon ID33915
Pakkuja profiil Väike nool paremale
6 700€ Ei sisalda Ei sisalda 28.03.2014 Vestlus (1)
Kasutaja ikoon ID27922
Pakkuja profiil Väike nool paremale
17 400€ Ei sisalda Ei sisalda 28.03.2014 Vestlus (0)

Pakkumise kirjeldus:

Tere. Hind sisaldab katusekonstruktsioonide ehitust ja katusekatte paigaldust. Hind ei sisalda materjale ja kinnitusvahendeid, kuid soovi korral teeme materjalidele väga soodsa pakkumise. Kaetud tööde aktid, objekti päevik ja kõik muud jutud vastavalt heale ehitustavale. Soovi korral saate korraliku ja toimiva garantii Eesti ühe suurima ehitusmaterjal ... Rohkem

Küsimused hanke korraldajale

Küsimus: private ID33436   26.03.2014 08:14
Tere,<br />
<br />
Kas oleksite nõus tegema tunnitööga või ainult tükihinnaga?<br />
<br />
Tervitustega,<br />
<br />
Tiit

Teavita reeglite rikkumisest

Korraldaja vastus: 26.03.2014 09:21

Tere<br />
<br />
Tegemist tükitööga , ootan pakkumise hinda kogu katuse ehitusele.<br />
<br />
Ivo

Teavita reeglite rikkumisest

Küsimus: private ID33436   26.03.2014 16:36
Tere,<br />
<br />
Kas sarikate vahele tuleb paigaldada ka soojustus ja tuuletõke? või seda teostatakse hiljem peale katuse valmimist?<br />
<br />
<br />
Tervitustega,<br />
<br />
Tiit

Teavita reeglite rikkumisest

Korraldaja vastus: 26.03.2014 17:30

soojustus ja tuuletõke paigaldatakse hiljem.

Teavita reeglite rikkumisest

Lisa küsimus

Lisa küsimus

Minu pakkumine

Reeglid

Pakkumise kirjelduse väli on mõeldud pakkumise detailsemaks lahti kirjutamiseks. Pikema teksti mugavaks sisestamiseks klikkige kasti paremal ülaservas oleval ikoonil.
Pakkumist tehes on keelatud postitada enda kontaktandmeid (nimi, telefon, aadress jne). Me jälgime ja analüüsime pakkumisi, et vältida pettuseid ja reeglite rikkumisi.
Rikkumise puhul kasutajakonto blokeeritakse.

 

Teisi töid samas valdkonnas

Valdkonnas "Katusetööd" on 9 aktiivset tööd

no-img Pilt puudub

Käidava katuse PVC 54m2

Asukoht: Harjumaa, Muraste
Aega jäänud: 4p 6h
Tehtud pakkumisi: 3

Suvila

Asukoht: Pärnumaa, Eametsa
Aega jäänud: 6h 55 min
Tehtud pakkumisi: 2

Vanemad teated:

Vaata kõiki

Sellel veebilehel kasutatakse küpsiseid. Kasutamist jätkates nõustute küpsiste kasutamisega.

Sulge
 
Minu pakkumine

Reeglid

Pakkumise kirjelduse väli on mõeldud pakkumise detailsemaks lahti kirjutamiseks. Pikema teksti mugavaks sisestamiseks klikkige kasti paremal ülaservas oleval ikoonil.
Pakkumist tehes on keelatud postitada enda kontaktandmeid (nimi, telefon, aadress jne). Me jälgime ja analüüsime pakkumisi, et vältida pettuseid ja reeglite rikkumisi.
Rikkumise puhul kasutajakonto blokeeritakse.