+ Lisa oma töö      

Otsid ehitajat "Elektritööd" valdkonnast?

Parima pakkumise ja teostaja leidmiseks lisa oma töö.

Hange on lõppenud!

Võitjaks osutus kasutaja ID 31451

Korraldaja hinnang tehtud tööle

5.0
23.08.2014
Töökiirus: 12345
Kvaliteet: 12345
Hind: 12345

Igati vastutulelik ja korralik tegija. Kindlad soovitused minu poolt. Edu ja jõudu edaspidiseks

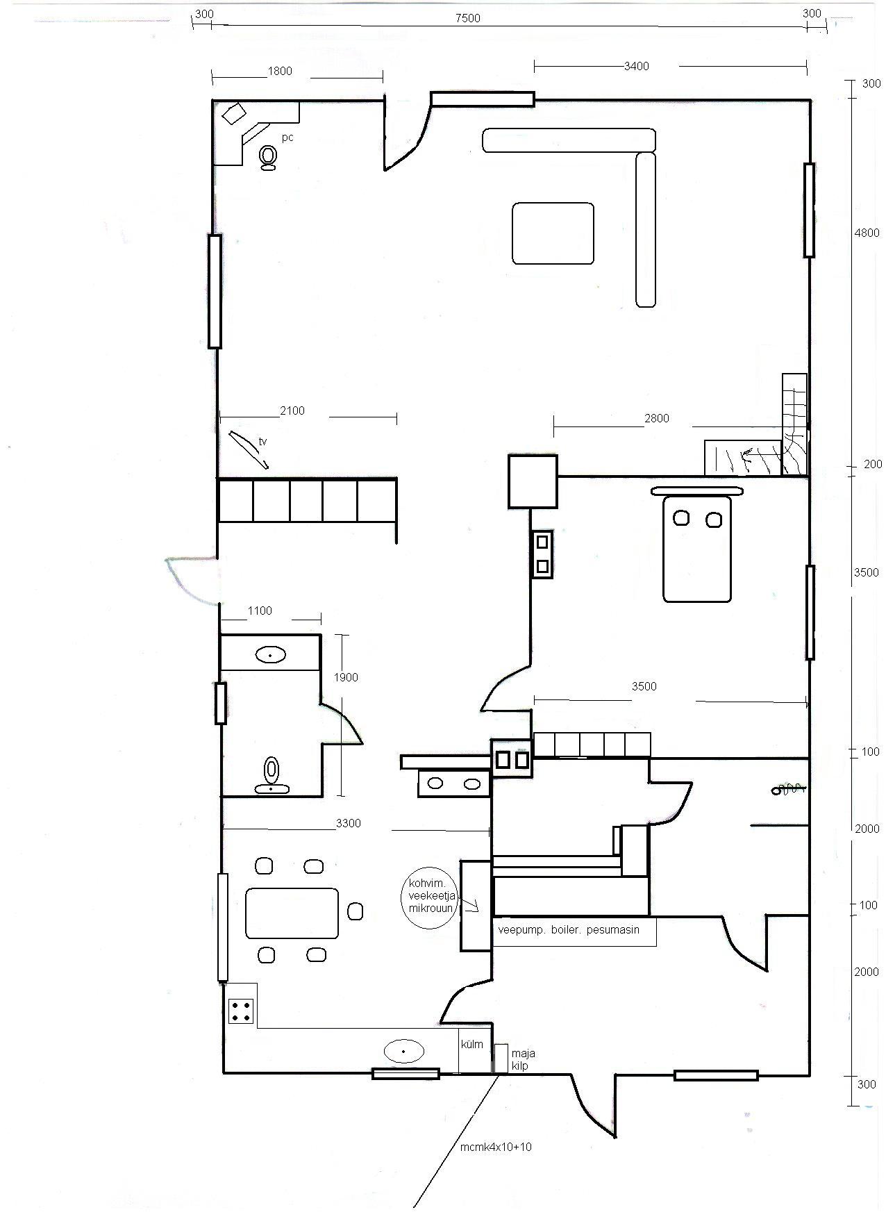
100m2 majale vaja elektrimõõdistus akti ja muid pabereid kasutusloa saamiseks

ID 29801

9443 vaatamist

Prindi

  • check Pakkumiste tegemine
    kuni 28.04.2014
  • check Võitja valik kuni
    05.05.2014
  • 3 Töö teostamine
    ja hinnang
Hanke lõpp: E, 28. aprill, 2014
Maakond: Läänemaa
Tööde algus: R, 18. aprill, 2014 (Soovituslik)
Tööde lõpp: P, 04. mai, 2014 (Soovituslik)
Ehitusmaterjalid: Töö tellija poolt

Töö sisu

tere. oleks vaja pabereid 100m2 maja elektrisüsteemile. (teostusjoonised, mõõdistus akt jne) kasutusloa saamiseks.
objekt asub läänemaal, hanila vallas.

Pildid, video ja failid

Hanke korraldaja: eraisik ID35006

Pakkumised

Pakkumisi kokku: 1    

Ettevõte Summa Käibemaks Ettemaks Lisatud Vestlus
Private Crown ID31451 4.7 800,0 € Ei sisalda Ei sisalda Ei soovi 21.04.2014 Vestlus (4)

Ettevõtte lühiinfo (vaata täisprofiili ID31451 ) :

Firma nimi: ********** **
E-mail: *************************
Telefon: ********
Kontaktisik: **** ******
Asukoht: ******** ********
Käive: 2187.00
(periood 01.07.2025 - 30.09.2025)
Töötajaid: Andmed puuduvad
Asutatud: 2013
MTR: Elektritööd
Maksuvõlg: puudub (seisuga 08.12.2025)

Keskmine hinnang:

4.7
Töökiirus: 12345
Kvaliteet: 12345
Hind: 12345

Hinnanguid: 11
Tehtud tööde pildid: 19

Pakkumise kirjeldus:

Teostusjoonised,kontrollmõõtmised,nõuetekohasuse tunnistus.

Küsimused hanke korraldajale

Küsimus: private ID34836   14.04.2014 08:49
Tere<br />
<br />
Kas saan õigesti aru, et teil siis vaja projekti, elektripaigaldise ehitaja deklaratsiooni ning elektripaigaldise nõuetekohasuse tunnistust?

Teavita reeglite rikkumisest

Korraldaja vastus: 14.04.2014 19:54

tere<br />
<br />
olete asjast õieti aru saanud.<br />
täpsustan natuke asja. nimelt maja sai hakatud ehitama oma 7a tagasi ja ehituse käigus said kaablid kohe oma vajadusi arvestades ise ära veetud. nüüd mõniaeg tagasi sai olude sunnil mija kolitud ja pistikupesad ja lambid ühendatud. asi oli sinna maani kena kui energija müüa helistas ja pabereid küsima hakkas. kuna maja veel ehitus järgus ja päris kasutusluba veel ei taotle aga kuna elan sees siis energija müüal vaja dokumentatsiooni et asi nõutekohane, kuna aeg edasi ja päris ise enam ei tohi pikendusjuhetki seina panna vist.

Teavita reeglite rikkumisest

Küsimus: private ID31470   15.04.2014 10:07
Tere, kas saaksite ka kilbi sisust paar klõpsu lisada? Kahtlustan, et enne kui pabereid saab vormistada, tuleb kilpi täiendada. Lugupidamisega, V.

Teavita reeglite rikkumisest

Korraldaja vastus: 15.04.2014 19:37

tere,<br />
leidsin arvutist paar pilti ja lisasin, kvaliteet pole just kõige parem aga uusi hetkel teha ei saa.

Teavita reeglite rikkumisest

Küsimus: private ID31451   16.04.2014 22:03
Tere! Kas hoonel maandus olemas ja kui jah,siis kas vastab ka normidele?

Teavita reeglite rikkumisest

Korraldaja vastus: 18.04.2014 08:39

tere. maandus ühendatud liitumiskilbis( maakaabel) ja eraldi lisamaanduseks veetud 16mm2 30jm kaablikraavi.

Teavita reeglite rikkumisest

Küsimus: private ID27307   20.04.2014 20:56
tere<br />
kas hoone alusplaani dwg fail on?

Teavita reeglite rikkumisest

Korraldaja vastus: 20.04.2014 22:01

tere, <br />
kahjuks seda ei ole.<br />

Teavita reeglite rikkumisest

Lisa küsimus

Lisa küsimus

Minu pakkumine

%

Reeglid

Pakkumise kirjelduse väli on mõeldud pakkumise detailsemaks lahti kirjutamiseks. Pikema teksti mugavaks sisestamiseks klikkige kasti paremal ülaservas oleval ikoonil.
Pakkumist tehes on keelatud postitada enda kontaktandmeid (nimi, telefon, aadress jne). Me jälgime ja analüüsime pakkumisi, et vältida pettuseid ja reeglite rikkumisi.
Rikkumise puhul kasutajakonto blokeeritakse.

 

Teisi töid samas valdkonnas

Valdkonnas "Elektritööd" on 7 aktiivset tööd

Seadme luuk ja elektri vedemine kilbist

Asukoht: Harjumaa, Tallinn
Aega jäänud: 1p 2h
Tehtud pakkumisi: 7

Elektrijuhtmete vedamine

Asukoht: Harjumaa, Tallinn
Aega jäänud: 1p 2h
Tehtud pakkumisi: 4

Vanemad teated:

Vaata kõiki

Sellel veebilehel kasutatakse küpsiseid. Kasutamist jätkates nõustute küpsiste kasutamisega.

Sulge
 
Minu pakkumine
%

Reeglid

Pakkumise kirjelduse väli on mõeldud pakkumise detailsemaks lahti kirjutamiseks. Pikema teksti mugavaks sisestamiseks klikkige kasti paremal ülaservas oleval ikoonil.
Pakkumist tehes on keelatud postitada enda kontaktandmeid (nimi, telefon, aadress jne). Me jälgime ja analüüsime pakkumisi, et vältida pettuseid ja reeglite rikkumisi.
Rikkumise puhul kasutajakonto blokeeritakse.