+ Lisa oma töö      

Otsid ehitajat "Projekteerimine" valdkonnast?

Parima pakkumise ja teostaja leidmiseks lisa oma töö.

Hange on lõppenud!

Võitjaks osutus kasutaja ID 33196

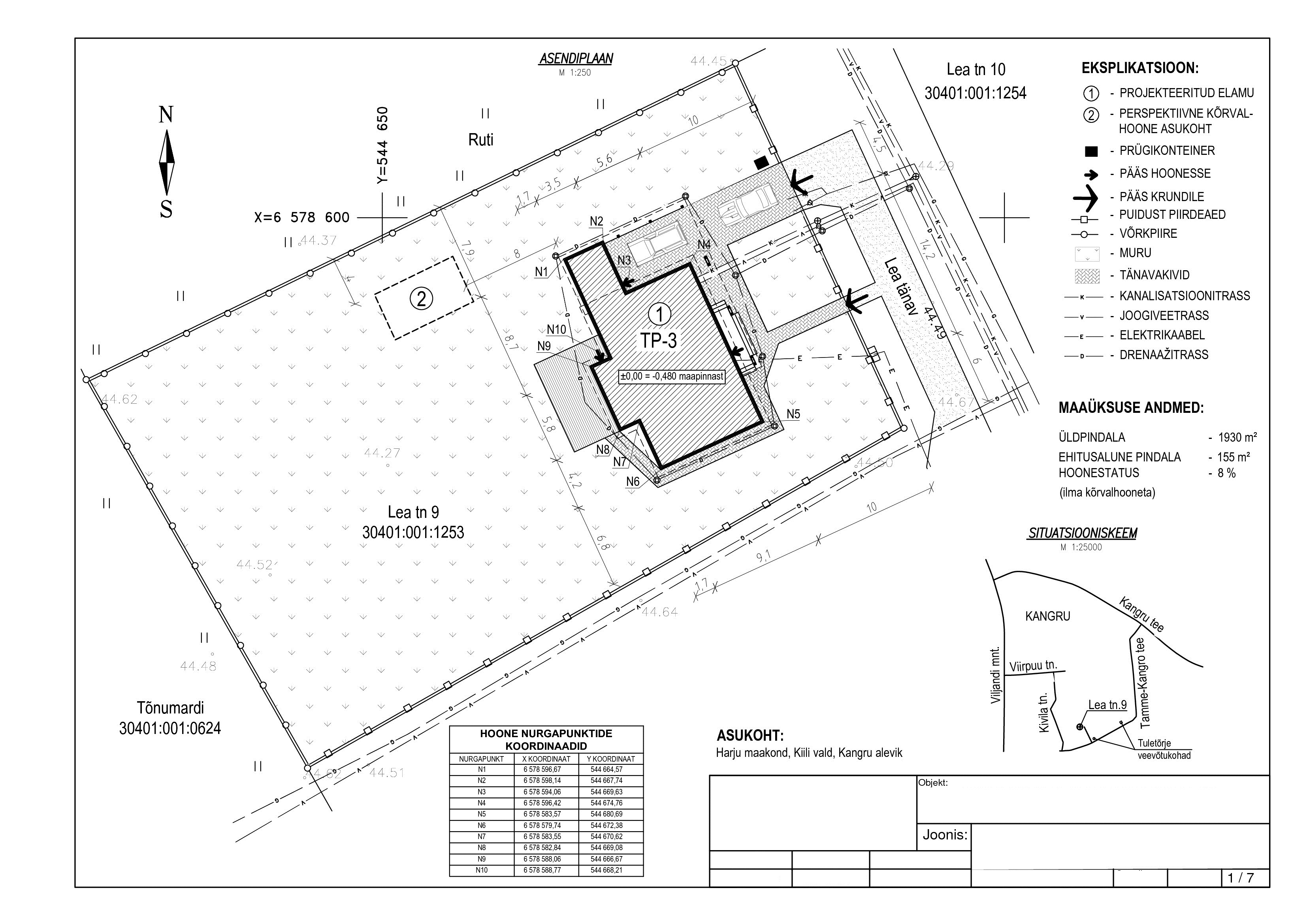
Detailplaneering lihtsustatud korras.

ID 29825

4791 vaatamist

Prindi

  • check Pakkumiste tegemine
    kuni 30.04.2014
  • check Võitja valik kuni
    07.05.2014
  • 3 Töö teostamine
    ja hinnang
Hanke lõpp: K, 30. aprill, 2014
Maakond: Harjumaa
Muu asula: Kangru küla
Tööde algus: K, 30. aprill, 2014 (Soovituslik)
Tööde lõpp: K, 07. mai, 2014 (Soovituslik)
Ehitusmaterjalid: Töö tellija poolt

Töö sisu

Detailplaneeringu muutus.
Detail planeeringus eesmärk:
1. Ehitusjoont soov liigutada tänava telgjoone poole. 16 meetrilt 10 meetri peale.
2. Seoses eelnevaga kaasneb ka osaline hoonestus ala muutus.

Muutus on vaid ehitusjoone muutmine tänava poole ja see tõttu ka hoonestus ala mõningane muutus.

Pildid, video ja failid

Hanke korraldaja: eraisik ID35045

Pakkumised

Pakkumisi kokku: 6

Ettevõte Summa Käibemaks Lisatud Vestlus
Kasutaja ikoon ID22632
Pakkuja profiil Väike nool paremale
3 000€ Ei sisalda Ei sisalda 17.04.2014 Vestlus (0)

Pakkumise kirjeldus:

Detailplaneeringu koostamine ja kooskõlastused. Tööd ja toimingud kiili vv dp vastuvõtmiseks ja kehtestamiseks

Kasutaja ikoon ID33196
Pakkuja profiil Väike nool paremale
1 500€ Ei sisalda Ei sisalda 29.04.2014 Vestlus (4)

Pakkumise kirjeldus:

Tere. Detailplaneering koos kõikide kooskõlastustega, asjaajamistega . MTR registreering. Parimate soovitega

Kasutaja ikoon ID33383
Pakkuja profiil Väike nool paremale
2 400€ Ei sisalda Ei sisalda 30.04.2014 Vestlus (0)

Pakkumise kirjeldus:

Hinnapakkumine vastavalt hanke dokumentidele

Kasutaja ikoon ID33797
Pakkuja profiil Väike nool paremale
1 350€ Ei sisalda Ei sisalda 30.04.2014 Vestlus (0)
Kasutaja ikoon ID35050
Pakkuja profiil Väike nool paremale
1 330€ Ei sisalda Ei sisalda 30.04.2014 Vestlus (0)

Pakkumise kirjeldus:

firma ei ole km. kohuslane

Kasutaja ikoon ID33422
Pakkuja profiil Väike nool paremale
1 250€ Ei sisalda Ei sisalda 30.04.2014 Vestlus (1)

Pakkumise kirjeldus:

Tere!
Koostame ja kooskõlastame soovitud detailplaneeringu vastavalt Kiili Vallavalitsuse korraldusele. Meie pakutud hinnale ei lisandu käibemaksu.

Parimat!

Küsimused hanke korraldajale

Hanke korraldajale ei ole veel küsimusi esitatud.

Lisa küsimus

Lisa küsimus

Minu pakkumine

Reeglid

Pakkumise kirjelduse väli on mõeldud pakkumise detailsemaks lahti kirjutamiseks. Pikema teksti mugavaks sisestamiseks klikkige kasti paremal ülaservas oleval ikoonil.
Pakkumist tehes on keelatud postitada enda kontaktandmeid (nimi, telefon, aadress jne). Me jälgime ja analüüsime pakkumisi, et vältida pettuseid ja reeglite rikkumisi.
Rikkumise puhul kasutajakonto blokeeritakse.

 

Teisi töid samas valdkonnas

Valdkonnas "Projekteerimine" on 7 aktiivset tööd

no-img Pilt puudub

1-kordse 120 m2 elumaja põhiprojekt

Asukoht: Harjumaa, Metsanurme
Aega jäänud: 8p 10h
Tehtud pakkumisi: 4

no-img Pilt puudub

Saunamaja eelprojekt ehitusteatiseks

Asukoht: Lääne-Virumaa
Aega jäänud: 1p 10h
Tehtud pakkumisi: 3

Vanemad teated:

Vaata kõiki

Sellel veebilehel kasutatakse küpsiseid. Kasutamist jätkates nõustute küpsiste kasutamisega.

Sulge
 
Minu pakkumine

Reeglid

Pakkumise kirjelduse väli on mõeldud pakkumise detailsemaks lahti kirjutamiseks. Pikema teksti mugavaks sisestamiseks klikkige kasti paremal ülaservas oleval ikoonil.
Pakkumist tehes on keelatud postitada enda kontaktandmeid (nimi, telefon, aadress jne). Me jälgime ja analüüsime pakkumisi, et vältida pettuseid ja reeglite rikkumisi.
Rikkumise puhul kasutajakonto blokeeritakse.