+ Lisa oma töö      

Otsid ehitajat "Eramu ehitus" valdkonnast?

Parima pakkumise ja teostaja leidmiseks lisa oma töö.

Hange on lõppenud!

Võitjaks osutus kasutaja ID 6061

Eramu sisetööd, ümberehitus

ID 30258

2396 vaatamist

Prindi

  • check Pakkumiste tegemine
    kuni 05.06.2014
  • check Võitja valik kuni
    19.06.2014
  • 3 Töö teostamine
    ja hinnang
Hanke lõpp: N, 5. juuni, 2014
Maakond: Harjumaa
Muu asula: Kiili
Tööde algus: E, 16. juuni, 2014 (Soovituslik)
Tööde lõpp: E, 21. juuli, 2014 (Soovituslik)
Ehitusmaterjalid: Töö tegija poolt

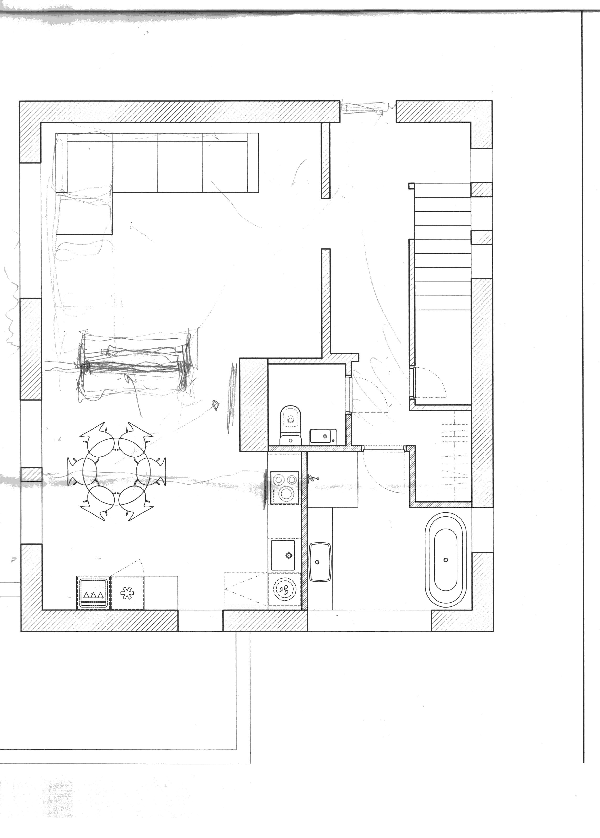
Töö sisu

Soov muuta ruumide paigutust seoses sellega vaja lõhkuda maha 2 vaheseina ning ehitada uus vahesin.
Puurida betoonpõrandasse torustiku läbiviigud( täiskelder ja torustiku ühenduskohad läbiviikude all).
Paigaldada uus põrand, vana põrand vaja osaliselt üles võtta.

Teha siseviimistlus

Pildid, video ja failid

Hanke korraldaja: eraisik ID4445

Pakkumised

Pakkumisi kokku: 2

Ettevõte Summa Käibemaks Lisatud Vestlus
Kasutaja ikoon ID6061
Pakkuja profiil Väike nool paremale
20 000€ Ei sisalda Ei sisalda 05.06.2014 Vestlus (3)

Pakkumise kirjeldus:

Tere.
Teen pakkumise üldjoontes.
Teostame kõiki ehitustöid võtmed kätte meetodil.
Kogemused Eestis ja Soomes aastast 2004.
Tööde orjenteeruv maht 800 tundi kahe kuu jooksul.
Pakun ajatööd 25€/h inimene. Tasumine arvega.
Materjalid vastavalt kulule.
Lugupidamisega.

Kasutaja ikoon ID35414
Pakkuja profiil Väike nool paremale
19 000€ Ei sisalda Ei sisalda 05.06.2014 Vestlus (0)

Pakkumise kirjeldus:

Meeldivat koostööd soovides

Küsimused hanke korraldajale

Hanke korraldajale ei ole veel küsimusi esitatud.

Lisa küsimus

Lisa küsimus

Minu pakkumine

Reeglid

Pakkumise kirjelduse väli on mõeldud pakkumise detailsemaks lahti kirjutamiseks. Pikema teksti mugavaks sisestamiseks klikkige kasti paremal ülaservas oleval ikoonil.
Pakkumist tehes on keelatud postitada enda kontaktandmeid (nimi, telefon, aadress jne). Me jälgime ja analüüsime pakkumisi, et vältida pettuseid ja reeglite rikkumisi.
Rikkumise puhul kasutajakonto blokeeritakse.

 

Vanemad teated:

Vaata kõiki

Sellel veebilehel kasutatakse küpsiseid. Kasutamist jätkates nõustute küpsiste kasutamisega.

Sulge
 
Minu pakkumine

Reeglid

Pakkumise kirjelduse väli on mõeldud pakkumise detailsemaks lahti kirjutamiseks. Pikema teksti mugavaks sisestamiseks klikkige kasti paremal ülaservas oleval ikoonil.
Pakkumist tehes on keelatud postitada enda kontaktandmeid (nimi, telefon, aadress jne). Me jälgime ja analüüsime pakkumisi, et vältida pettuseid ja reeglite rikkumisi.
Rikkumise puhul kasutajakonto blokeeritakse.