+ Lisa oma töö      

Otsid ehitajat "Vannitubade remont" valdkonnast?

Parima pakkumise ja teostaja leidmiseks lisa oma töö.

Vannitoa ja WC remont korteris

ID 30326

4603 vaatamist

Prindi

  • check Pakkumiste tegemine
    kuni 03.07.2014
  • check Võitja valik kuni
    10.07.2014
  • 3 Töö teostamine
    ja hinnang
Hanke lõpp: N, 3. juuli, 2014
Maakond: Harjumaa
Linn: Tallinn
Tööde algus: T, 01. juuli, 2014 (Soovituslik)
Tööde lõpp: N, 31. juuli, 2014 (Soovituslik)
Ehitusmaterjalid: Töö tegija poolt

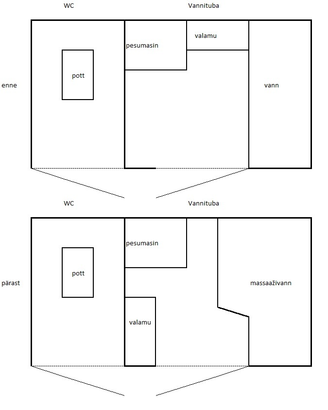
Töö sisu

Vannituba: põrand ca 3,2m2 ja seinad 15,8m2 ning mõõtmetega ca 1,52m x 2,10m x 2,44m
WC: põrand ca 1,2m2 ja seinad 8,9m2 ning mõõtmetega ca 1,59m x 0,72m x 2,49m (p x l x k)
Paneelmaja püstakus on paigaldatud uued veetorud.

* Eemaldada vannitoast vann ja valamu ning WC-st pott ja äravedu.
* Olemasoleva vee- ja kanalisatsioonitorustiku demonteerimine ning uuesti ehitamine.
* Olemasolevate keraamiliste plaatide lammutamine/ demonteerimine ja äravedu.
* Hüdroisolatsiooni tegemine.
* Seinte ja põranda tasandamine (vajadusel).
* Seinte ja põrandate plaatimistööd.
* Ripplae paigaldamine.
* Vannitoas valamu ja käterätisoojendi ümber tõstmine uue massaaživanni (-kabiini?) tõttu.
* Vannitoa ja WC ukse vahetamine.
* WC-sse paigaldada sundventilatsioon (ventilaator).
* WC poti, massaaživanni (-kabiini?), valamu koos kapiga+segisti, peeglikapi, valgustite, pistikupesade – paigaldustööd.

Materjal, mille muretseb hankija ise:
WC pott, seinaplaadid, põrandaplaadid, ripplagi, uksed, valamu+kapp, massaaživann (-kabiin?), peeglikapp, ventilaator sundventilatsiooni jaoks, valgustid, pistikupesad, segistid.



Pildid, video ja failid

Hanke korraldaja: eraisik ID35590

Pakkumised

Pakkumisi kokku: 5

Ettevõte Summa Käibemaks Lisatud Vestlus
Kasutaja ikoon ID1280
Pakkuja profiil Väike nool paremale
2 900€ Ei sisalda Ei sisalda 05.06.2014 Vestlus (0)

Pakkumise kirjeldus:

Tere!


Hinnas kõik vajalikud elektri-, toru-ja ehitustööd ning ehitusjäätmete utiliseerimine, samuti kaetud tööde materjalid loetelus vajalike tööde teostamiseks. Tööde esimene võimalik algus 04.08., tööde kestus kuni 10 tööpäeva.

Kasutaja ikoon ID33436
Pakkuja profiil Väike nool paremale
2 800€ Ei sisalda Ei sisalda 06.06.2014 Vestlus (0)

Pakkumise kirjeldus:

Tere,Hind sisaldab vajalikke materjale ja tööraha.Pakun kvaliteeti ja garantiid.

Kasutaja ikoon ID33828
Pakkuja profiil Väike nool paremale
1 990€ Ei sisalda Ei sisalda 19.06.2014 Vestlus (0)

Pakkumise kirjeldus:

Hinnas on töö ja ehitusmaterjalid. Garantii 24 kuud. Lähiajal tulemas uusi pilte valminud vannitubadest (hetkel 2tk lõpetamisel).
Alustada saaksime 21 juuli ja tööde lõpp 1. august

Kasutaja ikoon ID11067
Pakkuja profiil Väike nool paremale
2 455€ Ei sisalda Ei sisalda 30.06.2014 Vestlus (0)

Pakkumise kirjeldus:

Töö kiire ja korralik,tehtud tööle garantii.

Kasutaja ikoon ID29823
Pakkuja profiil Väike nool paremale
1 960€ Ei sisalda Ei sisalda 03.07.2014 Vestlus (0)

Pakkumise kirjeldus:

Tere, hinnapakkumine on tehtud eelloetletud töödele ja sisaldab materjale (plaadisegu, tasandussegu, vuugisegu, hüdroisolatsioon, kangas nurkadesse, silikoon, sooja- ja külmavee torud, äravoolutorud). Hind sisaldab ehitusprahi utiliseerimist. Klikates meie ID peale on näha ka kahes erinevas stiilis tehtud vannitubasid. Märkused: hinnad sisaldavad paig ... Rohkem

Küsimused hanke korraldajale

Küsimus: private ID35414   04.06.2014 14:31
Millal arvate , et võiks töödega alustada, siis teaks plaane ja pakkumist teha?

Teavita reeglite rikkumisest

Korraldaja vastus: 04.06.2014 23:13

võiks nii 1. juuli 2014 + mõned päevad varem või ka hiljem

Teavita reeglite rikkumisest

Lisa küsimus

Lisa küsimus

Minu pakkumine

Reeglid

Pakkumise kirjelduse väli on mõeldud pakkumise detailsemaks lahti kirjutamiseks. Pikema teksti mugavaks sisestamiseks klikkige kasti paremal ülaservas oleval ikoonil.
Pakkumist tehes on keelatud postitada enda kontaktandmeid (nimi, telefon, aadress jne). Me jälgime ja analüüsime pakkumisi, et vältida pettuseid ja reeglite rikkumisi.
Rikkumise puhul kasutajakonto blokeeritakse.

 

Teisi töid samas valdkonnas

Valdkonnas "Vannitubade remont" on 3 aktiivset tööd

Vannitoa ja Wc kapitaalremont

Asukoht: Harjumaa, Tallinn
Aega jäänud: 1p 10h
Tehtud pakkumisi: 4

Vannitoa ehitamine

Asukoht: Harjumaa, Tallinn
Aega jäänud: 15p 10h
Tehtud pakkumisi: 4

Vanemad teated:

Vaata kõiki

Sellel veebilehel kasutatakse küpsiseid. Kasutamist jätkates nõustute küpsiste kasutamisega.

Sulge
 
Minu pakkumine

Reeglid

Pakkumise kirjelduse väli on mõeldud pakkumise detailsemaks lahti kirjutamiseks. Pikema teksti mugavaks sisestamiseks klikkige kasti paremal ülaservas oleval ikoonil.
Pakkumist tehes on keelatud postitada enda kontaktandmeid (nimi, telefon, aadress jne). Me jälgime ja analüüsime pakkumisi, et vältida pettuseid ja reeglite rikkumisi.
Rikkumise puhul kasutajakonto blokeeritakse.