+ Lisa oma töö      

Otsid ehitajat "Ventilatsioonitööd" valdkonnast?

Parima pakkumise ja teostaja leidmiseks lisa oma töö.

Ventilatsiooni projekteerimine ja väljaehitus

ID 30452

2582 vaatamist

Prindi

  • check Pakkumiste tegemine
    kuni 24.06.2014
  • check Võitja valik kuni
    04.07.2014
  • 3 Töö teostamine
    ja hinnang
Hanke lõpp: T, 24. juuni, 2014
Maakond: Harjumaa
Muu asula: Püünsi
Tööde algus: E, 30. juuni, 2014 (Soovituslik)
Tööde lõpp: E, 07. juuli, 2014 (Soovituslik)
Ehitusmaterjalid: Töö tellija poolt

Töö sisu

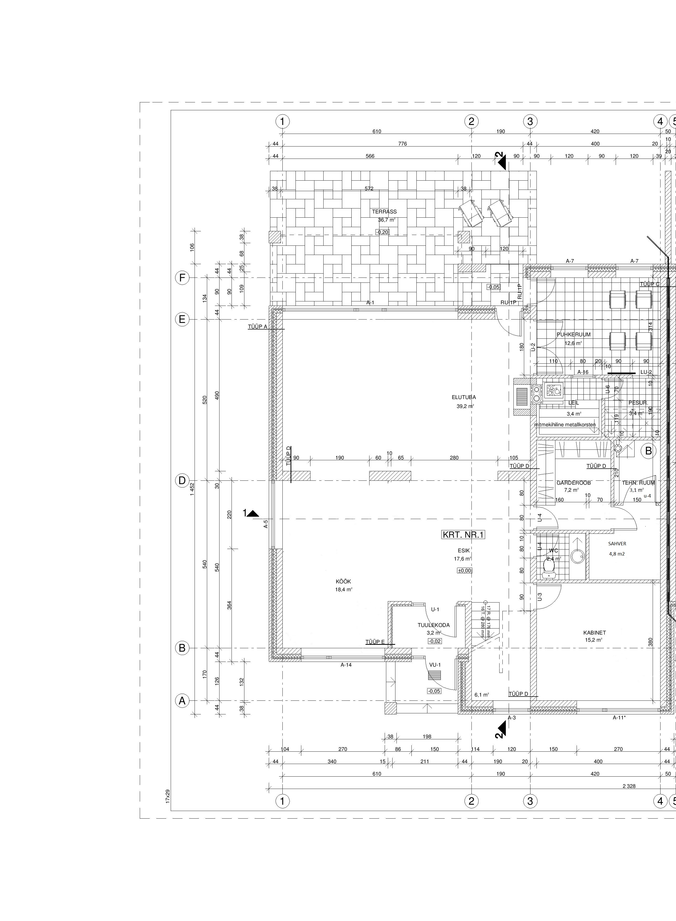
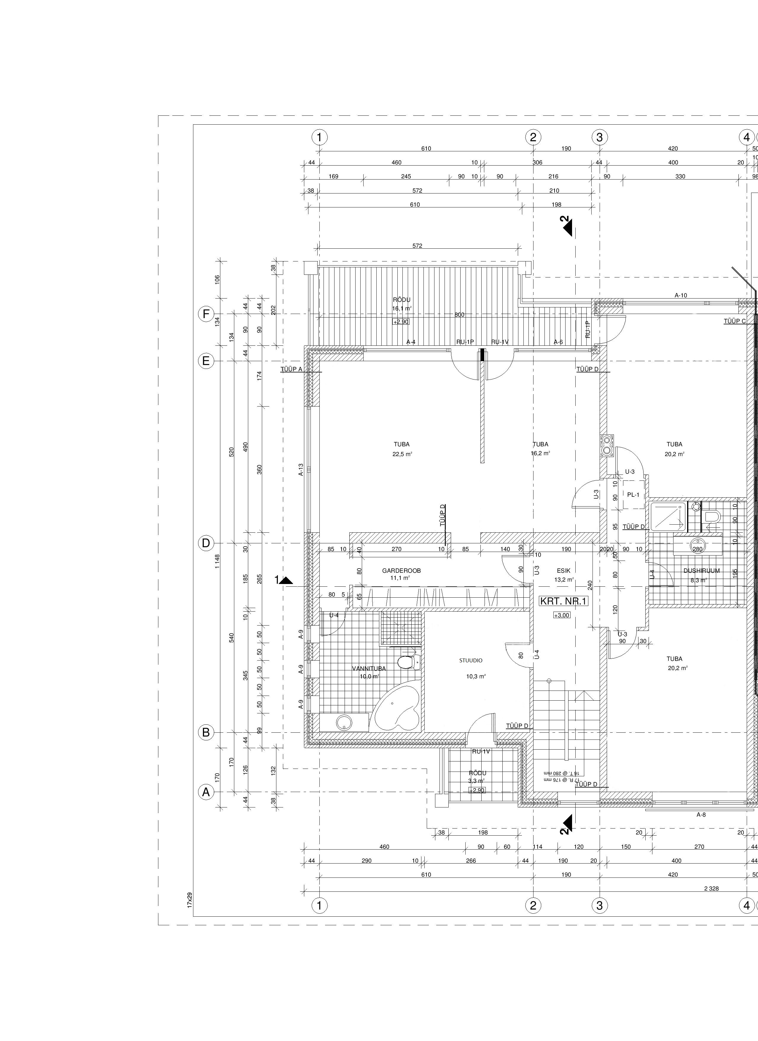
268 m2 majakarbi soojusvahetiga ventilatsiooni projekteerimine ja väljaehitamine Püünsi külas Harjumaal.

Pildid, video ja failid

Hanke korraldaja: eraisik ID35709

Pakkumised

Pakkumisi kokku: 2

Ettevõte Summa Käibemaks Lisatud Vestlus
Kasutaja ikoon ID31923
Pakkuja profiil Väike nool paremale
8 000€ Ei sisalda Ei sisalda 18.06.2014 Vestlus (2)

Pakkumise kirjeldus:

Sisaldab materjale kui ka tööd. Täpsem hind selgub objektiga ja täpsemate soovidega tutvumisel.

Kasutaja ikoon ID34782
Pakkuja profiil Väike nool paremale
9 000€ Sisaldab KM Sisaldab KM 20.06.2014 Vestlus (0)

Küsimused hanke korraldajale

Hanke korraldajale ei ole veel küsimusi esitatud.

Lisa küsimus

Lisa küsimus

Minu pakkumine

Reeglid

Pakkumise kirjelduse väli on mõeldud pakkumise detailsemaks lahti kirjutamiseks. Pikema teksti mugavaks sisestamiseks klikkige kasti paremal ülaservas oleval ikoonil.
Pakkumist tehes on keelatud postitada enda kontaktandmeid (nimi, telefon, aadress jne). Me jälgime ja analüüsime pakkumisi, et vältida pettuseid ja reeglite rikkumisi.
Rikkumise puhul kasutajakonto blokeeritakse.

 

Teisi töid samas valdkonnas

Valdkonnas "Ventilatsioonitööd" on 3 aktiivset tööd

Eramaja ventilatsioonitööd

Asukoht: Tartumaa, Soinaste
Aega jäänud: 6p 1h
Tehtud pakkumisi: 1

no-img Pilt puudub

Ventilatsiooni paigaldamine

Asukoht: Tartumaa, Tartu
Aega jäänud: 3p 1h
Tehtud pakkumisi: 0

Vanemad teated:

Vaata kõiki

Sellel veebilehel kasutatakse küpsiseid. Kasutamist jätkates nõustute küpsiste kasutamisega.

Sulge
 
Minu pakkumine

Reeglid

Pakkumise kirjelduse väli on mõeldud pakkumise detailsemaks lahti kirjutamiseks. Pikema teksti mugavaks sisestamiseks klikkige kasti paremal ülaservas oleval ikoonil.
Pakkumist tehes on keelatud postitada enda kontaktandmeid (nimi, telefon, aadress jne). Me jälgime ja analüüsime pakkumisi, et vältida pettuseid ja reeglite rikkumisi.
Rikkumise puhul kasutajakonto blokeeritakse.