+ Lisa oma töö      

Otsid ehitajat "Põrandaküte, paigaldus" valdkonnast?

Parima pakkumise ja teostaja leidmiseks lisa oma töö.

Vesipõrandakütte projekteerimine ja paigaldus

ID 30453

4542 vaatamist

Prindi

  • check Pakkumiste tegemine
    kuni 01.07.2014
  • check Võitja valik kuni
    08.07.2014
  • 3 Töö teostamine
    ja hinnang
Hanke lõpp: T, 1. juuli, 2014
Maakond: Harjumaa
Muu asula: Püünsi küla
Tööde algus: E, 14. juuli, 2014 (Soovituslik)
Tööde lõpp: E, 21. juuli, 2014 (Soovituslik)
Ehitusmaterjalid: Töö tegija poolt

Töö sisu

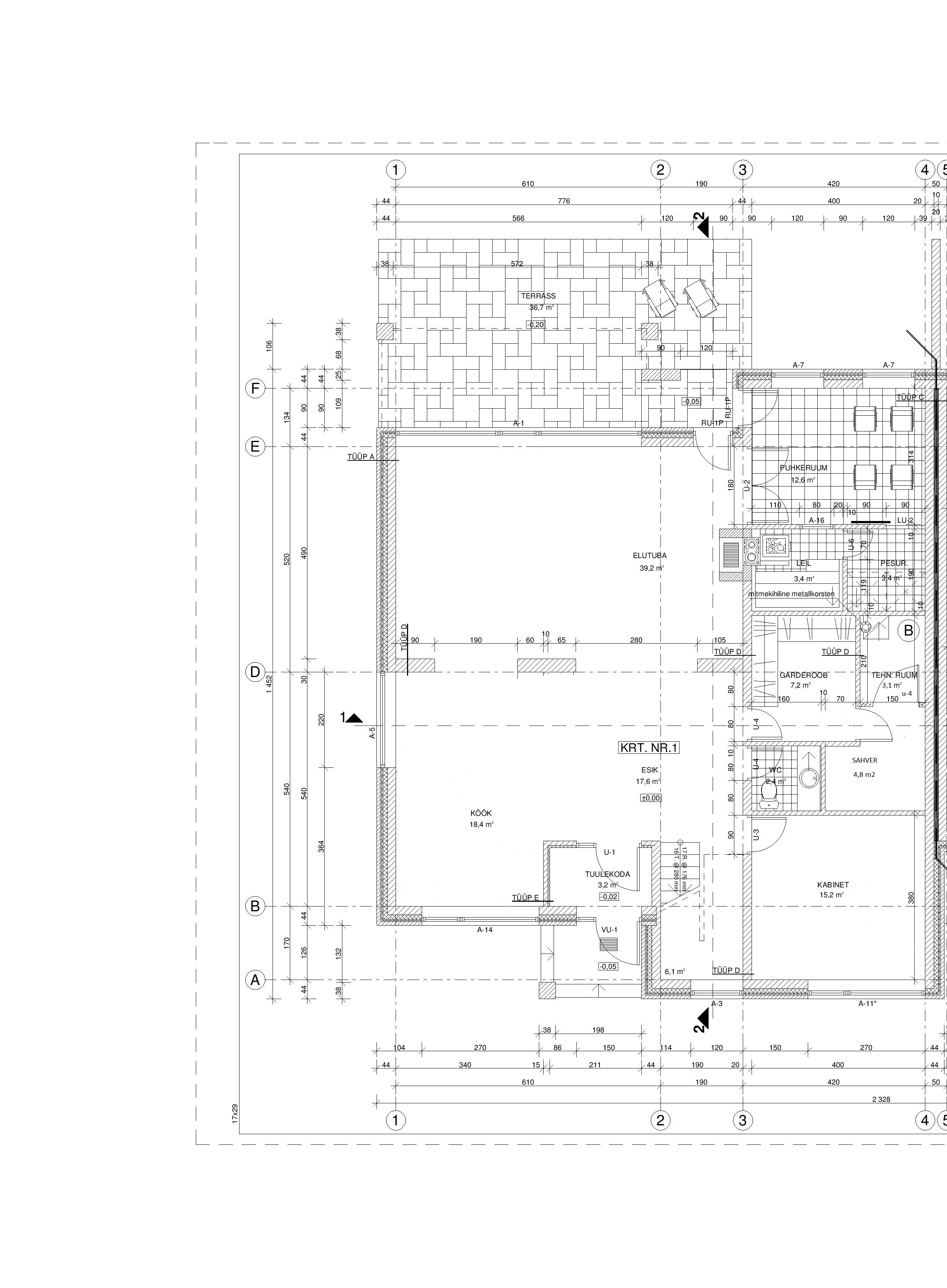
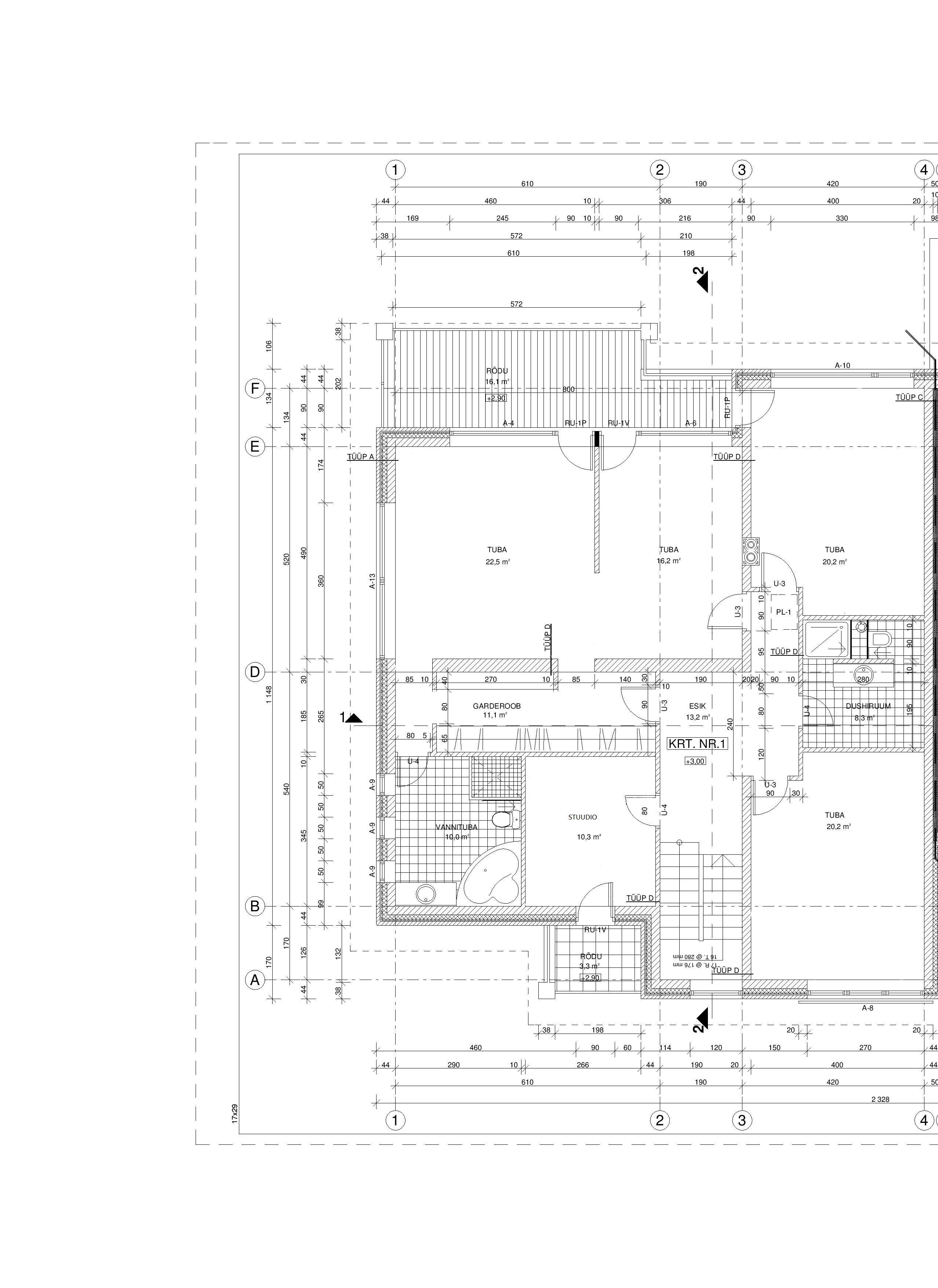
Vesipõrandakütte projekteerimine kahele korrusele.
Paigaldus
Vajaminevad materjalid ostab hanke võitja.

Majja tuleb õhk-vesisoojuspump - muretseb tellija

Pildid, video ja failid

Hanke korraldaja: eraisik ID35709

Pakkumised

Pakkumisi kokku: 4

Ettevõte Summa Käibemaks Lisatud Vestlus
Kasutaja ikoon ID34782
Pakkuja profiil Väike nool paremale
6 200€ Sisaldab KM Sisaldab KM 20.06.2014 Vestlus (0)
Kasutaja ikoon ID32602
Pakkuja profiil Väike nool paremale
5 890€ Sisaldab KM Sisaldab KM 01.07.2014 Vestlus (0)

Pakkumise kirjeldus:

Hinnapakkumine sisaldab projekteerimist kasutades olmasolevat maja joonist . Tööde teostust koos materjaliga ning survestusakte. Garantii 24 kuud . Lp Ranner

Kasutaja ikoon ID34721
Pakkuja profiil Väike nool paremale
5 000€ Sisaldab KM Sisaldab KM 01.07.2014 Vestlus (0)
Kasutaja ikoon ID1572
Pakkuja profiil Väike nool paremale
4 985€ Ei sisalda Ei sisalda 01.07.2014 Vestlus (0)

Pakkumise kirjeldus:

Torustik , kollektorid , survestamine , ruumi andurid 220v , ajamid . Ei sisalda kaabeldust. Garantii vastavalt seadusele.

Küsimused hanke korraldajale

Küsimus: private ID1572   21.06.2014 16:02
Tere! tahaks teada mis seisus põrandad on/materjal),1 ja 2 korruse omad.Kas soovite ruumitermostaate tubadesse.Pumba muretsete ise aga paigaldus ja ühendamine kelle poolt.Terv.

Teavita reeglite rikkumisest

Korraldaja vastus: 29.06.2014 22:14

Paigaldan ise peno, armatuuri , pumba ühendab pumba müüa , soovin hankes torustike paigaldust, kollektoreid, ruumitermostaate ning ka survestamist betooni tööde tegija on olemas

Teavita reeglite rikkumisest

Küsimus: private ID6686   01.07.2014 13:33
Tere.Mitu ruutu on põrandapind kuhu läheb põrandaküte? pildilt ei loe välja.

Teavita reeglite rikkumisest

Korraldaja vastus: 01.07.2014 14:52

260 m2

Teavita reeglite rikkumisest

Lisa küsimus

Lisa küsimus

Minu pakkumine

Reeglid

Pakkumise kirjelduse väli on mõeldud pakkumise detailsemaks lahti kirjutamiseks. Pikema teksti mugavaks sisestamiseks klikkige kasti paremal ülaservas oleval ikoonil.
Pakkumist tehes on keelatud postitada enda kontaktandmeid (nimi, telefon, aadress jne). Me jälgime ja analüüsime pakkumisi, et vältida pettuseid ja reeglite rikkumisi.
Rikkumise puhul kasutajakonto blokeeritakse.

 

Vanemad teated:

Vaata kõiki

Sellel veebilehel kasutatakse küpsiseid. Kasutamist jätkates nõustute küpsiste kasutamisega.

Sulge
 
Minu pakkumine

Reeglid

Pakkumise kirjelduse väli on mõeldud pakkumise detailsemaks lahti kirjutamiseks. Pikema teksti mugavaks sisestamiseks klikkige kasti paremal ülaservas oleval ikoonil.
Pakkumist tehes on keelatud postitada enda kontaktandmeid (nimi, telefon, aadress jne). Me jälgime ja analüüsime pakkumisi, et vältida pettuseid ja reeglite rikkumisi.
Rikkumise puhul kasutajakonto blokeeritakse.