+ Lisa oma töö      

Otsid ehitajat "Vundamenditööd" valdkonnast?

Parima pakkumise ja teostaja leidmiseks lisa oma töö.

Plaatvundamendi ehitus

ID 30475

15415 vaatamist

Prindi

  • check Pakkumiste tegemine
    kuni 26.06.2014
  • check Võitja valik kuni
    10.07.2014
  • 3 Töö teostamine
    ja hinnang
Hanke lõpp: N, 26. juuni, 2014
Maakond: Harjumaa
Muu asula: Kuusalu vald, Sõitme küla.
Tööde algus: N, 10. juuli, 2014 (Soovituslik)
Tööde lõpp: N, 24. juuli, 2014
Ehitusmaterjalid: Töö tegija poolt

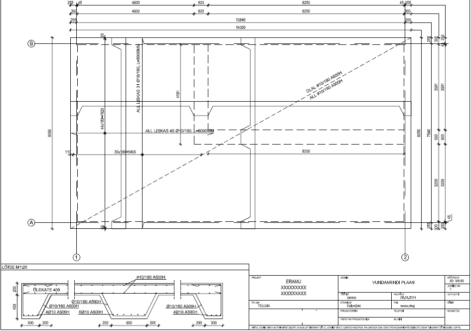
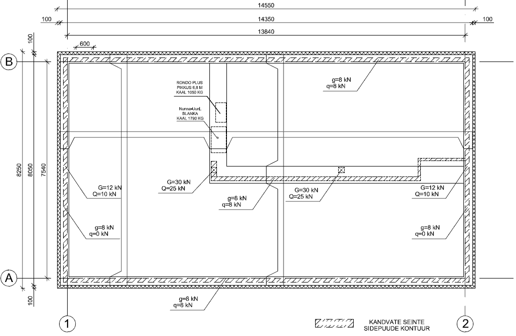
Töö sisu

Ootan pakkumist plaatvundamendi alusplaadile, mille pealispind on tasandatud puitkarkasshoone aluspuude paigalduseks.

Lisas on vundamendi projekt, koormusskeem, mahutabel, esimese korruse plaan koos segistite ja muu tarviliku infoga. Vundamendi ehituse mahtu peavad jääma kõik kommunikatsioonid/kõrid nende sisestuseks alates nende asukohast hoone sees kuni 1,5m kaugusele hoonest ning ümber hoone vundamendi asuv drenaaz, mis tuleb siduda krundil asuva drenaaziga. Vee, kanali, elektri ja maakütte kontuuride kaevamine krundil kuni liitumispunktini ei ole vundamendiprojekti mahus.

Kõik torud ja kõrid tuleb paigaldada vundamendiplaadi alla, minimaalselt looduslikku pinnast kahjustades.


Vundamendi ehitusel võib kasutada L-mooduleid (soklimooduleid) ning kiudbetooni C 25/30 (paekivikillustik, vajum S3 (10-15 sm) max tera suurus 16 mm + teraskiud BT-HE 75/50 – minimaalselt 40 kg/ m3. Vähema koguse kiuga rikastatud betooni kasutamine antud projekti raames ei ole lubatud.

Palun jälgige projektis toodud mahte. Pinnas krundil on äärmiselt kehva ning projekt on koostatud täpselt vastavalt pinnase kandevõimele arvestades ehitatavat hoonet! Juhul kui näete ohtu, et projektijärgsed mahud täitepinnasele ei ole piisavad, palun seda koheselt teatada (koos prognoositavate tegelike mahtudega).

Geoloogiline uurimus ja uuendatud topoloogia on olemas.

Pildid, video ja failid

  • XLS   Vundamendi mahud 08.04.2014.xls Vundamendi mahud, mis sisaldavad ka ülemist põrandaplaati. Pakkumise tegemisel palun arvestada mahtudega, mis kuluvad alumise plaadi tegemiseks, sest sisepõranda plaadi valu ei kuulu antud hanke koosseisu (eeldab eelnevat aluspuude paigaldust alusplaadile).
Hanke korraldaja: eraisik ID35734

Pakkumised

Pakkumisi kokku: 3

Ettevõte Summa Käibemaks Lisatud Vestlus
Kasutaja ikoon ID33675
Pakkuja profiil Väike nool paremale
14 817,3€ Ei sisalda Ei sisalda 24.06.2014 Vestlus (0)

Pakkumise kirjeldus:

Tere! Hinnapakkumine on koostatud vastavalt lisatud mahutabelile. Pakkumine sisaldab – vundamendi geodeetilist mahamärkimist, pinnase koorimist, aluse tihendamist killuga 16/32 20cm (34m3/50t) ja ehitusliivaga, L-plokist perimeetri ja EPS 120 100 / 50 mm soojustuse paigaldamist, ehituskile alusplaadile enne armeeringut, alusplaadi armeerimist armatuurraua ... Rohkem

Kasutaja ikoon ID33915
Pakkuja profiil Väike nool paremale
14 562€ Ei sisalda Ei sisalda 24.06.2014 Vestlus (0)

Pakkumise kirjeldus:

Me ehitame kire ja kvalitetne/

Kasutaja ikoon ID33845
Pakkuja profiil Väike nool paremale
17 800€ Ei sisalda Ei sisalda 25.06.2014 Vestlus (0)

Küsimused hanke korraldajale

Hanke korraldajale ei ole veel küsimusi esitatud.

Lisa küsimus

Lisa küsimus

Minu pakkumine

Reeglid

Pakkumise kirjelduse väli on mõeldud pakkumise detailsemaks lahti kirjutamiseks. Pikema teksti mugavaks sisestamiseks klikkige kasti paremal ülaservas oleval ikoonil.
Pakkumist tehes on keelatud postitada enda kontaktandmeid (nimi, telefon, aadress jne). Me jälgime ja analüüsime pakkumisi, et vältida pettuseid ja reeglite rikkumisi.
Rikkumise puhul kasutajakonto blokeeritakse.

 

Vanemad teated:

Vaata kõiki

Sellel veebilehel kasutatakse küpsiseid. Kasutamist jätkates nõustute küpsiste kasutamisega.

Sulge
 
Minu pakkumine

Reeglid

Pakkumise kirjelduse väli on mõeldud pakkumise detailsemaks lahti kirjutamiseks. Pikema teksti mugavaks sisestamiseks klikkige kasti paremal ülaservas oleval ikoonil.
Pakkumist tehes on keelatud postitada enda kontaktandmeid (nimi, telefon, aadress jne). Me jälgime ja analüüsime pakkumisi, et vältida pettuseid ja reeglite rikkumisi.
Rikkumise puhul kasutajakonto blokeeritakse.