+ Lisa oma töö      

Otsid ehitajat "Elektritööd" valdkonnast?

Parima pakkumise ja teostaja leidmiseks lisa oma töö.

Hange on lõppenud!

Võitjaks osutus kasutaja ID 19392

Elektri Juhtmestiku väljavahetamine kogu korteris

ID 30750

3648 vaatamist

Prindi

  • check Pakkumiste tegemine
    kuni 25.07.2014
  • check Võitja valik kuni
    01.08.2014
  • 3 Töö teostamine
    ja hinnang
Hanke lõpp: R, 25. juuli, 2014
Maakond: Harjumaa
Muu asula: Kristiine
Tööde algus: E, 21. juuli, 2014 (Soovituslik)
Tööde lõpp: P, 03. august, 2014 (Soovituslik)
Ehitusmaterjalid: Töö tegija poolt

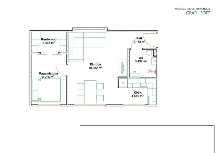
Töö sisu

39 m2 kahetoaline korter kristiines (Tallinn). Kapitaalremondi käigus soovin väljavahetada kogu juhtmestiku ja jaotuskilpi koos kaitsmeteg, samuti lülitid ja pistikupesad.

Otsin pakkumise koos materjaalidega (v.a. lülitid ja pistikupesad) ja frseerimisega. Tööga tuleks alustada lähinädalate jooksul (30-31 nädal).

Olukord on umbes järgmine:

Jaotuskilp on esikus. Kilp on seina sees.

Üks laevalgusti esikus, kaks elutoas, kaks magamistoas (1 - toas, 1 - garderoobis), üks köögis, üks vannitoas.

Kuni 4 seinavalgustit elutoas, kaks magamistoas, 1-2 vannitoas.

Pistiku pesade täpsemad asukohad selguvad hiljem, aga umbkaudsel saab arestada, et igale seinale läheb üks x4 pistikupesade plaat, vannituppa 2 vee- ja niiskuskindlaid pistikupesasid (1 peegli juures ja üks pesumasina jaoks). Köögi siis mingi paksem kaabel ja suurem pistiku pesa ahi jaoks, ühendus külmiku, ventilatsiooni jne. jaoks.

Samuti tahaks uuendada tv kaabli (tv asukoht on plaanil märgitud) ja telefoni kaabelduse 1-2 pistikupesa (1 elutoas, 1 magamistoas)

Pildid, video ja failid

Hanke korraldaja: eraisik ID35993

Pakkumised

Pakkumisi kokku: 5

Ettevõte Summa Käibemaks Lisatud Vestlus
Kasutaja ikoon ID33667
Pakkuja profiil Väike nool paremale
1 260€ Ikoon kell Ei sisalda Ei sisalda 21.07.2014 Vestlus (6)

Pakkumise kirjeldus:

Tere,
Postitage palun mulle sõnum vestluse alla, siis saan pikemalt tööde ja materjalide loetelu lahti kirjutada.
Parimatega, Rain

Kasutaja ikoon ID32544
Pakkuja profiil Väike nool paremale
950€ Sisaldab KM Sisaldab KM 21.07.2014 Vestlus (4)
Kasutaja ikoon ID33421
Pakkuja profiil Väike nool paremale
850€ Ei sisalda Ei sisalda 23.07.2014 Vestlus (2)

Pakkumise kirjeldus:

Tere.Hinnas teie poolt soovitud töö-materjalidega.Töö teostamise aeg 31 nädal esimene pool.Edu korraldamises

Kasutaja ikoon ID19392
Pakkuja profiil Väike nool paremale
1 000€ Ei sisalda Ei sisalda 24.07.2014 Vestlus (12)

Pakkumise kirjeldus:

Kõik nimetatud tööd. Ei sisalda pist.pesade/lülitite/valgustite hinda.

Kasutaja ikoon ID34836
Pakkuja profiil Väike nool paremale
900€ Ei sisalda Ei sisalda 24.07.2014 Vestlus (6)

Pakkumise kirjeldus:

Tere.

Pakkumine siis hankes nimetatud töödele ja materjalidele. Töö kiire ja kvaliteetne, firmal olemas MTRi elektritööde registreering. Töödele garantii 2 aastat. Kõike paremat soovides Toomas.

Küsimused hanke korraldajale

Hanke korraldajale ei ole veel küsimusi esitatud.

Lisa küsimus

Lisa küsimus

Minu pakkumine

Reeglid

Pakkumise kirjelduse väli on mõeldud pakkumise detailsemaks lahti kirjutamiseks. Pikema teksti mugavaks sisestamiseks klikkige kasti paremal ülaservas oleval ikoonil.
Pakkumist tehes on keelatud postitada enda kontaktandmeid (nimi, telefon, aadress jne). Me jälgime ja analüüsime pakkumisi, et vältida pettuseid ja reeglite rikkumisi.
Rikkumise puhul kasutajakonto blokeeritakse.

 

Teisi töid samas valdkonnas

Valdkonnas "Elektritööd" on 5 aktiivset tööd

Vana talu elektrisüsteemi uuendamine (kilp, pistikud, välivalgustus, EV valmidus)

Asukoht: Raplamaa, Suurekivi
Aega jäänud: 1p 11h
Tehtud pakkumisi: 5

Kaablite vahetus paneelmaja korteris ja siseviimistlus

Asukoht: Harjumaa, Tallinn
Aega jäänud: 6p 11h
Tehtud pakkumisi: 3

Vanemad teated:

Vaata kõiki

Sellel veebilehel kasutatakse küpsiseid. Kasutamist jätkates nõustute küpsiste kasutamisega.

Sulge
 
Minu pakkumine

Reeglid

Pakkumise kirjelduse väli on mõeldud pakkumise detailsemaks lahti kirjutamiseks. Pikema teksti mugavaks sisestamiseks klikkige kasti paremal ülaservas oleval ikoonil.
Pakkumist tehes on keelatud postitada enda kontaktandmeid (nimi, telefon, aadress jne). Me jälgime ja analüüsime pakkumisi, et vältida pettuseid ja reeglite rikkumisi.
Rikkumise puhul kasutajakonto blokeeritakse.