+ Lisa oma töö      

Otsid ehitajat "Viimistlustööd" valdkonnast?

Parima pakkumise ja teostaja leidmiseks lisa oma töö.

Hange on lõppenud!

Võitjaks osutus kasutaja ID 6742

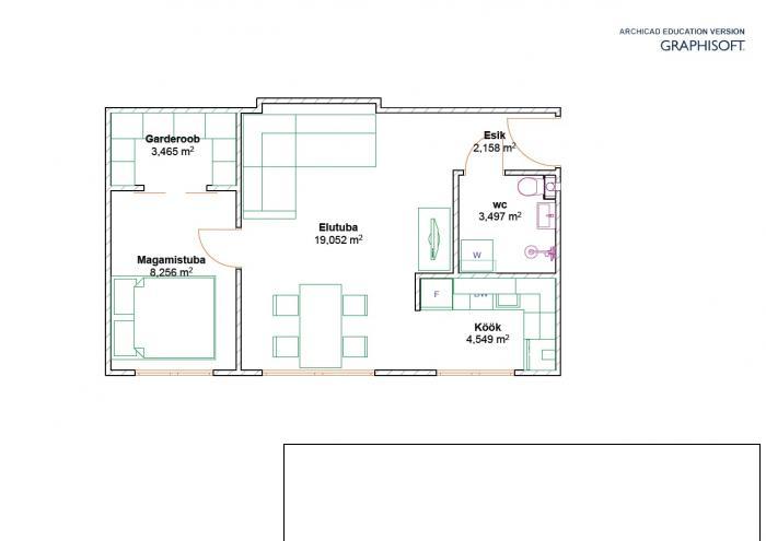
39 m2 kahetoalise korteri siseviimistlus kapitaalremondi käigus

ID 30751

3710 vaatamist

Prindi

  • check Pakkumiste tegemine
    kuni 01.08.2014
  • check Võitja valik kuni
    08.08.2014
  • 3 Töö teostamine
    ja hinnang
Hanke lõpp: R, 1. august, 2014
Maakond: Harjumaa
Muu asula: Kristiine
Tööde algus: E, 28. juuli, 2014 (Soovituslik)
Tööde lõpp: P, 10. august, 2014 (Soovituslik)
Ehitusmaterjalid: Töö tegija poolt

Töö sisu

Laede puhatsamine, pahteldamine ja värvimine.

Seinade krohvimine, pahteldamine ja värvimine.

Põrandatelt vana soome papka eemaldamine ja laminati paigaldamine.

Põrandaliistude paigaldamine.

Aknapalede viimistlus.

Võib olla elutoas ja köögis vana krohvi ja tapeetide eemaldamine enne tööde algust. Magamistoas on seinad juba puhtad, aga elutoas, võib olla, ei saa ise hakkama.

Pildid, video ja failid

Hanke korraldaja: eraisik ID35993

Pakkumised

Pakkumisi kokku: 6

Ettevõte Summa Käibemaks Lisatud Vestlus
Kasutaja ikoon ID1280
Pakkuja profiil Väike nool paremale
5 800€ Ei sisalda Ei sisalda 18.07.2014 Vestlus (0)

Pakkumise kirjeldus:

Tere ja aitäh kutsumast hankel osalema!

Hinnas töö loetletud mahus ja kaetud tööde materjalid (segud, pahtlid, laevärv, väikevahendid), tellija poolt seinavärv, tapeet, laminaat ja liistud. Hind ei sisalda elektritöid! Esimene võimalik tööde algus - septembri esimene dekaad.

Kasutaja ikoon ID35309
Pakkuja profiil Väike nool paremale
5 700€ Ei sisalda Ei sisalda 21.07.2014 Vestlus (0)
Kasutaja ikoon ID34071
Pakkuja profiil Väike nool paremale
5 265€ Sisaldab KM Sisaldab KM 22.07.2014 Vestlus (0)
Kasutaja ikoon ID35863
Pakkuja profiil Väike nool paremale
5 000€ Ei sisalda Ei sisalda 26.07.2014 Vestlus (0)
Kasutaja ikoon ID30127
Pakkuja profiil Väike nool paremale
5 000€ Sisaldab KM Sisaldab KM 29.07.2014 Vestlus (0)

Pakkumise kirjeldus:

Pakkumine vastavalt teie kirjeldusele

Kasutaja ikoon ID6742
Pakkuja profiil Väike nool paremale
3 600€ Ei sisalda Ei sisalda 31.07.2014 Vestlus (0)

Pakkumise kirjeldus:

Hind sisaldab siseviimistlusmaterjale (v.a. Põrandakattematerjalid, liistud), tekitatud prügi utiliseerimist, hankes kirjeldatud tööde tasu. Töid teostan peaasjalikult üksi. Km ei lisandu. Tasustamine vastavalt etappide valmimisele.

Küsimused hanke korraldajale

Küsimus: private ID30127   21.07.2014 11:04
Kas seinad on vaja loodi krohvida ja wc-vannituba kuulub ka hanke sisse.Aitäh

Teavita reeglite rikkumisest

Korraldaja vastus: 21.07.2014 11:22

WC ja esik ei kuulu hankesse, ainult magamistuba ja elutuba. Enamus seinadest on krohv maha võetud plokkideni, nii, et tuleb kõige pealt krohvida loodi, seejärel pahteldada ning värvida. Võib teha pakkumise osa tööde kaupa )näitek krohvimine eraldi, maalri töö eraldi). Õhtu poole võin lisada ka korteri pildid.

Teavita reeglite rikkumisest

Küsimus: private ID34071   21.07.2014 11:15
Tere.<br />
Kas põrand on soomepapi all nii korralik et saab kohe laminaadi maha panna,või on vaja enne tasandada?

Teavita reeglite rikkumisest

Korraldaja vastus: 21.07.2014 11:20

Loodan, et saab ilma tasandamata paigaldada. Puupõrand tundub olla sirge, aga pika loodiga ma seda kontrollinud ei ole.

Teavita reeglite rikkumisest

Lisa küsimus

Lisa küsimus

Minu pakkumine

Reeglid

Pakkumise kirjelduse väli on mõeldud pakkumise detailsemaks lahti kirjutamiseks. Pikema teksti mugavaks sisestamiseks klikkige kasti paremal ülaservas oleval ikoonil.
Pakkumist tehes on keelatud postitada enda kontaktandmeid (nimi, telefon, aadress jne). Me jälgime ja analüüsime pakkumisi, et vältida pettuseid ja reeglite rikkumisi.
Rikkumise puhul kasutajakonto blokeeritakse.

 

Vanemad teated:

Vaata kõiki

Sellel veebilehel kasutatakse küpsiseid. Kasutamist jätkates nõustute küpsiste kasutamisega.

Sulge
 
Minu pakkumine

Reeglid

Pakkumise kirjelduse väli on mõeldud pakkumise detailsemaks lahti kirjutamiseks. Pikema teksti mugavaks sisestamiseks klikkige kasti paremal ülaservas oleval ikoonil.
Pakkumist tehes on keelatud postitada enda kontaktandmeid (nimi, telefon, aadress jne). Me jälgime ja analüüsime pakkumisi, et vältida pettuseid ja reeglite rikkumisi.
Rikkumise puhul kasutajakonto blokeeritakse.