+ Lisa oma töö      

Otsid ehitajat "Vundamenditööd" valdkonnast?

Parima pakkumise ja teostaja leidmiseks lisa oma töö.

Plaatvundament

ID 3078

5022 vaatamist

Prindi

  • check Pakkumiste tegemine
    kuni 19.01.2007
  • check Võitja valik kuni
    26.01.2007
  • 3 Töö teostamine
    ja hinnang
Hanke lõpp: R, 19. jaanuar, 2007
Maakond: Harjumaa
Linn: Tallinn
Tööde algus: N, 15. veebruar, 2007 (Soovituslik)
Tööde lõpp: P, 10. mai, 2026 (Soovituslik)
Ehitusmaterjalid: Töö tegija poolt

Töö sisu

Maja asub Vääna Vitis.Pinnas on paene.Maja tuleb ühekordne ja termoprofiilkarkassil,Projekti momendil arvutis ei ole aga saadan maja kuju ja mõõtmed ehk sellest on abi.Projekti järgi on taldmiku laius 400 ja kõrgus 100mm ja selle peal 4 kihti fibo 5 blokki. Vundamendi pinda 140 ruutu.Paigaldada ka torustik ( vesipõrandakütte+kanal+vesi)

Pildid, video ja failid

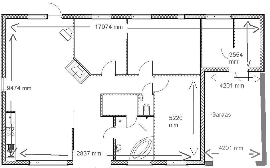
  • JPG   Vundamendi plaan.jpg Maja tuleks siis plaatvundamendiga aga garaasi kaks külge ( kummagile poolt ust tuleb 50 cm ) siis tavaline fibo lint (garaasi põrandaküttet ei tule).Küttekolle tuleb abiruumi.Ehk on sellest abi.Kui küsimusi on vastan meelsasti
Hanke korraldaja: eraisik ID4482

Pakkumised

Pakkumisi kokku: 9

Ettevõte Summa Käibemaks Lisatud Vestlus
Kasutaja ikoon ID3765
Pakkuja profiil Väike nool paremale
12 143,2€ Ei sisalda Ei sisalda 16.01.2007 Vestlus (0)
Kasutaja ikoon ID3448
Pakkuja profiil Väike nool paremale
13 868,8€ Ei sisalda Ei sisalda 16.01.2007 Vestlus (0)

Pakkumise kirjeldus:

Hind selline, et sest kraavi lõhkumine piasesse läheb palju maksma ja sellejaoks on vaja sinna tellida Roxon lõhkuja. oleme sellise pinnasega sealkandis juba tutvust teinud.

Kasutaja ikoon ID1796
Pakkuja profiil Väike nool paremale
17 895,3€ Sisaldab KM Sisaldab KM 17.01.2007 Vestlus (0)
Kasutaja ikoon ID3259
Pakkuja profiil Väike nool paremale
11 504,1€ Ei sisalda Ei sisalda 17.01.2007 Vestlus (0)
Kasutaja ikoon ID3997
Pakkuja profiil Väike nool paremale
13 741€ Ei sisalda Ei sisalda 17.01.2007 Vestlus (0)

Pakkumise kirjeldus:

Olen ka tuttav selle kandiga, teisipäeval lõpetan Otsa 22 vundamendi ja siis võiks alustada.

Kasutaja ikoon ID3677
Pakkuja profiil Väike nool paremale
12 398,9€ Ei sisalda Ei sisalda 18.01.2007 Vestlus (0)
Kasutaja ikoon ID923
Pakkuja profiil Väike nool paremale
12 782,3€ Ei sisalda Ei sisalda 19.01.2007 Vestlus (0)

Pakkumise kirjeldus:

töö kiire ja kvaliteetne

Kasutaja ikoon ID3342
Pakkuja profiil Väike nool paremale
19 173,5€ Ei sisalda Ei sisalda 19.01.2007 Vestlus (0)
Kasutaja ikoon ID1266
Pakkuja profiil Väike nool paremale
12 782,3€ Sisaldab KM Sisaldab KM 19.01.2007 Vestlus (0)

Küsimused hanke korraldajale

Küsimus: private ID3448   16.01.2007 23:38
Kuna pinnas on paene, siis tuleb järelikult ka kraav sisse lõhkuda paesse. selles piirkonnas on sinine paas ja see on väga kõva. See info teadmiseks kliendile ja samuti ehitajatale. Arvestage see oma hinna sisse sest selle kraavi lõhkumine on kopsakas summa.

Teavita reeglite rikkumisest

Korraldaja vastus: 10.05.2026 16:59

niipalju kui seal ühistus vundamente tehtud ei ole keegi midagi lõhkunud.Ühel on isegi 2 kordne fibost maja peal.

Teavita reeglite rikkumisest

Küsimus: private ID3949   17.01.2007 11:20
tegemist ei ole ju plaatvundamendiga ????

Teavita reeglite rikkumisest

Korraldaja vastus: 10.05.2026 16:59

Jutt saanud jah veidi segane.Tegu siiski plaatvundmendiga .Panen plaani ka üles siis ehk asi selgem

Teavita reeglite rikkumisest

Küsimus: private ID1266   17.01.2007 19:58
Ega sul geoloogilist puurimist tehtud pole, pane siis kuju ja mõõtmed ka üles.

Teavita reeglite rikkumisest

Korraldaja vastus: 10.05.2026 16:59

geoloogilist puurimist ei ole tehtud

Teavita reeglite rikkumisest

Küsimus: private ID3997   17.01.2007 20:27
Tere, kas tegemist on kohaga, kus puudub vesi ja elekter? Küsin sellepärast et lõpetan seal kandis just ühte vundamenti. Parimatega

Teavita reeglite rikkumisest

Korraldaja vastus: 10.05.2026 16:59

Ehituseks vajalik elekter on olemas vesi veetakse lähiajal 30 m kaugusel olevast kaevust

Teavita reeglite rikkumisest

Lisa küsimus

Lisa küsimus

Minu pakkumine

Reeglid

Pakkumise kirjelduse väli on mõeldud pakkumise detailsemaks lahti kirjutamiseks. Pikema teksti mugavaks sisestamiseks klikkige kasti paremal ülaservas oleval ikoonil.
Pakkumist tehes on keelatud postitada enda kontaktandmeid (nimi, telefon, aadress jne). Me jälgime ja analüüsime pakkumisi, et vältida pettuseid ja reeglite rikkumisi.
Rikkumise puhul kasutajakonto blokeeritakse.

 

Vanemad teated:

Vaata kõiki

Sellel veebilehel kasutatakse küpsiseid. Kasutamist jätkates nõustute küpsiste kasutamisega.

Sulge
 
Minu pakkumine

Reeglid

Pakkumise kirjelduse väli on mõeldud pakkumise detailsemaks lahti kirjutamiseks. Pikema teksti mugavaks sisestamiseks klikkige kasti paremal ülaservas oleval ikoonil.
Pakkumist tehes on keelatud postitada enda kontaktandmeid (nimi, telefon, aadress jne). Me jälgime ja analüüsime pakkumisi, et vältida pettuseid ja reeglite rikkumisi.
Rikkumise puhul kasutajakonto blokeeritakse.