+ Lisa oma töö      

Otsid ehitajat "Siseviimistlustööd" valdkonnast?

Parima pakkumise ja teostaja leidmiseks lisa oma töö.

Hange on lõppenud!

Võitjaks osutus kasutaja ID 28645

Põrandate tasandamine keramsiitiga ja põrandaplaadiga

ID 30928

2333 vaatamist

Prindi

  • check Pakkumiste tegemine
    kuni 12.08.2014
  • check Võitja valik kuni
    19.08.2014
  • 3 Töö teostamine
    ja hinnang
Hanke lõpp: T, 12. august, 2014
Maakond: Harjumaa
Muu asula: Kristiine
Tööde algus: T, 12. august, 2014 (Soovituslik)
Tööde lõpp: N, 14. august, 2014 (Soovituslik)
Ehitusmaterjalid: Töö tegija poolt

Töö sisu

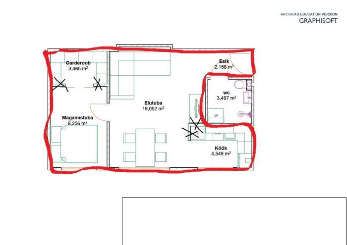
Umbes 35m2 vanade puupõrandate demonteerimine ja äravedu, seejärel täitmine ja tasandamine keramsiitiga (5-7 cm) ning katmine põrandaplaadiga (2 kihti).

Põrandad tuleb tasandada loodi, et oleks võimalik selle peale kohe paigaldada laminaati.

Plaanil ristiga märgitud seinad ei eksisteeri. Korter on absoluutselt tühi - käimas on kapitaal remont.

Vannituba ei kuulu hankesse.

Pildid, video ja failid

Hanke korraldaja: eraisik ID35993

Pakkumised

Pakkumisi kokku: 2

Ettevõte Summa Käibemaks Lisatud Vestlus
Kasutaja ikoon ID28645
Pakkuja profiil Väike nool paremale
1 950€ Ei sisalda Ei sisalda 07.08.2014 Vestlus (8)

Pakkumise kirjeldus:

Materjal ja töö raha. Hind ei sisalda laminati ostu ja paigaldust

Kasutaja ikoon ID18332
Pakkuja profiil Väike nool paremale
3 500€ Ei sisalda Ei sisalda 12.08.2014 Vestlus (0)

Pakkumise kirjeldus:

Tere!
Pakkumine sisaldab kogu korteripõranda eemaldust, äravedu, täitmist keramsiitiga ning katmist põrandaplaadiga, kiireid, osavaid töömehi, tööriistu, transporti. Tööle garantii. Meeldivat koostööd soovides, Töötegija!

Küsimused hanke korraldajale

Küsimus: private ID28645   07.08.2014 13:02
Tere. Mis korrusel asub korter? Kui vana ise maja on?

Teavita reeglite rikkumisest

Korraldaja vastus: 07.08.2014 13:36

Teine korrus, maja on mingi 30 aastat vana äkki.

Teavita reeglite rikkumisest

Lisa küsimus

Lisa küsimus

Minu pakkumine

Reeglid

Pakkumise kirjelduse väli on mõeldud pakkumise detailsemaks lahti kirjutamiseks. Pikema teksti mugavaks sisestamiseks klikkige kasti paremal ülaservas oleval ikoonil.
Pakkumist tehes on keelatud postitada enda kontaktandmeid (nimi, telefon, aadress jne). Me jälgime ja analüüsime pakkumisi, et vältida pettuseid ja reeglite rikkumisi.
Rikkumise puhul kasutajakonto blokeeritakse.

 

Teisi töid samas valdkonnas

Valdkonnas "Siseviimistlustööd" on 31 aktiivset tööd

Ventilatsioonitoru vahetus, integreeritud nõudepesumasina ja pliidiplaadi vahetus

Asukoht: Tartumaa, Tartu
Aega jäänud: 10h 42 min
Tehtud pakkumisi: 5

Trepikoja värvimine

Asukoht: Harjumaa, Tallinn
Aega jäänud: 10h 42 min
Tehtud pakkumisi: 5

Vanemad teated:

Vaata kõiki

Sellel veebilehel kasutatakse küpsiseid. Kasutamist jätkates nõustute küpsiste kasutamisega.

Sulge
 
Minu pakkumine

Reeglid

Pakkumise kirjelduse väli on mõeldud pakkumise detailsemaks lahti kirjutamiseks. Pikema teksti mugavaks sisestamiseks klikkige kasti paremal ülaservas oleval ikoonil.
Pakkumist tehes on keelatud postitada enda kontaktandmeid (nimi, telefon, aadress jne). Me jälgime ja analüüsime pakkumisi, et vältida pettuseid ja reeglite rikkumisi.
Rikkumise puhul kasutajakonto blokeeritakse.