+ Lisa oma töö      

Otsid ehitajat "Eramu ehitus" valdkonnast?

Parima pakkumise ja teostaja leidmiseks lisa oma töö.

Eramu rekonstrueerimine ja juurdeehitus

ID 31016

4796 vaatamist

Prindi

  • check Pakkumiste tegemine
    kuni 28.08.2014
  • check Võitja valik kuni
    04.09.2014
  • 3 Töö teostamine
    ja hinnang
Hanke lõpp: N, 28. august, 2014
Maakond: Tartumaa
Linn: Tartu
Tööde algus: K, 01. oktoober, 2014 (Soovituslik)
Tööde lõpp: K, 31. detsember, 2014 (Soovituslik)
Ehitusmaterjalid: Töö tegija poolt

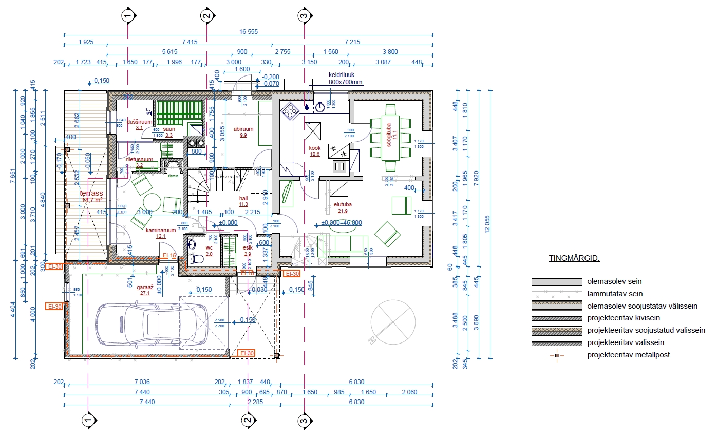
Töö sisu

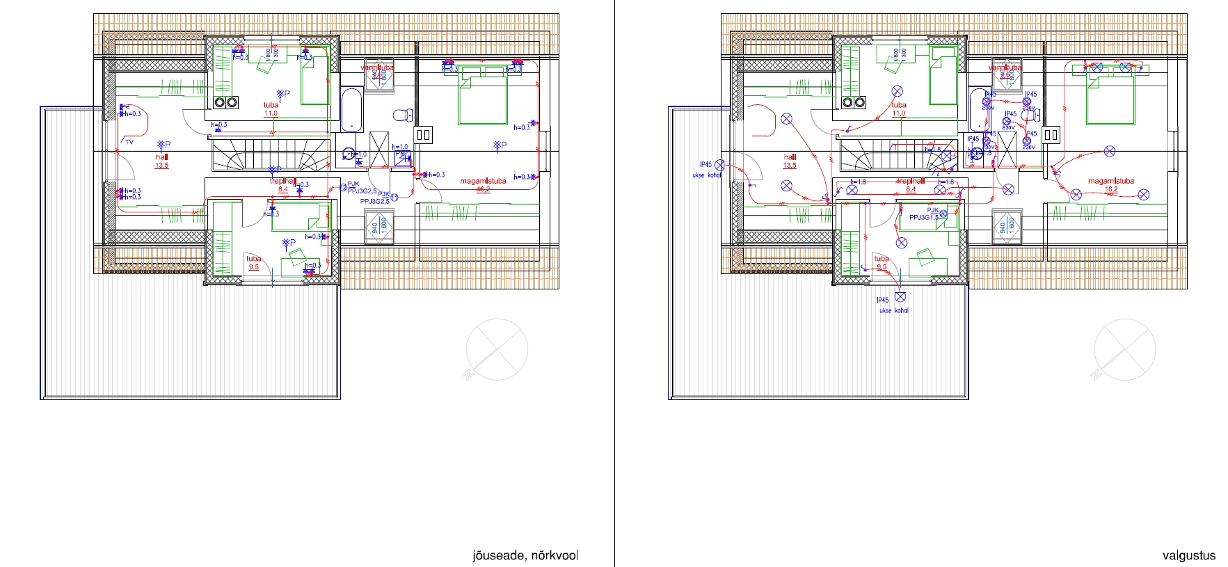
Põhihoone kapitaalremont - vanad põrandad, laed, kips/krohv maha, uued aknad-uksed, põrandad, põrandaküte, elekter ja kanalisatsioon, elementaarne siseviimistlus. Hankes on uus elekter alates kilbist, uued põrandad, seinad pahteldada ja värvida, laed pahteldada ja värvida, uksed-aknad vahetada, sh välisuksed, 2 wc-d, vannituba uuesti ehitada, saun ehitada. Sauna, vannitoa ning köögi torutööd ja kõik muud kapitaalremondi jaoks vajalikud tööd olemas oleva projekti järgi.

Lammutatava abihoone (kaks abiruumi + garaaž) asemele põhihoone suurenduse ehitamine arhitektuuri-, elektri- ja vkkv-projetide järgi. Uus kivikatus (sh alles jääva põhihoone plekk-katuse asendamine kivikatusega + soojustus).

Hinnapakkumises näidata eraldi vähemalt:
- lammutus ja utiliseerimine
- üldehitus ja materjalid
- elektritööd ja materjalid
- vee- ja kanalisatsioonitööd ja materjalid
- siseviimistluse tööd ja materjalid

Pildid, video ja failid

Hanke korraldaja: eraisik ID34807

Pakkumised

Pakkumisi kokku: 1

Ettevõte Summa Käibemaks Lisatud Vestlus
Kasutaja ikoon ID35417
Pakkuja profiil Väike nool paremale
92 055€ Ei sisalda Ei sisalda 28.08.2014 Vestlus (4)

Pakkumise kirjeldus:

Tere.
Detailne hinnapakkumine juhul kui osutume võitjaks. Hetkel meie poolt selline hind. Koostööle lootes Ehitaja.

Küsimused hanke korraldajale

Küsimus: private ID33769   18.08.2014 14:21
Tere. Kas saaksite ka pildid panna PDFi. Praegu väga kehva mõõte lugeda.

Teavita reeglite rikkumisest

Korraldaja vastus: 20.08.2014 09:26

Ei tea, miks hange.ee originaalpildid niimoodi ära nudib. Lisasin pildid pakituna zip-faili.

Teavita reeglite rikkumisest

Küsimus: private ID33769   20.08.2014 10:30
Tänud. Kas saaks ka mõne pildi hetke olukorrast?

Teavita reeglite rikkumisest

Korraldaja vastus: 21.08.2014 19:06

Lisatud mõned zip-failina. Pildil olev puidurisu saab saab enne ehituse algust kütteks saetud.

Teavita reeglite rikkumisest

Lisa küsimus

Lisa küsimus

Minu pakkumine

Reeglid

Pakkumise kirjelduse väli on mõeldud pakkumise detailsemaks lahti kirjutamiseks. Pikema teksti mugavaks sisestamiseks klikkige kasti paremal ülaservas oleval ikoonil.
Pakkumist tehes on keelatud postitada enda kontaktandmeid (nimi, telefon, aadress jne). Me jälgime ja analüüsime pakkumisi, et vältida pettuseid ja reeglite rikkumisi.
Rikkumise puhul kasutajakonto blokeeritakse.

 

Vanemad teated:

Vaata kõiki

Sellel veebilehel kasutatakse küpsiseid. Kasutamist jätkates nõustute küpsiste kasutamisega.

Sulge
 
Minu pakkumine

Reeglid

Pakkumise kirjelduse väli on mõeldud pakkumise detailsemaks lahti kirjutamiseks. Pikema teksti mugavaks sisestamiseks klikkige kasti paremal ülaservas oleval ikoonil.
Pakkumist tehes on keelatud postitada enda kontaktandmeid (nimi, telefon, aadress jne). Me jälgime ja analüüsime pakkumisi, et vältida pettuseid ja reeglite rikkumisi.
Rikkumise puhul kasutajakonto blokeeritakse.