+ Lisa oma töö      

Otsid ehitajat "Eramu ehitus" valdkonnast?

Parima pakkumise ja teostaja leidmiseks lisa oma töö.

Sauna ehitus

ID 31228

3619 vaatamist

Prindi

  • check Pakkumiste tegemine
    kuni 25.09.2014
  • check Võitja valik kuni
    02.10.2014
  • 3 Töö teostamine
    ja hinnang
Hanke lõpp: N, 25. september, 2014
Maakond: Ida-Virumaa
Muu asula: Toila
Tööde algus: P, 01. märts, 2015 (Soovituslik)
Tööde lõpp: P, 19. juuli, 2015 (Soovituslik)
Ehitusmaterjalid: Töö tegija poolt

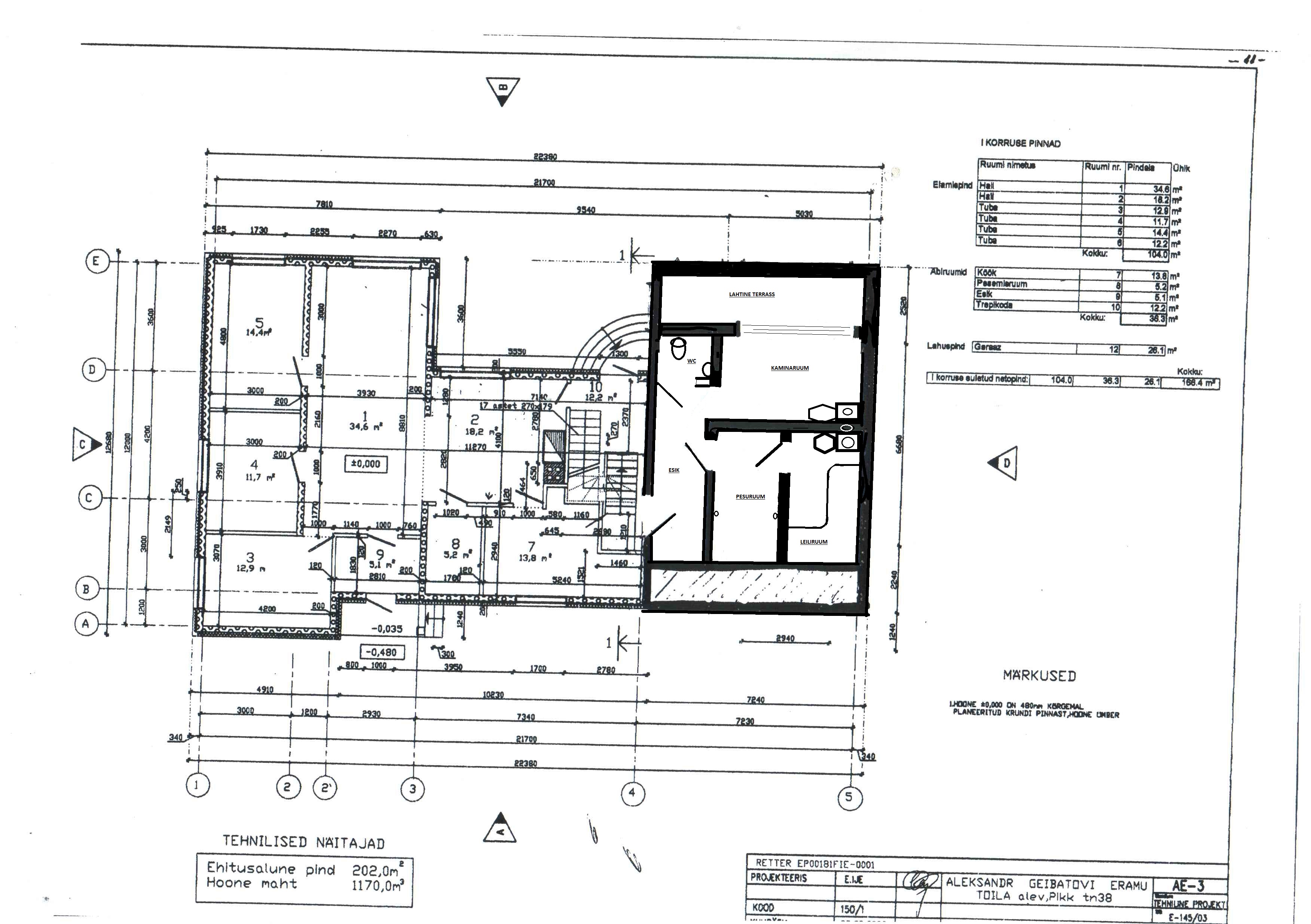
Töö sisu

Ehitada garaazi kohapeale teist korrust, kuhu läheb saun. Leili ruum, pesuruum, wc ja puhke saal.

Pildid, video ja failid

Hanke korraldaja: eraisik ID36455

Pakkumised

Pakkumisi kokku: 2

Ettevõte Summa Käibemaks Lisatud Vestlus
Kasutaja ikoon ID36405
Pakkuja profiil Väike nool paremale
14 300€ Sisaldab KM Sisaldab KM 21.09.2014 Vestlus (5)
Kasutaja ikoon ID36524
Pakkuja profiil Väike nool paremale
13 268€ Ei sisalda Ei sisalda 22.09.2014 Vestlus (3)

Pakkumise kirjeldus:

Tere!
töödega oleks võimalik alustada kohe, antud hinna arvestasime vastavalt hanke kirjeldusele.

Ette tänades

Küsimused hanke korraldajale

Küsimus: private ID36405   22.09.2014 07:03
ok .töö on meie poolt.<br />

Teavita reeglite rikkumisest

Korraldaja vastus:
Hanke korraldaja ei ole küsimusele veel vastanud

Lisa küsimus

Lisa küsimus

Minu pakkumine

Reeglid

Pakkumise kirjelduse väli on mõeldud pakkumise detailsemaks lahti kirjutamiseks. Pikema teksti mugavaks sisestamiseks klikkige kasti paremal ülaservas oleval ikoonil.
Pakkumist tehes on keelatud postitada enda kontaktandmeid (nimi, telefon, aadress jne). Me jälgime ja analüüsime pakkumisi, et vältida pettuseid ja reeglite rikkumisi.
Rikkumise puhul kasutajakonto blokeeritakse.

 

Teisi töid samas valdkonnas

Valdkonnas "Eramu ehitus" on 2 aktiivset tööd

Eramu ehitus

Asukoht: Viljandimaa, Viljandi
Aega jäänud: 5p 12h
Tehtud pakkumisi: 1

no-img Pilt puudub

Eramu ehitus. Karp kinni.

Asukoht: Lääne-Virumaa
Aega jäänud: 3p 12h
Tehtud pakkumisi: 0

Vanemad teated:

Vaata kõiki

Sellel veebilehel kasutatakse küpsiseid. Kasutamist jätkates nõustute küpsiste kasutamisega.

Sulge
 
Minu pakkumine

Reeglid

Pakkumise kirjelduse väli on mõeldud pakkumise detailsemaks lahti kirjutamiseks. Pikema teksti mugavaks sisestamiseks klikkige kasti paremal ülaservas oleval ikoonil.
Pakkumist tehes on keelatud postitada enda kontaktandmeid (nimi, telefon, aadress jne). Me jälgime ja analüüsime pakkumisi, et vältida pettuseid ja reeglite rikkumisi.
Rikkumise puhul kasutajakonto blokeeritakse.