+ Lisa oma töö      

Otsid ehitajat "Eramu ehitus" valdkonnast?

Parima pakkumise ja teostaja leidmiseks lisa oma töö.

Majade paigaldus Stockholmis

ID 31550

5028 vaatamist

Prindi

  • check Pakkumiste tegemine
    kuni 14.11.2014
  • check Võitja valik kuni
    21.11.2014
  • 3 Töö teostamine
    ja hinnang
Hanke lõpp: R, 14. november, 2014
Maakond: Harjumaa
Muu asula: Stockholm
Tööde algus: N, 12. märts, 2015 (Kohustuslik)
Tööde lõpp: E, 13. aprill, 2015 (Soovituslik)
Ehitusmaterjalid: Töö tellija poolt

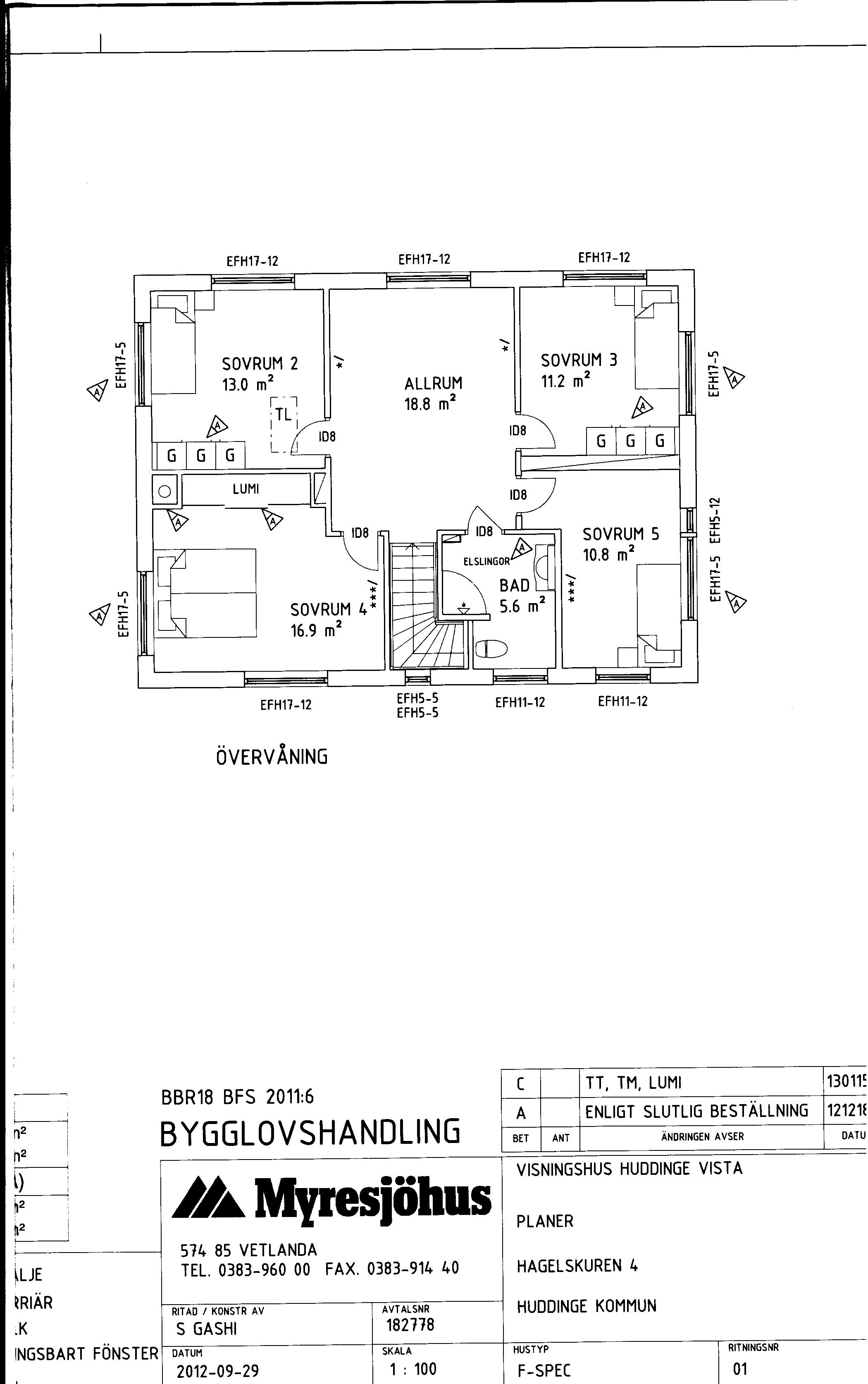
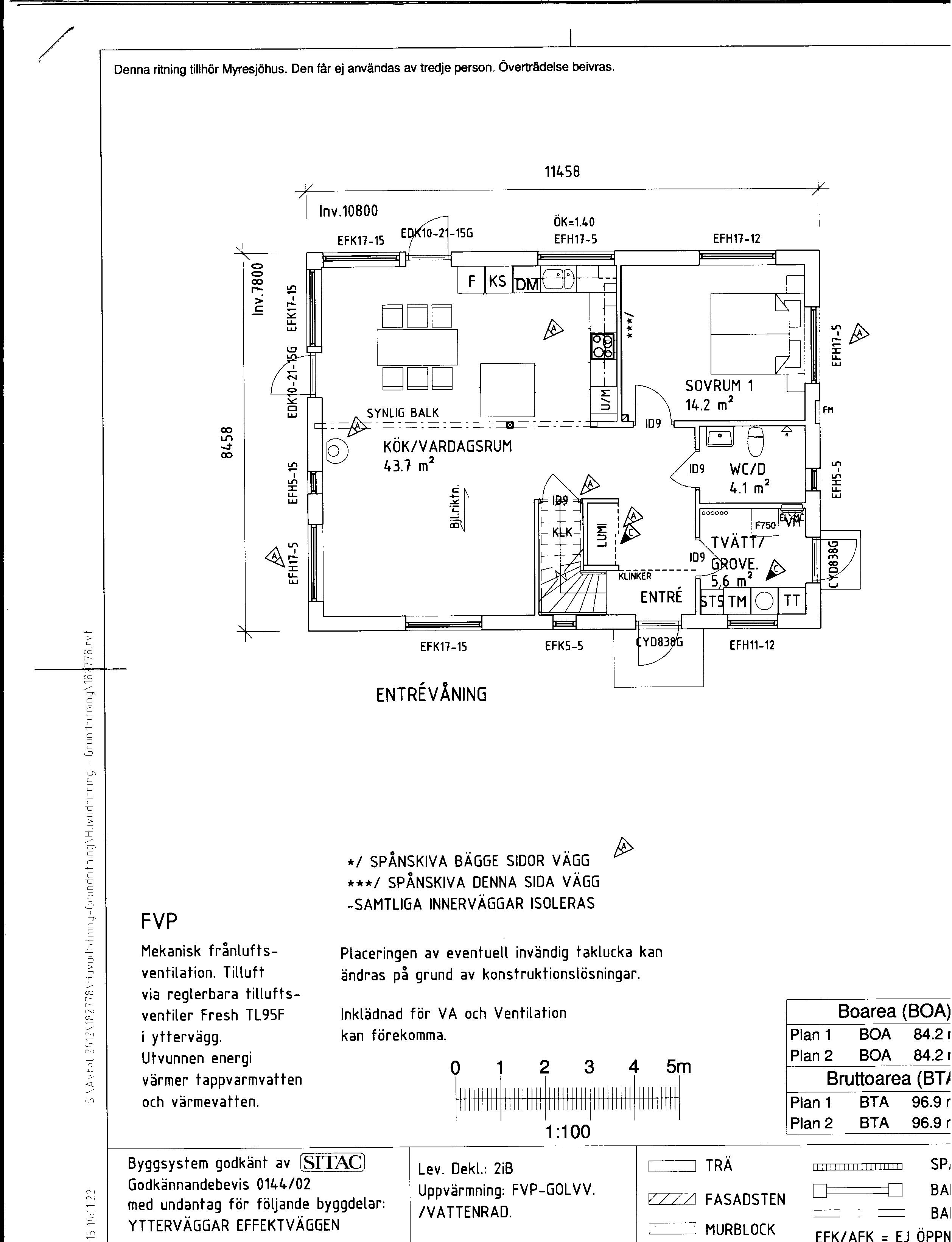
Töö sisu

Paigaldada tuleks siis 2 maja. Majad lähevad üksteise kõrvale, moodustades ridamaja.
Töö sisu on:
1.Majakilpide paigaldus 2-korrust (aknad ja uksed on kilpidel paigas, plekid samuti ja välislaudis )
2. Vahelae kilpide paigaldus
3. Fermide paigaldus ja laudis (valmis laudise kilbid 600x2400) katusele. Katusekivide paigaldus koos alusrooviga
4. Väljast seinanurgad kinni, vihmaveerennid ja mõned räästa lauad paigaldada
5. Seest maja välisnurkade katmine kipsiga I-ja II korrus (seinad on enamus kaetud juba kipsiga ainult seinte ühenduskohad on ilma)
6. Vahelae isolatsiooni paigaldus 100mm ja kipsiroovi paigaldus
7. II-korrusel lakke aurutõkke kile koos puidust kipsirooviga
8. Vaheseinte karkassi ehitus I-ja II korrusel (puit karkass) mõlemale poole 1xkips ja 70mm isolatsioon
9. Lagede katmine kipsiga I-ja II korrus
10. Puidust laeliistude paigaldus, aknalaudade (kivi) ja aknapalede (MDF värvitud) paigaldus

Tellija poolt- ümber maja perimeetri on korraalikud tellingud, kraana ja kinnitusvahendid, katusekivide tõste.
Majade paigaldus 11 nädal

Pildid, video ja failid

Hanke korraldaja: ettevõte ID29437

Pakkumised

Pakkumisi kokku: 6

Ettevõte Summa Käibemaks Lisatud Vestlus
Kasutaja ikoon ID31239
Pakkuja profiil Väike nool paremale
22€ Ei sisalda Ei sisalda 06.11.2014 Vestlus (0)

Pakkumise kirjeldus:

Hanke teenustasu võidu korral maksab hanke korraldaja!

Kasutaja ikoon ID33675
Pakkuja profiil Väike nool paremale
30 285,6€ Sisaldab KM Sisaldab KM 12.11.2014 Vestlus (0)

Pakkumise kirjeldus:

Tere! Pakkumine on koostatud ühe hoone püstitamisele ja irdtöödele vastavalt päringule –
1.Hoone välisseinte elementide paigaldus 2-korrust : aknad, välisuksed on tehasepaigaldatud (lisana paigaldusjärgne reguleerimine), veeplekid tehasepaigaldatud, välislaadis tehasepaigaldatud.
2. Vahelae kilpide paigaldus
3. Fermide paigaldus ja laudis (val ... Rohkem

Kasutaja ikoon ID8782
Pakkuja profiil Väike nool paremale
31 000€ Ei sisalda Ei sisalda 12.11.2014 Vestlus (0)

Pakkumise kirjeldus:

töö korralik ja kvaliteetne
tööle ei lisandu km

Kasutaja ikoon ID14751
Pakkuja profiil Väike nool paremale
180 000€ Ei sisalda Ei sisalda 14.11.2014 Vestlus (0)

Pakkumise kirjeldus:

1 Alustus ja lõpetus kulud.
2 Alajooksu puu
3 Alajooks 2 korrus
4 Seinaelemendid
5 Vahelae elemendid.
6 Vahelaele harvlaudis 100 vill+kips
7 2k lagi kile harvlaud kips.
8 vaheseinad
9 Katusekilbid
10 Katus aluskate tuulutus roov kivi.
11 Räästalauad sarika vahelauad.
12 Sadeveesi Lindab paigaldus.
13 Otsaviilud koos räästa kassetiga.
14 Sar ... Rohkem

Kasutaja ikoon ID36236
Pakkuja profiil Väike nool paremale
53 000€ Sisaldab KM Sisaldab KM 14.11.2014 Vestlus (0)

Pakkumise kirjeldus:

Tere,
tegeleme element ja moodulmajade paigaldusega Norras ja Prantsusmaal, olemas ehituslitsents, olemas kohe 2 brigaadi, samuti saame objektile saata oma projektijuhi, oleme ise ka tootnud element ja väiksemaid moodulmaju, samuti on brigaad, kes teeb palkmaju.
Maja paigaldusega probleeme ei teki, kui joonised on korralikud ja õieti koostatud, siis là ... Rohkem

Kasutaja ikoon ID25598
Pakkuja profiil Väike nool paremale
42 000€ Ei sisalda Ei sisalda 14.11.2014 Vestlus (0)

Küsimused hanke korraldajale

Küsimus: private ID36068   16.10.2014 07:57
Tere. Kas elamine kohapeal on teie poolt.

Teavita reeglite rikkumisest

Korraldaja vastus: 17.10.2014 10:04

Elamine kohapeal olemas.

Teavita reeglite rikkumisest

Küsimus: private ID14751   18.10.2014 13:33
Tere<br />
<br />
Kas tehases oleks võimalik vaheladede isolatsioon ja kipsi roov ära paigaldada. Kunagi sai selline maja paigaldatud kus oli sama teema ja selle töö oleks võinud tehases täiesti vabalt ära teha.<br />
Kas meie poolt peaksid olema siis kõik kinnitusvahendid teibid ja sukkvill elementide vahele.<br />
Tellija võiks korraldada ka majutuse.

Teavita reeglite rikkumisest

Korraldaja vastus: 18.10.2014 16:42

Maja vahelagesid teevad robotid ja keegi hakkab 2 maja pärast oma standardit muutma. Kinnitusvahendid on kõik tellija poolt, midagi leiutama ei pea, ainult jooniste lugemise oskus (rootsi keelne) on nõutav, aga saan ka ise abiks olla. Majutus lahendatakse.

Teavita reeglite rikkumisest

Küsimus: private ID14751   18.10.2014 18:56
Ok tuleb siis tükid kokku lugeda ja hind välja mõelda. Täna paigaldame Soomes põhimõtteliselt samu 2 korrusl majasid seal ainult vahelaed betoonist. Lisasin mõned pildid ka.<br />
<br />
Enne jäi veel küsimatta et kas vaja ka paigaldada putukavõrgud, tormi ehk sarikatevaheline laud ja sarikate vahele tuulekaitse papid. Enne roovituse paigaldust veel siis ka sarikate tugevdamine diagonaalide abil.<br />
<br />
Ma üritan siis omaltpoolt pakkuda kõik tööd mis loetelus ja veel need mis siis vajalikud selle lõpptulemuse saavutamiseks.<br />
Rootsi keelega suured raskused. Eesti Soome Vene ja Ingliskeelsete paberitega saaks hakkama.

Teavita reeglite rikkumisest

Korraldaja vastus: 22.10.2014 18:50

Sarikate vaheline laud on komplektne detail ja 1-e paigaldus võtab aega 30 s. Tuulesuunajad tuleb paigaldada ja need on spets. papid, putukavõrgud tuleb samuti paigaldada, diagonaale ei paigaldata

Teavita reeglite rikkumisest

Küsimus: private ID14751   05.11.2014 11:49
Asennnuskustannukset <br />
<br />
1 Alustus ja lõpetus kulud. <br />
2 Alajooksu puu <br />
3 Alajooks 2 korrus <br />
4 Seinaelemendid <br />
5 Vahelae elemendid. <br />
6 Vahelaele harvlaudis 100 vill+kips <br />
7 2k lagi kile harvlaud kips. <br />
8 vaheseinad <br />
9 Katusekilbid <br />
10 Katus aluskate tuulutus roov kivi. <br />
11 Räästalauad sarika vahelauad. <br />
12 Sadeveesi Lindab paigaldus. <br />
13 Otsaviilud koos räästa kassetiga. <br />
14 Sarikad paig. Horisontaal ja vertikaal kinnitused. <br />
15 Nurgad välis <br />
16 Nurgad sise kile teipimine kipsi panek. <br />
17 Tuulesuunaja <br />
18 Linnuvõrk <br />
19 Ilmakaitse tööd vastavalt vajadusele <br />
20 Väljast valmis, hefti laudade paigaldus. <br />
21 Koormate maha laadimine. <br />
Kokku km 0% 16 000. 1 maja<br />

Teavita reeglite rikkumisest

Korraldaja vastus:
Hanke korraldaja ei ole küsimusele veel vastanud

Lisa küsimus

Lisa küsimus

Minu pakkumine

€

Reeglid

Pakkumise kirjelduse väli on mõeldud pakkumise detailsemaks lahti kirjutamiseks. Pikema teksti mugavaks sisestamiseks klikkige kasti paremal ülaservas oleval ikoonil.
Pakkumist tehes on keelatud postitada enda kontaktandmeid (nimi, telefon, aadress jne). Me jälgime ja analüüsime pakkumisi, et vältida pettuseid ja reeglite rikkumisi.
Rikkumise puhul kasutajakonto blokeeritakse.

 

Teisi töid samas valdkonnas

Valdkonnas "Eramu ehitus" on 2 aktiivset tööd

Eramu ehitus

Asukoht: Viljandimaa, Viljandi
Aega jäänud: 5p 12h
Tehtud pakkumisi: 1

no-img Pilt puudub

Eramu ehitus. Karp kinni.

Asukoht: Lääne-Virumaa
Aega jäänud: 3p 12h
Tehtud pakkumisi: 0

Vanemad teated:

Vaata kõiki

Sellel veebilehel kasutatakse küpsiseid. Kasutamist jätkates nõustute küpsiste kasutamisega.

Sulge
 
Minu pakkumine
€

Reeglid

Pakkumise kirjelduse väli on mõeldud pakkumise detailsemaks lahti kirjutamiseks. Pikema teksti mugavaks sisestamiseks klikkige kasti paremal ülaservas oleval ikoonil.
Pakkumist tehes on keelatud postitada enda kontaktandmeid (nimi, telefon, aadress jne). Me jälgime ja analüüsime pakkumisi, et vältida pettuseid ja reeglite rikkumisi.
Rikkumise puhul kasutajakonto blokeeritakse.