+ Lisa oma töö      

Otsid ehitajat "Haljastustööd" valdkonnast?

Parima pakkumise ja teostaja leidmiseks lisa oma töö.

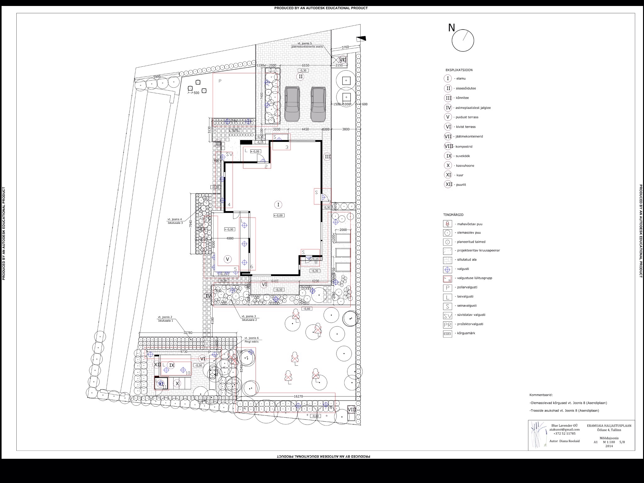
Aia maastiku ja teede planeerimine

ID 31591

1936 vaatamist

Prindi

  • check Pakkumiste tegemine
    kuni 02.11.2014
  • check Võitja valik kuni
    09.11.2014
  • 3 Töö teostamine
    ja hinnang
Hanke lõpp: P, 2. november, 2014
Maakond: Harjumaa
Muu asula: Kloostrimetsa
Tööde algus: E, 03. november, 2014 (Soovituslik)
Tööde lõpp: P, 30. november, 2014 (Soovituslik)
Ehitusmaterjalid: Töö tegija poolt

Töö sisu

1. jalgteede, parkimisala, istutusalade mahamärkimine ja aluste planeerimine
2. olemasoleva haljastusmulla ärakasutamine, vajadusel liigse äraviimine
3. Valgustite kaabeldustööd

praegune olukord:

* Maja ümber rajatava tee alt on pinnas kooritud 25cm sügavuselt ja vundamendi ümber on rajatud u 1m laiuselt külmakaitse penoplastiga, mis on kaetud liivaga. Maja ümber on tarvis rajada jalgtee põhi.

* Aias on tarvis rajada istutusalad ja muruala haljastusmullaga.

* Aias oleval auto parkimisalal on kinni tallutud killustik (vähemalt 40cm paksune). Aiast väljas oleval lisa parkimisalal on kinnitallatud mullapinnas, mis on tarvis koorida ja täita killustikuga.

* olemasolev muld on pinnaselt kooritud turbane muld mida on tarvis segada põllumullaga.

Paigaldatud on maaküttespiraalid, võimalik kasutada kergtehnikat.

Kui ilmastik lubab saab jätkata teede sillustiku paigaldusega, siis eraldi kalkulatsiooni järgi.

Pildid, video ja failid

Hanke korraldaja: eraisik ID36815

Pakkumised

Pakkumisi kokku: 0

Küsimused hanke korraldajale

Hanke korraldajale ei ole veel küsimusi esitatud.

Lisa küsimus

Lisa küsimus

Minu pakkumine

Reeglid

Pakkumise kirjelduse väli on mõeldud pakkumise detailsemaks lahti kirjutamiseks. Pikema teksti mugavaks sisestamiseks klikkige kasti paremal ülaservas oleval ikoonil.
Pakkumist tehes on keelatud postitada enda kontaktandmeid (nimi, telefon, aadress jne). Me jälgime ja analüüsime pakkumisi, et vältida pettuseid ja reeglite rikkumisi.
Rikkumise puhul kasutajakonto blokeeritakse.

 

Teisi töid samas valdkonnas

Valdkonnas "Haljastustööd" on 5 aktiivset tööd

no-img Pilt puudub

Muru niitmine

Asukoht: Viljandimaa, Soomevere
Aega jäänud: 2p 23h
Tehtud pakkumisi: 2

no-img Pilt puudub

Metsaaluse hooldus/puhastus

Asukoht: Harjumaa, Laulasmaa
Aega jäänud: 6p 23h
Tehtud pakkumisi: 0

Vanemad teated:

Vaata kõiki

Sellel veebilehel kasutatakse küpsiseid. Kasutamist jätkates nõustute küpsiste kasutamisega.

Sulge
 
Minu pakkumine

Reeglid

Pakkumise kirjelduse väli on mõeldud pakkumise detailsemaks lahti kirjutamiseks. Pikema teksti mugavaks sisestamiseks klikkige kasti paremal ülaservas oleval ikoonil.
Pakkumist tehes on keelatud postitada enda kontaktandmeid (nimi, telefon, aadress jne). Me jälgime ja analüüsime pakkumisi, et vältida pettuseid ja reeglite rikkumisi.
Rikkumise puhul kasutajakonto blokeeritakse.