+ Lisa oma töö      

Otsid ehitajat "Eramu ehitus" valdkonnast?

Parima pakkumise ja teostaja leidmiseks lisa oma töö.

2. korruse lae, seina ja kaldlae ehitus

ID 31728

4267 vaatamist

Prindi

  • check Pakkumiste tegemine
    kuni 13.11.2014
  • check Võitja valik kuni
    20.11.2014
  • 3 Töö teostamine
    ja hinnang
Hanke lõpp: N, 13. november, 2014
Maakond: Harjumaa
Muu asula: Saku
Tööde algus: E, 17. november, 2014 (Soovituslik)
Tööde lõpp: P, 30. november, 2014 (Soovituslik)
Ehitusmaterjalid: Töö tellija poolt

Töö sisu

Ootan töö hinda.


Soojustue paigalduseks(tselluvill) vajalikud 2. korruse lae, seina ja kaldlae tööd.

1. Kaldlaele ristroov 50x250 prussist (~46m2) (Sarikas on all 50x250)

2. Seina ristroovi max 20m2 ja seina tuuletõkke ~10m2(tselluvilla ruumi tekitamiseks) paigaldus

3. Kaldlaele, laele ja seinale aurutõkke paberi paigaldus, mille peale u riputite paigaldus + u.riputite vaheline karkass. kokku ~320 riputit ja ~320jm karkassi

Kaldlagi ~46m2
Sein - 20m2
Lagi -67m2

Pildid, video ja failid

Hanke korraldaja: eraisik ID32784

Pakkumised

Pakkumisi kokku: 1

Ettevõte Summa Käibemaks Lisatud Vestlus
Kasutaja ikoon ID27378
Pakkuja profiil Väike nool paremale
2 400€ Sisaldab KM Sisaldab KM 13.11.2014 Vestlus (0)

Küsimused hanke korraldajale

Küsimus: private ID30805   06.11.2014 23:21
Palun lisada joonised juhul kui on .<br />
<br />
<br />
Tänades !

Teavita reeglite rikkumisest

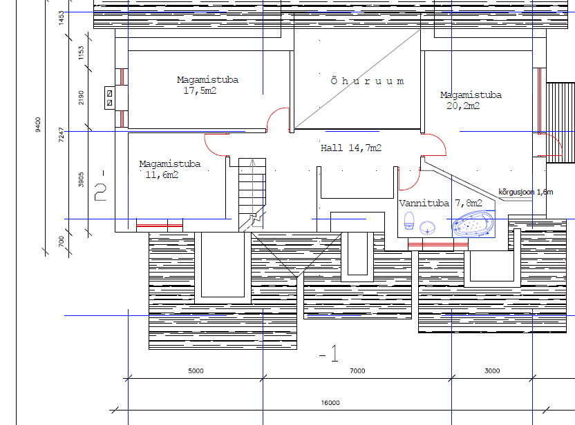
Korraldaja vastus: 06.11.2014 23:32

kas see sobib ?

Teavita reeglite rikkumisest

Küsimus: private ID30805   06.11.2014 23:51
Ühesõnaga katusealune on vaja tselluvilla paigalduseks ettevalmistada ? karkassi paigaldus aurutõkkeni. Kinnitusvahendid teie poolt ?

Teavita reeglite rikkumisest

Korraldaja vastus: 06.11.2014 23:57

jah, kõik materjalid . Või mis kinnitusvahendid ? metallnurgad, ristprussi kinnitid kruvid jms jah.

Teavita reeglite rikkumisest

Küsimus: private ID19590   07.11.2014 08:39
Tere.<br />
Kas Polüuretaanvahuga soojustamine ei pakuks antud objektil huvi? Jääks ära igasugune lisa prusside paigaldus ja oleks oluline ruumi kokkuhoid ja samuti ei ole vaja paigaldada enam ei tuule ega ka aurutõket kuna vaht on ise väga hea auru ja tuuletõke.<br />
Samuti on 200mm vahtu võrdne ca 550mm tselluvillaga!!

Teavita reeglite rikkumisest

Korraldaja vastus: 07.11.2014 08:51

Nii lihtne see pole ja kasulikku pinda on 275 m2 ja ruumi kokkuhoid pole argument. Aga olen ka uurinud seda varianti enne projekteerimist

Teavita reeglite rikkumisest

Küsimus: private ID31317   12.11.2014 01:18
Tere!<br />
saan õigesti aru et tegu uue hoonega, lisaprussid höövelmaterjal, ning kas eelnevad karkassitööd teostatud korralikult ehk kas on vajadus ka suuremaks rihtimiseks?

Teavita reeglite rikkumisest

Korraldaja vastus: 13.11.2014 09:16

Tegu on uue hoonega, sarikad kalibreeritud höövel materjalist, ristroov tugevussorteeritud SF kvaliteediga materjalist.<br />
Viimane lihv tuleb u-kinnitite vahele mineva kipsikarkassiga.<br />

Teavita reeglite rikkumisest

Lisa küsimus

Lisa küsimus

Minu pakkumine

Reeglid

Pakkumise kirjelduse väli on mõeldud pakkumise detailsemaks lahti kirjutamiseks. Pikema teksti mugavaks sisestamiseks klikkige kasti paremal ülaservas oleval ikoonil.
Pakkumist tehes on keelatud postitada enda kontaktandmeid (nimi, telefon, aadress jne). Me jälgime ja analüüsime pakkumisi, et vältida pettuseid ja reeglite rikkumisi.
Rikkumise puhul kasutajakonto blokeeritakse.

 

Teisi töid samas valdkonnas

Valdkonnas "Eramu ehitus" on 2 aktiivset tööd

Eramu ehitus

Asukoht: Viljandimaa, Viljandi
Aega jäänud: 5p 8h
Tehtud pakkumisi: 1

no-img Pilt puudub

Eramu ehitus. Karp kinni.

Asukoht: Lääne-Virumaa
Aega jäänud: 3p 8h
Tehtud pakkumisi: 0

Vanemad teated:

Vaata kõiki

Sellel veebilehel kasutatakse küpsiseid. Kasutamist jätkates nõustute küpsiste kasutamisega.

Sulge
 
Minu pakkumine

Reeglid

Pakkumise kirjelduse väli on mõeldud pakkumise detailsemaks lahti kirjutamiseks. Pikema teksti mugavaks sisestamiseks klikkige kasti paremal ülaservas oleval ikoonil.
Pakkumist tehes on keelatud postitada enda kontaktandmeid (nimi, telefon, aadress jne). Me jälgime ja analüüsime pakkumisi, et vältida pettuseid ja reeglite rikkumisi.
Rikkumise puhul kasutajakonto blokeeritakse.