+ Lisa oma töö      

Otsid ehitajat "Vundamenditööd" valdkonnast?

Parima pakkumise ja teostaja leidmiseks lisa oma töö.

Vundamendi ehitus

ID 31932

5188 vaatamist

Prindi

  • check Pakkumiste tegemine
    kuni 08.01.2015
  • check Võitja valik kuni
    15.01.2015
  • 3 Töö teostamine
    ja hinnang
Hanke lõpp: N, 8. jaanuar, 2015
Maakond: Harjumaa
Linn: Saue
Tööde algus: E, 30. märts, 2015 (Soovituslik)
Tööde lõpp: N, 30. aprill, 2015 (Soovituslik)
Ehitusmaterjalid: Töö tegija poolt

Töö sisu

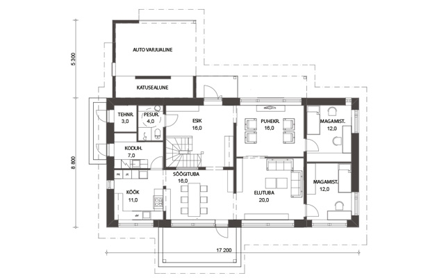
On vaja ehitada lintvundament Aerocist majale. Elekter ja vesi on juba kohal olemas. Maja suurused on märgitud joonistele.

Töö sisaldab:
1)Geodeesiat
2)Vundamendi kaevamist
3)Lintvundamendi ladumist FIBO blokkidest kõrgusega 1,2m
4)Soojustust, killustiku ja liiva
5)Betoonipõranda ja põrandakütte torude paigaldamine
6)Hüdroisolatsiooni ja välissoojustamist

Tööde algus märtsi lõpus/aprillis.

Pildid, video ja failid

Hanke korraldaja: ettevõte ID36858

Pakkumised

Pakkumisi kokku: 14

Ettevõte Summa Käibemaks Lisatud Vestlus
Kasutaja ikoon ID37342
Pakkuja profiil Väike nool paremale
27 065,1€ Sisaldab KM Sisaldab KM 22.12.2014 Vestlus (0)
Kasutaja ikoon ID31065
Pakkuja profiil Väike nool paremale
25 500€ Ei sisalda Ei sisalda 30.12.2014 Vestlus (0)
Kasutaja ikoon ID14751
Pakkuja profiil Väike nool paremale
26 000€ Sisaldab KM Sisaldab KM 01.01.2015 Vestlus (0)
Kasutaja ikoon ID3070
Pakkuja profiil Väike nool paremale
24 000€ Sisaldab KM Sisaldab KM 02.01.2015 Vestlus (0)

Pakkumise kirjeldus:

Tere, hind sisaldab tööd, materjali, makse ja transporti. Kuna tegemist on firmaga on ka tehtud töödele garantii.

Kasutaja ikoon ID30825
Pakkuja profiil Väike nool paremale
24 284,9€ Ei sisalda Ei sisalda 02.01.2015 Vestlus (0)

Pakkumise kirjeldus:

Tere,

Pakkumuse sobivuse korral võime eraldi tuua välja materjalide maksumuse.

Lugupidamisega,

Kasutaja ikoon ID8633
Pakkuja profiil Väike nool paremale
23 500€ Ei sisalda Ei sisalda 05.01.2015 Vestlus (0)
Kasutaja ikoon ID23287
Pakkuja profiil Väike nool paremale
27 430,1€ Sisaldab KM Sisaldab KM 06.01.2015 Vestlus (0)
Kasutaja ikoon ID33606
Pakkuja profiil Väike nool paremale
27 700€ Sisaldab KM Sisaldab KM 07.01.2015 Vestlus (0)

Pakkumise kirjeldus:

Tere. Pakkumine on koostatud vastavalt Teie poolsele tööde kirjeldusele ja joonistele. Koostatakse kogu vajalik dokumentatsioon (mahamärkimsakt, kaetud tööde aktid jne.). Garantii 2 aastat. Kui ehitame, siis enda järelt ka koristame. Tööde eest tasumine vastavalt kokku lepitavale tööde ja maksegraafikule. Terv, Priit

Kasutaja ikoon ID25816
Pakkuja profiil Väike nool paremale
23 900€ Sisaldab KM Sisaldab KM 08.01.2015 Vestlus (0)

Pakkumise kirjeldus:

Pakkumise hind on tehtud vundamendiplokile, mitte fibo 300-le. Tugevus muutub 5Mpa 21Mpa-liks, ja hind langeb 20%. Kuna olen ehitanud Aeroc Ecoterm 375 ja 500 mitmeid maju, siis vundamendi pädevuses pole vaja kahelda, külmasildu ei teki. Hind sisaldab kõikki makse, jäätmete utiliseerimist, hilisemat heakorda. Kogu ehitustegevus dokumenteeritakse ehitu ... Rohkem

Kasutaja ikoon ID33845
Pakkuja profiil Väike nool paremale
24 900€ Sisaldab KM Sisaldab KM 08.01.2015 Vestlus (0)
Kasutaja ikoon ID2942
Pakkuja profiil Väike nool paremale
24 000€ Sisaldab KM Sisaldab KM 08.01.2015 Vestlus (0)
Kasutaja ikoon ID8356
Pakkuja profiil Väike nool paremale
21 796€ Ei sisalda Ei sisalda 08.01.2015 Vestlus (0)

Pakkumise kirjeldus:

Materjalid 9807 €, töö 9292 € ja mehhanismid 2697 €.

Kasutaja ikoon ID37350
Pakkuja profiil Väike nool paremale
22 109€ Ei sisalda Ei sisalda 08.01.2015 Vestlus (0)
Kasutaja ikoon ID36936
Pakkuja profiil Väike nool paremale
24 000€ Ei sisalda Ei sisalda 08.01.2015 Vestlus (0)

Pakkumise kirjeldus:

Tere!Täpset pakkumist ei ole võimalik koostada , kuna ei tea kõiki asjaolusid.Seega tööde ja materjalide hinda eraldi välja tuua ei ole otstarbekas. Olemasoleva info põhjal saame oma pakutud summaga töö tehtud.Nimetatud töö kestvus oleks ca 1 kuu võib olla ka vähem , kui kõik klapib.Peale esimese töö lõpetamist võime sobivusel objekti lõpu ... Rohkem

Küsimused hanke korraldajale

Küsimus: private ID33845   11.12.2014 14:00
Tere, kas vundamendi plaan ja lõige on olemas? Palun lisada

Teavita reeglite rikkumisest

Korraldaja vastus: 11.12.2014 18:28

Plaan on lisatud joonisel. On vaja vundamenti meie poolt ostetava Aeroct-Jämerä maja (seeria Terrass) jaoks.<br />
<br />
http://www.jamera.ee/et/terrass/<br />
<br />
Vundament on standartne. Taldmik on 700x200. FIBO-5 300mm kõrgusega 5 rida. Standartne soojustus, põrand on 100mm betoon.

Teavita reeglite rikkumisest

Küsimus: private ID34128   13.12.2014 13:09
Kas tegemist pae pinnasega?<br />
Lgp

Teavita reeglite rikkumisest

Korraldaja vastus: 13.12.2014 18:37

Jah, on paepinnas.

Teavita reeglite rikkumisest

Lisa küsimus

Lisa küsimus

Minu pakkumine

Reeglid

Pakkumise kirjelduse väli on mõeldud pakkumise detailsemaks lahti kirjutamiseks. Pikema teksti mugavaks sisestamiseks klikkige kasti paremal ülaservas oleval ikoonil.
Pakkumist tehes on keelatud postitada enda kontaktandmeid (nimi, telefon, aadress jne). Me jälgime ja analüüsime pakkumisi, et vältida pettuseid ja reeglite rikkumisi.
Rikkumise puhul kasutajakonto blokeeritakse.

 

Teisi töid samas valdkonnas

Valdkonnas "Vundamenditööd" on 5 aktiivset tööd

no-img Pilt puudub

Plaatvundament koos kommunikatsioonidega

Asukoht: Harjumaa
Aega jäänud: 5p 4h
Tehtud pakkumisi: 2

Vundamendi ehitus

Asukoht: Harjumaa, Ülgase
Aega jäänud: 5p 4h
Tehtud pakkumisi: 1

Vanemad teated:

Vaata kõiki

Sellel veebilehel kasutatakse küpsiseid. Kasutamist jätkates nõustute küpsiste kasutamisega.

Sulge
 
Minu pakkumine

Reeglid

Pakkumise kirjelduse väli on mõeldud pakkumise detailsemaks lahti kirjutamiseks. Pikema teksti mugavaks sisestamiseks klikkige kasti paremal ülaservas oleval ikoonil.
Pakkumist tehes on keelatud postitada enda kontaktandmeid (nimi, telefon, aadress jne). Me jälgime ja analüüsime pakkumisi, et vältida pettuseid ja reeglite rikkumisi.
Rikkumise puhul kasutajakonto blokeeritakse.