+ Lisa oma töö      

Korteri köögi, duššir. ja esiku remont

ID 320

3526 vaatamist

Prindi

  • check Pakkumiste tegemine
    kuni 04.04.2006
  • check Võitja valik kuni
    11.04.2006
  • 3 Töö teostamine
    ja hinnang
Hanke lõpp: T, 4. aprill, 2006
Maakond: Harjumaa
Muu asula: Pelgulinn
Tööde algus: L, 01. aprill, 2006 (Soovituslik)
Tööde lõpp: T, 02. mai, 2006 (Soovituslik)
Ehitusmaterjalid: Töö tegija poolt

Töö sisu

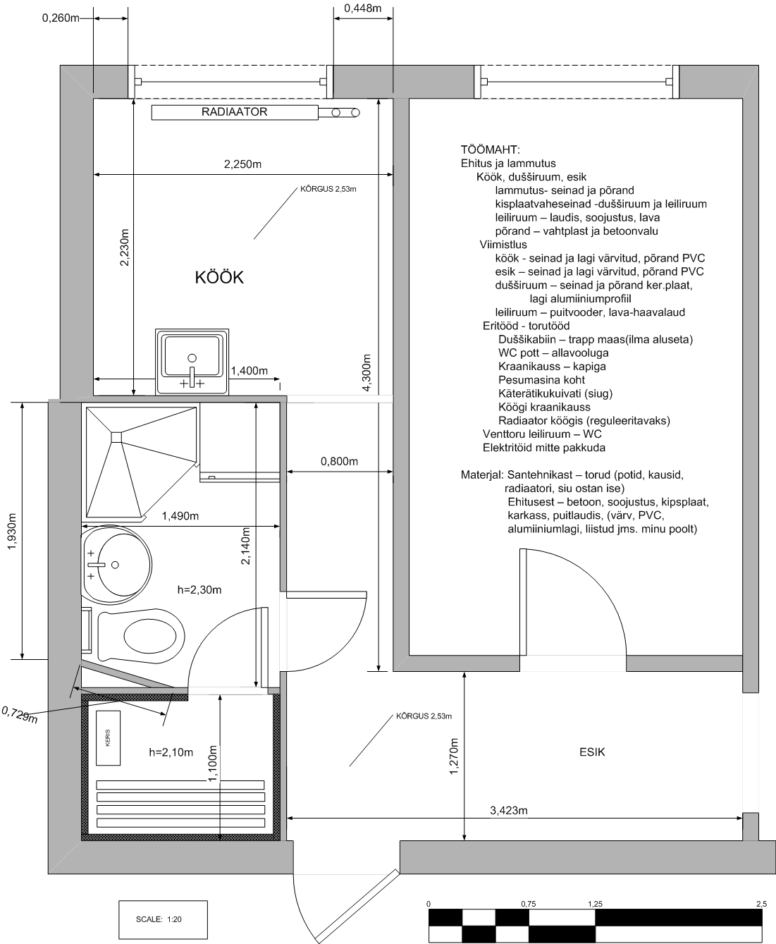
Paneelelamu köögi, esiku ja dušširuumi remont. Vanade seinte ja põrandate lammutus, uute ehitamine, viimistlus, torutööd. Vaata pildilt!

Pildid, video ja failid

Hanke korraldaja: eraisik ID820

Pakkumised

Pakkumisi kokku: 1

Ettevõte Summa Käibemaks Lisatud Vestlus
Kasutaja ikoon ID766
Pakkuja profiil Väike nool paremale
862,8€ Ei sisalda Ei sisalda 06.03.2006 Vestlus (0)

Pakkumise kirjeldus:

Hind sisaldab ainult tööraha!

Küsimused hanke korraldajale

Küsimus: private ID89   05.03.2006 10:08
Oleme huvitatud, kas tööd näha ka saab?

Teavita reeglite rikkumisest

Korraldaja vastus: 30.04.2026 13:19

Saab ikka. Helistage teisipäevast (7.03) tel. 5055388 ja lepime kokku

Teavita reeglite rikkumisest

Küsimus: private ID685   05.03.2006 11:52
palun võtke meiega ühendust(56 225413)et tulla vaatama ja teha teile korralik ja konkreetene pakkumine

Teavita reeglite rikkumisest

Korraldaja vastus:
Hanke korraldaja ei ole küsimusele veel vastanud

Lisa küsimus

Lisa küsimus

Minu pakkumine

Reeglid

Pakkumise kirjelduse väli on mõeldud pakkumise detailsemaks lahti kirjutamiseks. Pikema teksti mugavaks sisestamiseks klikkige kasti paremal ülaservas oleval ikoonil.
Pakkumist tehes on keelatud postitada enda kontaktandmeid (nimi, telefon, aadress jne). Me jälgime ja analüüsime pakkumisi, et vältida pettuseid ja reeglite rikkumisi.
Rikkumise puhul kasutajakonto blokeeritakse.

 

Vanemad teated:

Vaata kõiki

Sellel veebilehel kasutatakse küpsiseid. Kasutamist jätkates nõustute küpsiste kasutamisega.

Sulge
 
Minu pakkumine

Reeglid

Pakkumise kirjelduse väli on mõeldud pakkumise detailsemaks lahti kirjutamiseks. Pikema teksti mugavaks sisestamiseks klikkige kasti paremal ülaservas oleval ikoonil.
Pakkumist tehes on keelatud postitada enda kontaktandmeid (nimi, telefon, aadress jne). Me jälgime ja analüüsime pakkumisi, et vältida pettuseid ja reeglite rikkumisi.
Rikkumise puhul kasutajakonto blokeeritakse.