+ Lisa oma töö      

Otsid ehitajat "Eramu ehitus" valdkonnast?

Parima pakkumise ja teostaja leidmiseks lisa oma töö.

Hange on lõppenud!

Võitjaks osutus kasutaja ID 35417

Majaehitus Peetris Tallinnas

ID 32101

6043 vaatamist

Prindi

  • check Pakkumiste tegemine
    kuni 21.01.2015
  • check Võitja valik kuni
    28.01.2015
  • 3 Töö teostamine
    ja hinnang
Hanke lõpp: K, 21. jaanuar, 2015
Maakond: Harjumaa
Muu asula: Peetri
Tööde algus: K, 01. aprill, 2015 (Soovituslik)
Tööde lõpp: K, 30. september, 2015 (Soovituslik)
Ehitusmaterjalid: Töö tellija poolt

Töö sisu

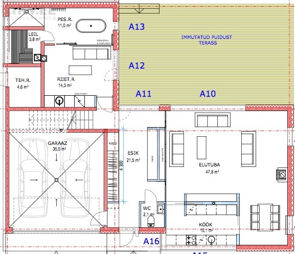
Elamu on 2-korruseline, lamekatusega, ilma keldrita ehitis üldpinnaga 237,7 m2. Majal peaks olema kivimaja ja küte gaasiga- trass krundil. Põrandaküte mõlemal korrusel, igas toas oleks võimalus temperatuuri reguleerida. Majal oleks esimesel korrusel ka kamin.

Soov on saada majakarbi hinda ja kõrvale võiks panna orienteeruva kogu paketi hind. Kommunikatsioonid koos liitumistega krundi olemas.

Hankes palun osaleda omaala spetsialistidel!

Küsimuste tekkimisel vastan neile meelsasti.

Pildid, video ja failid

Hanke korraldaja: eraisik ID8045

Pakkumised

Pakkumisi kokku: 13

Ettevõte Summa Käibemaks Lisatud Vestlus
Kasutaja ikoon ID30805
Pakkuja profiil Väike nool paremale
14€ Sisaldab KM Sisaldab KM 15.01.2015 Vestlus (0)

Pakkumise kirjeldus:

Tegemist väikefirmaga. Tunni hind, ajakulu ei oska õelda. Töötan üksi. Hinnas on ka käive 20 %.
Töö joonise järgi.
Ettemaksu soovime 40 % pandud, sest midagi pidi panema. Ettemaks kokkuleppel, mis kajastub ka lepingus.
Suurtehnika võimalus puudub. Seega peaks vundamendi kraav olema valmis kaevatud. Pinnase tihendaja rendist mis läheks summale ... Rohkem

Kasutaja ikoon ID23416
Pakkuja profiil Väike nool paremale
900€ Ei sisalda Ei sisalda 15.01.2015 Vestlus (0)

Pakkumise kirjeldus:

900 - 1100 EUR/m2 nullist kuni "võtmed kätte" koos materjalidega. Hind sõltub ka eriosadest (vent, küte, elekter).

Kasutaja ikoon ID36589
Pakkuja profiil Väike nool paremale
98 450€ Ei sisalda Ei sisalda 15.01.2015 Vestlus (0)

Pakkumise kirjeldus:

Oleme 21 aastat ehitusturul tegutsev ettevõte. Ehitanud eramuid nii eestis kui soomes. Meie meeskonnas töötavad kõrgharidust omavad ehitusinsenerid.
Majakarbi hind on koos katusetööde ja aluspõrandatega, ei ole arvestatud fassaadi süsteemi. Kogu maja võtmed kätte hind peaks orjenteeruvalt kujunema 187000€. Hinda võib tõsta kallim siseviimistl ... Rohkem

Kasutaja ikoon ID27183
Pakkuja profiil Väike nool paremale
48 000€ Ei sisalda Ei sisalda 16.01.2015 Vestlus (0)

Pakkumise kirjeldus:

Tere !
Meie hind on 48.000 eurot
Töid teostame kvaliteetselt ja ôigeaegselt.

Lugupidamisega

Kasutaja ikoon ID37480
Pakkuja profiil Väike nool paremale
87 650€ Ei sisalda Ei sisalda 20.01.2015 Vestlus (0)

Pakkumise kirjeldus:

seinad 300 aeroc ,100mm soojustust ,krohv,aknad puit kelasy,monoliitne vahelagi 200mm.endal analoogne maja seega tean täpselt palju majakarp maksab.edu

Kasutaja ikoon ID37565
Pakkuja profiil Väike nool paremale
47 000€ Ei sisalda Ei sisalda 21.01.2015 Vestlus (0)

Pakkumise kirjeldus:

Tehtud analoogse ehituse järgi.

Kasutaja ikoon ID36936
Pakkuja profiil Väike nool paremale
50 000€ Ei sisalda Ei sisalda 21.01.2015 Vestlus (0)

Pakkumise kirjeldus:

Tere!Majakarbi ehitus ilma viimistluseta ca 50 000,00. Viimistlus 10000-15000, oleneb materjalidest ja mida täpselt soovitakse.Meie firma vanus 14 aastat. Meeldivat koostööd soovides.

Kasutaja ikoon ID17608
Pakkuja profiil Väike nool paremale
46 000€ Sisaldab KM Sisaldab KM 21.01.2015 Vestlus (0)

Pakkumise kirjeldus:

Tere. Pakkumine siis tehtud vastavalt hanke kirjeldusele ehk maja karbile. Sisaldab ainult töötasu. Materjalidega koos 102 000 €. Täpse pakkumise saab pärast objekti ja projektiga tutvumist. Töö lepinguga. Kõiki töid teostavad omaala asjatundjad. Parimat! Mihkel

Kasutaja ikoon ID33664
Pakkuja profiil Väike nool paremale
38 000€ Ei sisalda Ei sisalda 21.01.2015 Vestlus (0)

Pakkumise kirjeldus:

Garantii.

Kasutaja ikoon ID35118
Pakkuja profiil Väike nool paremale
84 528€ Ikoon kell Sisaldab KM Sisaldab KM 21.01.2015 Vestlus (0)

Pakkumise kirjeldus:

A energiaklass! 40 kw/h m2 kohta, reaalselt Soomes tarbimistepõhiselt motooritud tulemus.


Kahepoolse soojustusega EPS plokkidest raudbetoon seinaelement.

EPS (vahtpolüstüreen) plokkidest 440mm Soojustatud välisseinapaneel koosneb:

sisekiht vahtpolüstüreen 100mm ja väliskiht vahtpolüstüreen 200mm , mille vahele jääb kandev raudbetoonkiht ... Rohkem

Kasutaja ikoon ID8356
Pakkuja profiil Väike nool paremale
585€ Ei sisalda Ei sisalda 21.01.2015 Vestlus (0)

Pakkumise kirjeldus:

Ilma eritöödeta ja siseviimistluseta väljastpoolt valmis hoone karbi 1 m2 hind.
Soovi korral saab meilt tellida ka valmis ehituse.

Kasutaja ikoon ID31457
Pakkuja profiil Väike nool paremale
69 400€ Sisaldab KM Sisaldab KM 21.01.2015 Vestlus (0)

Pakkumise kirjeldus:

Oleme rahvusvaheline ehitusturul litsentsi omav ja tegutsev ettevõte. Ehitanud eramuid nii Eestis kui Soomes, Taanis, Rootsis. Majale anname kuni 6 aastat ehituslikku garantiid. Ehitustöödega alustame koheselt pärast lepingu allkirjastamist. Majakarbi hinna oleme arvestanud musta karbi näol. Siseviimistluse osas oleneb tööde tellija kvaliteedi soo ... Rohkem

Kasutaja ikoon ID35417
Pakkuja profiil Väike nool paremale
45 500€ Ei sisalda Ei sisalda 21.01.2015 Vestlus (0)

Pakkumise kirjeldus:

Tere.
Täpset tööraha hinda on raske välja arvutada kuna infot on vähe aga sinna kanti peaks jääma.
Sellise maja võtmedkätte hind on ligikaudu 145000-160000 eurot +km koos materjaliga.
Jään teie tagasisidet ootama.

Lugupidamisega...

Küsimused hanke korraldajale

Küsimus: private ID34012   15.01.2015 12:46
Kas seletuskirja ka on ?

Teavita reeglite rikkumisest

Korraldaja vastus: 15.01.2015 12:56

Kahjuks mitte, kõik mis salvestatud, see on ka kogu info.

Teavita reeglite rikkumisest

Küsimus: private ID37480   17.01.2015 11:04
tere.kas karbile aknad uksed ka ette kui ja siis millisest materjalist,kas on mingeid eelistusi müüritise materjalil,fibo,aeroc,columbia,jne.kas ehitus saab varem alustada.

Teavita reeglite rikkumisest

Korraldaja vastus: 19.01.2015 19:33

Tere,<br />
hetkel eeliseid ei ole, kuna soovime orienteeruvat hinda ehituseks.<br />
Tänud.

Teavita reeglite rikkumisest

Lisa küsimus

Lisa küsimus

Minu pakkumine

Reeglid

Pakkumise kirjelduse väli on mõeldud pakkumise detailsemaks lahti kirjutamiseks. Pikema teksti mugavaks sisestamiseks klikkige kasti paremal ülaservas oleval ikoonil.
Pakkumist tehes on keelatud postitada enda kontaktandmeid (nimi, telefon, aadress jne). Me jälgime ja analüüsime pakkumisi, et vältida pettuseid ja reeglite rikkumisi.
Rikkumise puhul kasutajakonto blokeeritakse.

 

Teisi töid samas valdkonnas

Valdkonnas "Eramu ehitus" on 2 aktiivset tööd

Eramu ehitus

Asukoht: Viljandimaa, Viljandi
Aega jäänud: 5p 12h
Tehtud pakkumisi: 1

no-img Pilt puudub

Eramu ehitus. Karp kinni.

Asukoht: Lääne-Virumaa
Aega jäänud: 3p 12h
Tehtud pakkumisi: 0

Vanemad teated:

Vaata kõiki

Sellel veebilehel kasutatakse küpsiseid. Kasutamist jätkates nõustute küpsiste kasutamisega.

Sulge
 
Minu pakkumine

Reeglid

Pakkumise kirjelduse väli on mõeldud pakkumise detailsemaks lahti kirjutamiseks. Pikema teksti mugavaks sisestamiseks klikkige kasti paremal ülaservas oleval ikoonil.
Pakkumist tehes on keelatud postitada enda kontaktandmeid (nimi, telefon, aadress jne). Me jälgime ja analüüsime pakkumisi, et vältida pettuseid ja reeglite rikkumisi.
Rikkumise puhul kasutajakonto blokeeritakse.