+ Lisa oma töö      

Otsid ehitajat "Torutööd" valdkonnast?

Parima pakkumise ja teostaja leidmiseks lisa oma töö.

Soklikorruse põranda valamine + põrandakütte paigaldus

ID 32115

2077 vaatamist

Prindi

  • check Pakkumiste tegemine
    kuni 03.02.2015
  • check Võitja valik kuni
    10.02.2015
  • 3 Töö teostamine
    ja hinnang
Hanke lõpp: T, 3. veebruar, 2015
Maakond: Harjumaa
Linn: Tallinn
Tööde algus: E, 26. jaanuar, 2015 (Soovituslik)
Tööde lõpp: L, 28. veebruar, 2015 (Soovituslik)
Ehitusmaterjalid: Töö tegija poolt

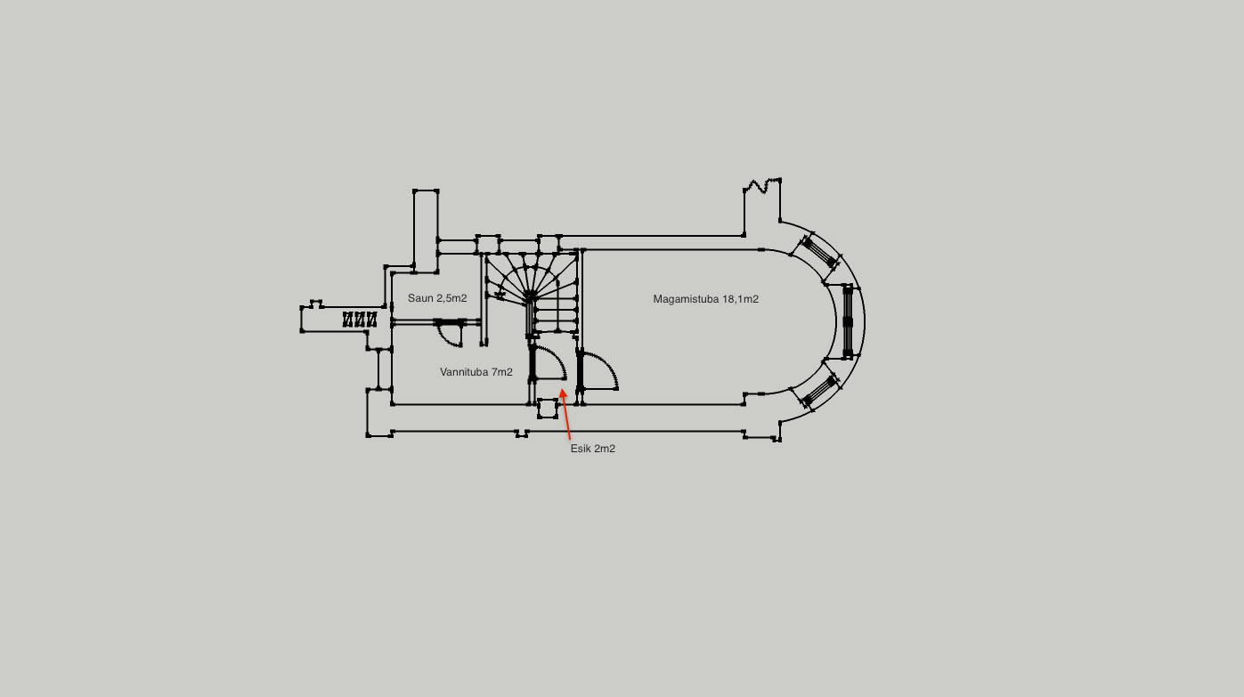
Töö sisu

1938 aastal valmistatud ning nüüdseks renoveeritud kivimajal on tarvis soklikorrusel:
1) teostada aluspinna ettevalmistus betooni valamiseks ning torutöödeks (tõen. vaja mingil määral pinnast/kruusa eemaldada)
2) EPS-100 20cm
3) radoonitõkkekile (450g/m2)
4) niiskustõke
5) armatuurvõrk 6mm
6) Betoon C25/30
7) Paigaldada veetorud (2 kraanikaussi, vann/dušš, wc, käterätihoidja)
8) Paigaldada kanalisatsioon (s.h. 3 trappi, sauna jaoks kuivtrapp)
9) vesipõrandaküte kogu soklikorruse ulatuses (keskkütte baasil):
- 3 kontuuri, iga kontuuri jaoks
- veepump/ajami (4 kontuuri tarbeks, tulevikus v.b. lisandub üks kontuur ülakorrusel)
- torud andurite tarbeks (jäävad esimeses etapis paigaldamata, hiljem ühenduvad "targa kodu" süsteemi)
10) vannitoa ulatuses vesipõrandaküte dubleerida elektripõrandaküttega (saun, magamistuba ja esik jäävad välja)
11) betooni sisse paigaladada kõrid + nende sees elektri- ja kom. kaablid (2 kohas)

Pildid, video ja failid

Hanke korraldaja: eraisik ID36663

Pakkumised

Pakkumisi kokku: 0

Küsimused hanke korraldajale

Hanke korraldajale ei ole veel küsimusi esitatud.

Lisa küsimus

Lisa küsimus

Minu pakkumine

Reeglid

Pakkumise kirjelduse väli on mõeldud pakkumise detailsemaks lahti kirjutamiseks. Pikema teksti mugavaks sisestamiseks klikkige kasti paremal ülaservas oleval ikoonil.
Pakkumist tehes on keelatud postitada enda kontaktandmeid (nimi, telefon, aadress jne). Me jälgime ja analüüsime pakkumisi, et vältida pettuseid ja reeglite rikkumisi.
Rikkumise puhul kasutajakonto blokeeritakse.

 

Teisi töid samas valdkonnas

Valdkonnas "Torutööd" on 2 aktiivset tööd

Kaarhalli soojaku torustiku renoveerimine

Asukoht: Harjumaa, Saue
Aega jäänud: 9h 30 min
Tehtud pakkumisi: 4

Köögi äravoolu paigaldus

Asukoht: Harjumaa, Tallinn
Aega jäänud: 4p 9h
Tehtud pakkumisi: 2

Vanemad teated:

Vaata kõiki

Sellel veebilehel kasutatakse küpsiseid. Kasutamist jätkates nõustute küpsiste kasutamisega.

Sulge
 
Minu pakkumine

Reeglid

Pakkumise kirjelduse väli on mõeldud pakkumise detailsemaks lahti kirjutamiseks. Pikema teksti mugavaks sisestamiseks klikkige kasti paremal ülaservas oleval ikoonil.
Pakkumist tehes on keelatud postitada enda kontaktandmeid (nimi, telefon, aadress jne). Me jälgime ja analüüsime pakkumisi, et vältida pettuseid ja reeglite rikkumisi.
Rikkumise puhul kasutajakonto blokeeritakse.