+ Lisa oma töö      

Otsid ehitajat "Korterite remont" valdkonnast?

Parima pakkumise ja teostaja leidmiseks lisa oma töö.

Korteri renoveerimine

ID 32432

8443 vaatamist

Prindi

  • check Pakkumiste tegemine
    kuni 02.04.2015
  • check Võitja valik kuni
    24.04.2015
  • 3 Töö teostamine
    ja hinnang
Hanke lõpp: N, 2. aprill, 2015
Maakond: Pärnumaa
Linn: Pärnu
Tööde algus: E, 01. juuni, 2015 (Soovituslik)
Tööde lõpp: L, 15. august, 2015 (Soovituslik)
Ehitusmaterjalid: Töö tegija poolt

Töö sisu

Pärnus Tallinna mnt. 2 majas 2 toalise Hruštšovka korteri kapitaalremont. Elektrijuhtmestik, torustik, akende vahetus ja maalritööd. Soov suve lõpuks töödega valmis saada!

Pildid, video ja failid

Hanke korraldaja: eraisik ID37934

Pakkumised

Pakkumisi kokku: 7

Ettevõte Summa Käibemaks Lisatud Vestlus
Kasutaja ikoon ID36653
Pakkuja profiil Väike nool paremale
10 000€ Ei sisalda Ei sisalda 03.03.2015 Vestlus (0)

Pakkumise kirjeldus:

Tere!
Hind on umbkaudne kuna hankes vähe informatsiooni,
sooviks tulla kohapeale hindama et teha korrektne pakkumine.
Ettevõte ei saa vestlust alustada ega korraldaja kontakte osta.
Parimat: Sander

Kasutaja ikoon ID38007
Pakkuja profiil Väike nool paremale
10 500€ Ei sisalda Ei sisalda 09.03.2015 Vestlus (0)

Pakkumise kirjeldus:

Meiepoolne hinnapakkumime on siis 10500 ja materjalid meiepoolsed.
ettemaksuks 20 % hinnast .

Kasutaja ikoon ID35390
Pakkuja profiil Väike nool paremale
10 000€ Sisaldab KM Sisaldab KM 12.03.2015 Vestlus (0)
Kasutaja ikoon ID33436
Pakkuja profiil Väike nool paremale
9 800€ Ei sisalda Ei sisalda 18.03.2015 Vestlus (0)

Pakkumise kirjeldus:

Tere,Pakkumine soovitud tööle.Kvaliteetne ja kiire teostamine.Parimate soovidega Tiit.

Kasutaja ikoon ID38184
Pakkuja profiil Väike nool paremale
9 240€ Sisaldab KM Sisaldab KM 23.03.2015 Vestlus (0)

Pakkumise kirjeldus:

Täpsema hinna saab kohapeal täpsustada,kui on ülevaate teinud korteris.

Kasutaja ikoon ID28223
Pakkuja profiil Väike nool paremale
7 480€ Ei sisalda Ei sisalda 25.03.2015 Vestlus (0)

Pakkumise kirjeldus:

Korteri kapremont,hinnas elektri-,toru-ja viimistlustööd.
Hind sisaldab alus-ja abimaterjalide maksumust.
Tellija hankida jääb plaadid,laminaat,san-tehnika,pistikud-lülitid,siseuksed.
Lisamakse ei lisandu kuna ei ole KM kohuslane.
Meeldivat koostööd soovides.Lugupidamisega

Kasutaja ikoon ID35553
Pakkuja profiil Väike nool paremale
9 270€ Ei sisalda Ei sisalda 28.03.2015 Vestlus (0)

Küsimused hanke korraldajale

Küsimus: private ID37878   02.03.2015 16:06
Tervitus,kas on võimalik oma silmaga vaatama tulla?suht raske öelda sedasi.

Teavita reeglite rikkumisest

Korraldaja vastus: 03.03.2015 10:34

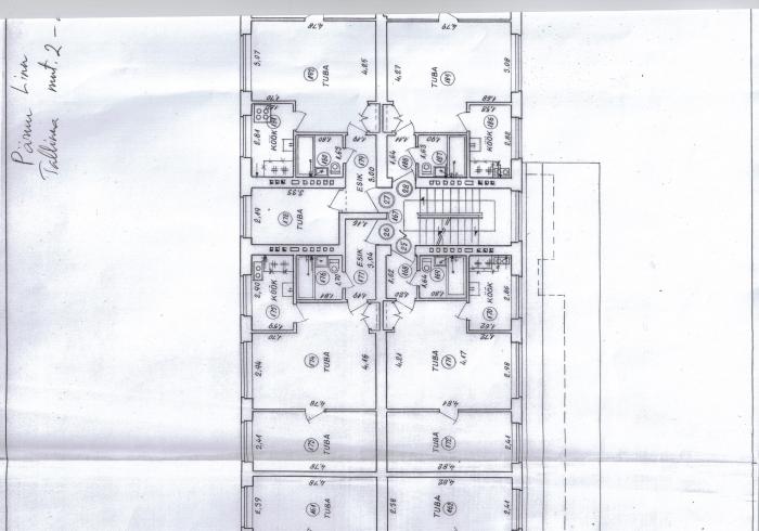
Lisasin hankele korteri invertari plaanid. Korter on nr. 25. Sealt peaks saama mõõdud kätte. Plaan teostada kap.remont. s.t. köögi vaheseina lammutus, elektrisüsteemide vahetus, akende/uste vahetus. San.sõlmede vahetus. Laminaat parkett, seinte värvimine. Vannitoas plaatimine. Plaan vannituppa panna vann. WC-pott olemas. Kindlasti saaks tulla ka kohapeale, kuid ootan enne paar nädalat kuni kõik pakkujad on huvi üles näidanud. Hetkel korteris üürnik ning seetõttu koheselt vähe keeruline vaatama tulla.

Teavita reeglite rikkumisest

Küsimus: private ID35521   02.03.2015 17:16
kui suur on korter? Värvitav pinna suurus? Palju aknaid? <br />
Vähe infot.

Teavita reeglite rikkumisest

Korraldaja vastus: 03.03.2015 10:35

Lisasin hankele korteri invertariplaanid, kust saab mõõdud kätte. Korter on nr. 25.

Teavita reeglite rikkumisest

Lisa küsimus

Lisa küsimus

Minu pakkumine

Reeglid

Pakkumise kirjelduse väli on mõeldud pakkumise detailsemaks lahti kirjutamiseks. Pikema teksti mugavaks sisestamiseks klikkige kasti paremal ülaservas oleval ikoonil.
Pakkumist tehes on keelatud postitada enda kontaktandmeid (nimi, telefon, aadress jne). Me jälgime ja analüüsime pakkumisi, et vältida pettuseid ja reeglite rikkumisi.
Rikkumise puhul kasutajakonto blokeeritakse.

 

Teisi töid samas valdkonnas

Valdkonnas "Korterite remont" on 2 aktiivset tööd

Vannitoa lampide paigaldus + erinevad pisiparandused korteris

Asukoht: Harjumaa, Tallinn
Aega jäänud: 1p 10h
Tehtud pakkumisi: 3

Korteri kapitaalremont ja ümberehitus (täielik siseviimistlus + elektritööd)

Asukoht: Järvamaa
Aega jäänud: 12p 10h
Tehtud pakkumisi: 0

Vanemad teated:

Vaata kõiki

Sellel veebilehel kasutatakse küpsiseid. Kasutamist jätkates nõustute küpsiste kasutamisega.

Sulge
 
Minu pakkumine

Reeglid

Pakkumise kirjelduse väli on mõeldud pakkumise detailsemaks lahti kirjutamiseks. Pikema teksti mugavaks sisestamiseks klikkige kasti paremal ülaservas oleval ikoonil.
Pakkumist tehes on keelatud postitada enda kontaktandmeid (nimi, telefon, aadress jne). Me jälgime ja analüüsime pakkumisi, et vältida pettuseid ja reeglite rikkumisi.
Rikkumise puhul kasutajakonto blokeeritakse.