+ Lisa oma töö      

Otsid ehitajat "Vundamenditööd" valdkonnast?

Parima pakkumise ja teostaja leidmiseks lisa oma töö.

Lintvundament+kelder+vundamendiplaat

ID 32810

1144 vaatamist

Prindi

  • check Pakkumiste tegemine
    kuni 20.04.2015
  • check Võitja valik kuni
    27.04.2015
  • 3 Töö teostamine
    ja hinnang
Hanke lõpp: E, 20. aprill, 2015
Maakond: Põlvamaa
Muu asula: Vissi küla
Tööde algus: E, 18. mai, 2015 (Soovituslik)
Tööde lõpp: N, 18. juuni, 2015 (Soovituslik)
Ehitusmaterjalid: Töö tellija poolt

Töö sisu

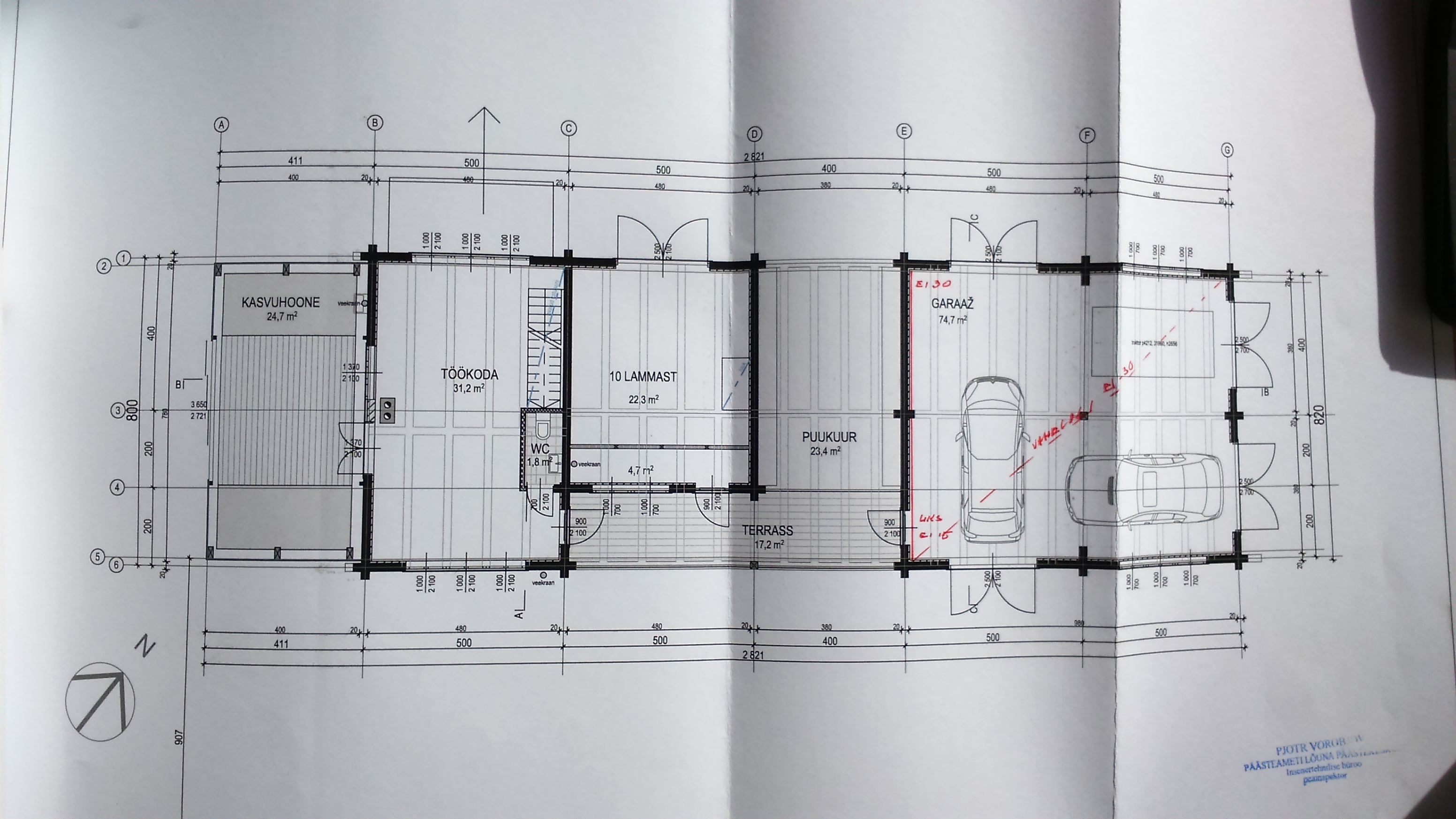
Rajatavale abi- ja majandushoone lintvundamendi ja keldri ehitus.Vundamendi mõõdud on 24 140 X 8200 mm.Rajatava kelder tuleb töötoa alla ja on mõõtudes 8000 X 5000 X 2400.

Teostatavad tööd:

1.Pinnase eemaldamine vajalikul määral

2.Vundamendi ja keldri aluse drenaazi paigaldus

3.Tagasitäide kild+liiv

4.Keldri põhja soojustus+armeerimine+ valamine

5.Keldriseinte ehitus 2400 x 600 x 300 vundamendi plokist koos armeerimise ja seguga

kinnitamine.Keldri seinte hüdroisolatsioon+ 150 mm soojustus.

6.Ülejäänud vundamendile aluslindi armeerimine + valu

7.Vundamendi plokkide 2400 x 600 x300 paigaldus koos armeerimise ja seguga kinnitamine

8.Vajalik tagasitäide kild+ kruus

9.Põranda soojustamine, armeerimine, vajalike kommunikatsioonide paigaldus.

NB!!! Põrandaplaadi ehitusel arvestada et sellest moodustuks ka keldri lagi!!!

10. Põranda plaadi valu 100 mm, keldri lagi 200 mm.

11.Vundamendi soojustus 100 mm penoplast + hüdroisolatsioon

12. Vundamendi ümbruse tagasitäide ja tihendamine.

Materjalid+ kaeve ja veotehnika tellija poolne.Hinnapakkumises välja tuua tööraha ja

orienteeruv aeg normaalsete ilmastikutingimuste puhul.

Objekt asub Tartust 25 kilomeetri kaugusel, lähim suurem asula Kambja.

Pildid, video ja failid

Hanke korraldaja: ettevõte ID4097

Pakkumised

Pakkumisi kokku: 0

Küsimused hanke korraldajale

Hanke korraldajale ei ole veel küsimusi esitatud.

Lisa küsimus

Lisa küsimus

Minu pakkumine

Reeglid

Pakkumise kirjelduse väli on mõeldud pakkumise detailsemaks lahti kirjutamiseks. Pikema teksti mugavaks sisestamiseks klikkige kasti paremal ülaservas oleval ikoonil.
Pakkumist tehes on keelatud postitada enda kontaktandmeid (nimi, telefon, aadress jne). Me jälgime ja analüüsime pakkumisi, et vältida pettuseid ja reeglite rikkumisi.
Rikkumise puhul kasutajakonto blokeeritakse.

 

Teisi töid samas valdkonnas

Valdkonnas "Vundamenditööd" on 5 aktiivset tööd

no-img Pilt puudub

Plaatvundament koos kommunikatsioonidega

Asukoht: Harjumaa
Aega jäänud: 5p 2h
Tehtud pakkumisi: 2

Vundamendi ehitus

Asukoht: Harjumaa, Ülgase
Aega jäänud: 5p 2h
Tehtud pakkumisi: 1

Vanemad teated:

Vaata kõiki

Sellel veebilehel kasutatakse küpsiseid. Kasutamist jätkates nõustute küpsiste kasutamisega.

Sulge
 
Minu pakkumine

Reeglid

Pakkumise kirjelduse väli on mõeldud pakkumise detailsemaks lahti kirjutamiseks. Pikema teksti mugavaks sisestamiseks klikkige kasti paremal ülaservas oleval ikoonil.
Pakkumist tehes on keelatud postitada enda kontaktandmeid (nimi, telefon, aadress jne). Me jälgime ja analüüsime pakkumisi, et vältida pettuseid ja reeglite rikkumisi.
Rikkumise puhul kasutajakonto blokeeritakse.