+ Lisa oma töö      

Otsid ehitajat "Siseviimistlustööd" valdkonnast?

Parima pakkumise ja teostaja leidmiseks lisa oma töö.

Eramu siseviimistlustööd

ID 33001

3322 vaatamist

Prindi

  • check Pakkumiste tegemine
    kuni 03.05.2015
  • check Võitja valik kuni
    10.05.2015
  • 3 Töö teostamine
    ja hinnang
Hanke lõpp: P, 3. mai, 2015
Maakond: Harjumaa
Muu asula: Rae vald
Tööde algus: P, 10. mai, 2015 (Soovituslik)
Tööde lõpp: P, 24. mai, 2015 (Soovituslik)
Ehitusmaterjalid: Töö tellija poolt

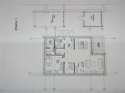
Töö sisu

2007 aastal valminud maja kõikide seinte ja lagede värvimine (vajadusel pahteldamine), seintest u 60% värv ja u 40% tapeet. Põrandaliistude paigaldus, siseuste eemaldus ning uute paigaldus (8tk), vannitoa põrandaplaatide eemaldus ning uute paigaldus(põrandapind ca 15m2). Uue sanitaartehnika paigaldus 2* wc pott, 2* kraanikauss.
Pakkumises palun välja tuua eraldi
- seinte ja lagede viimistlus
- põranda liistud ja uste paigaldus
- vannitoa tööd

Palun märkida ka tööde kestus ning millal oleks võimalik alustada.

NB! Soovin pakkumisi vaid tegijatelt kes saavad esitada arve ja pakuvad ka garantiid.

Pildid, video ja failid

Hanke korraldaja: eraisik ID38535

Pakkumised

Pakkumisi kokku: 3

Ettevõte Summa Käibemaks Lisatud Vestlus
Kasutaja ikoon ID38405
Pakkuja profiil Väike nool paremale
5 900€ Ei sisalda Ei sisalda 03.05.2015 Vestlus (0)

Pakkumise kirjeldus:

Pakkumine tööde rahale, materjalid teie poolt kuid võime abiks olla hankimisel

Kasutaja ikoon ID18332
Pakkuja profiil Väike nool paremale
5 690€ Ei sisalda Ei sisalda 03.05.2015 Vestlus (0)

Pakkumise kirjeldus:

Töö kiire ja korralik.Meeldivat koostööd soovides

Kasutaja ikoon ID35973
Pakkuja profiil Väike nool paremale
5 500€ Ei sisalda Ei sisalda 03.05.2015 Vestlus (0)

Pakkumise kirjeldus:

Tere, pakkumine sisaldab alljärgnevat; täismahus Teie poolt loetletud tööde teostamist (täpne pakkumine pärast objektiga tutvumist). Hind sisaldab CAR kindlustust. Ehitus-ja garantiiperioodil ehk ehituse koguriskikindlustus. Muud märkused; Tellijate soovitused, referentsid ja korrektse hinnapakkumise esitame hiljem. Loodame, et meie pakkumine sobib Te ... Rohkem

Küsimused hanke korraldajale

Küsimus: private ID19261   26.04.2015 14:27
Tere! Kas saan õigesti aru, et käesolev hange on sama, mis mõned päevad tagasi oli välja kuulutatud ja praegusest hankest erineb ainult värvitud pindade ja tapeedi all olevate m2-te suhtest? Tänan vastamast!

Teavita reeglite rikkumisest

Korraldaja vastus: 26.04.2015 14:49

Tere, see on sama hange jah, vaatsin, et olin selle kogemata valesse alagrupppi postitanud. Postitasin nüüd õigesse lootes enamat tagasisidet.<br />
Lgp

Teavita reeglite rikkumisest

Küsimus: private ID38148   30.04.2015 23:54
Tundub huvitava küll aga mõõdud, kui pole neid olemas siis mille järgi ma peaks selle pakkumise tegema... Lae kõrgus? Kui maja ehitati 2007a siis kindlasti on infot kui palju liistude jooksvaid meetreid oli. Ehk kas saaks seinadest ja lagedest mõned pildid? Parimat soovides, Eerik

Teavita reeglite rikkumisest

Korraldaja vastus:
Hanke korraldaja ei ole küsimusele veel vastanud

Küsimus: private ID35973   02.05.2015 21:33
Tere,<br />
<br />
fotod pole loetavad oleks vaja teada ruumide kõrguseid ja seinte pikkuseid, et arvestada välja maht mille alusel saaks pakkumise teha.<br />
<br />
Abiks oleks ka parema kvaliteediga projekti foto kus oleks siis võimalik see maht ise arvutada.<br />
<br />
parimate soovidega<br />
Ehitajad<br />

Teavita reeglite rikkumisest

Korraldaja vastus:
Hanke korraldaja ei ole küsimusele veel vastanud

Lisa küsimus

Lisa küsimus

Minu pakkumine

Reeglid

Pakkumise kirjelduse väli on mõeldud pakkumise detailsemaks lahti kirjutamiseks. Pikema teksti mugavaks sisestamiseks klikkige kasti paremal ülaservas oleval ikoonil.
Pakkumist tehes on keelatud postitada enda kontaktandmeid (nimi, telefon, aadress jne). Me jälgime ja analüüsime pakkumisi, et vältida pettuseid ja reeglite rikkumisi.
Rikkumise puhul kasutajakonto blokeeritakse.

 

Teisi töid samas valdkonnas

Valdkonnas "Siseviimistlustööd" on 32 aktiivset tööd

Trepikoja värvimine

Asukoht: Harjumaa, Tallinn
Aega jäänud: 4h 39 min
Tehtud pakkumisi: 6

Ventilatsioonitoru vahetus, integreeritud nõudepesumasina ja pliidiplaadi vahetus

Asukoht: Tartumaa, Tartu
Aega jäänud: 4h 39 min
Tehtud pakkumisi: 5

Vanemad teated:

Vaata kõiki

Sellel veebilehel kasutatakse küpsiseid. Kasutamist jätkates nõustute küpsiste kasutamisega.

Sulge
 
Minu pakkumine

Reeglid

Pakkumise kirjelduse väli on mõeldud pakkumise detailsemaks lahti kirjutamiseks. Pikema teksti mugavaks sisestamiseks klikkige kasti paremal ülaservas oleval ikoonil.
Pakkumist tehes on keelatud postitada enda kontaktandmeid (nimi, telefon, aadress jne). Me jälgime ja analüüsime pakkumisi, et vältida pettuseid ja reeglite rikkumisi.
Rikkumise puhul kasutajakonto blokeeritakse.