+ Lisa oma töö      

Otsid ehitajat "Eramu ehitus" valdkonnast?

Parima pakkumise ja teostaja leidmiseks lisa oma töö.

Eramu juurdeehitus (garaazipealne terrass kinni toaks ca 28m2) ja krohvitud fassaadi värvimine

ID 33060

4813 vaatamist

Prindi

  • check Pakkumiste tegemine
    kuni 13.05.2015
  • check Võitja valik kuni
    20.05.2015
  • 3 Töö teostamine
    ja hinnang
Hanke lõpp: K, 13. mai, 2015
Maakond: Harjumaa
Muu asula: Viimsi vald
Tööde algus: K, 29. aprill, 2015 (Soovituslik)
Tööde lõpp: T, 30. juuni, 2015 (Soovituslik)
Ehitusmaterjalid: Töö tellija poolt

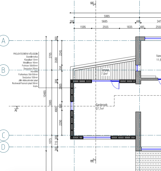
Töö sisu

Garaazipealse terrassi ümberehitus garderoobiks. Seinad puitkarkassil või laduda osaliselt 200 fibost ning osaliselt puitkatkassil. Katus lahendada fermidega ning fassaad 200 peno ja krohv.
Seest seinad värvi alla.
Katus rullmaterjal. Maja ülejäänud krohvitud fassaad vaja värvida.

Pildid, video ja failid

Hanke korraldaja: eraisik ID38597

Pakkumised

Pakkumisi kokku: 11

Ettevõte Summa Käibemaks Lisatud Vestlus
Kasutaja ikoon ID38242
Pakkuja profiil Väike nool paremale
58 000€ Ei sisalda Ei sisalda 30.04.2015 Vestlus (0)
Kasutaja ikoon ID27612
Pakkuja profiil Väike nool paremale
52 555€ Ei sisalda Ei sisalda 04.05.2015 Vestlus (0)

Pakkumise kirjeldus:

Hind sisaldab materjale ja kogu tööd.Ettemaks materjalide jaoks.Parimat.

Kasutaja ikoon ID4459
Pakkuja profiil Väike nool paremale
30 240€ Sisaldab KM Sisaldab KM 07.05.2015 Vestlus (0)

Pakkumise kirjeldus:

Hinnapakkumine tehtud kõikkidele töödele hanke jooniste ja info põhjal puitkarkassil juurdeehitise ehituseks ja maja värvimisele. Töödele garantii 3 aastat. Parimat

Kasutaja ikoon ID29437
Pakkuja profiil Väike nool paremale
23 250€ Ei sisalda Ei sisalda 10.05.2015 Vestlus (0)

Pakkumise kirjeldus:

Tere

Pakkumine tehtud vaid tööle vastavalt hanke kirjeldusele, juurdeehitatud garderoob kuni värvini ja krohvi värvimine, pakkumine ei sisalda materjale ja tellinguid. Hind ei sisalda km-i. Töödele 2.a garantii. LP Meelis

Kasutaja ikoon ID2186
Pakkuja profiil Väike nool paremale
40 155€ Ei sisalda Ei sisalda 12.05.2015 Vestlus (0)

Pakkumise kirjeldus:

FIBO seinad

Kasutaja ikoon ID35417
Pakkuja profiil Väike nool paremale
22 000€ Ei sisalda Ei sisalda 12.05.2015 Vestlus (0)

Pakkumise kirjeldus:

Tere.

Pakumuses ei ole arvestatud materjalidega. Arvestatud juurdeehitus ja fassaadi värvimine.
Tagasisidet ootama jäädes.

Lugupidamisega

Kasutaja ikoon ID8633
Pakkuja profiil Väike nool paremale
25 100€ Ei sisalda Ei sisalda 13.05.2015 Vestlus (0)

Pakkumise kirjeldus:

töö

Kasutaja ikoon ID35973
Pakkuja profiil Väike nool paremale
18 200€ Ei sisalda Ei sisalda 13.05.2015 Vestlus (0)

Pakkumise kirjeldus:

Tere, pakkumine sisaldab alljärgnevat; täismahus Teie poolt loetletud tööde teostamist koos mehhanismidega, (täpne pakkumine pärast objektiga tutvumist). Muud märkused; Tellijate soovitused, referentsid ja korrektse hinnapakkumise esitame hiljem. Loodame, et meie pakkumine sobib Teile ja oleme alati valmis edaspidisteks läbirääkimisteks, et saavut ... Rohkem

Kasutaja ikoon ID38591
Pakkuja profiil Väike nool paremale
19 211€ Sisaldab KM Sisaldab KM 13.05.2015 Vestlus (0)

Pakkumise kirjeldus:

Tere!

Saadame teile hinnapakkumise kus on märgitud kõik tööd, mis joonistel kirjas. Lisatööde korral peaksime leppima kokke eraldi nende tööde hinnad. Samuti on fassaadi värvimine pandud 500m2 aga kuna me ei tea kui suur on pind siis võib tegelik hind tulla väiksem või suurem sõltuvalt m2 arvust.

Kõike head!

Kasutaja ikoon ID10196
Pakkuja profiil Väike nool paremale
24 600€ Ei sisalda Ei sisalda 13.05.2015 Vestlus (0)

Pakkumise kirjeldus:

Tere.
Seinad puitkarkassil 11 700 eur
Seinad osaliselt fibost +puitkargassil 12 900 eur

Kasutaja ikoon ID22308
Pakkuja profiil Väike nool paremale
14 575€ Ei sisalda Ei sisalda 13.05.2015 Vestlus (0)

Pakkumise kirjeldus:

Tere, detailne hinnapakkumine leiate lisast. Tänan

Küsimused hanke korraldajale

Küsimus: private ID29437   03.05.2015 19:15
Materjalid on hanke korraldaja poolt? Kas aknad ja fermid tarnite ka ise? Milline on põrandakonstruksioon betoon või puit? Kas soovite ainult töö hinda?<br />
Lp Meelis

Teavita reeglite rikkumisest

Korraldaja vastus: 04.05.2015 10:01

Tere<br />
<br />
Materjalid tarnin kõik ise. Aknad jõuavad mai lõpuks ning fermid on mõistlik tellida siis, kui on seintega algust tehtud ja täpsed mõõdud teada.<br />
<br />
Põrandakonstruktsioon on hetkel (garaazi katus/lagi) vesmonti puit metall talad mille peal roovitus, osb ja SBS.<br />
SBS vaja maha võtta ning põrand ära rihtida (olemasoleva magamistoa põrandaga samale kõrgusele) ja penoplaatidel põrandaküte, alusmatt ja parkett.<br />
<br />
Ma arvan, et kõige mõistlikum oleks rääkida töö hinnast, kui Teil just materjalide hankimisel väga soodsaid võimalusi pole.<br />
<br />
Hetkel on juurdeehituse teostamiseks 2 erinevat variant i peas. <br />
1. laduda 2 seina üles fibost ning sein mis jookseb üle terrassi teha puitsõrestikul.<br />
2. teha kõik puitsõrestikul.<br />
<br />
Seega vajaksin pakkumist mõlemale variandile.<br />
<br />
Martin<br />
<br />

Teavita reeglite rikkumisest

Küsimus: private ID38591   12.05.2015 13:55
Tere!<br />
<br />
Kas te saaksite üles panna terve maja plaani või saata maja fassaadi m2 arvu, et saaks<br />
värvimise hinda kalkuleerida?<br />
<br />
Priit

Teavita reeglite rikkumisest

Korraldaja vastus:
Hanke korraldaja ei ole küsimusele veel vastanud

Lisa küsimus

Lisa küsimus

Minu pakkumine

Reeglid

Pakkumise kirjelduse väli on mõeldud pakkumise detailsemaks lahti kirjutamiseks. Pikema teksti mugavaks sisestamiseks klikkige kasti paremal ülaservas oleval ikoonil.
Pakkumist tehes on keelatud postitada enda kontaktandmeid (nimi, telefon, aadress jne). Me jälgime ja analüüsime pakkumisi, et vältida pettuseid ja reeglite rikkumisi.
Rikkumise puhul kasutajakonto blokeeritakse.

 

Teisi töid samas valdkonnas

Valdkonnas "Eramu ehitus" on 2 aktiivset tööd

Eramu ehitus

Asukoht: Viljandimaa, Viljandi
Aega jäänud: 5p 12h
Tehtud pakkumisi: 1

no-img Pilt puudub

Eramu ehitus. Karp kinni.

Asukoht: Lääne-Virumaa
Aega jäänud: 3p 12h
Tehtud pakkumisi: 0

Vanemad teated:

Vaata kõiki

Sellel veebilehel kasutatakse küpsiseid. Kasutamist jätkates nõustute küpsiste kasutamisega.

Sulge
 
Minu pakkumine

Reeglid

Pakkumise kirjelduse väli on mõeldud pakkumise detailsemaks lahti kirjutamiseks. Pikema teksti mugavaks sisestamiseks klikkige kasti paremal ülaservas oleval ikoonil.
Pakkumist tehes on keelatud postitada enda kontaktandmeid (nimi, telefon, aadress jne). Me jälgime ja analüüsime pakkumisi, et vältida pettuseid ja reeglite rikkumisi.
Rikkumise puhul kasutajakonto blokeeritakse.