+ Lisa oma töö      

Otsid ehitajat "Vundamenditööd" valdkonnast?

Parima pakkumise ja teostaja leidmiseks lisa oma töö.

Vundamendi ehitus Risti alevikus, Lääne-Nigula Vallas

ID 33079

5621 vaatamist

Prindi

  • check Pakkumiste tegemine
    kuni 16.05.2015
  • check Võitja valik kuni
    28.05.2015
  • 3 Töö teostamine
    ja hinnang
Hanke lõpp: L, 16. mai, 2015
Maakond: Läänemaa
Muu asula: Risti alevik
Tööde algus: E, 01. juuni, 2015 (Soovituslik)
Tööde lõpp: T, 30. juuni, 2015 (Soovituslik)
Ehitusmaterjalid: Töö tegija poolt

Töö sisu

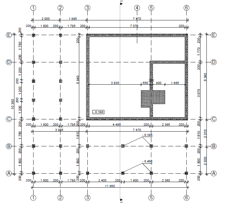
Hoone vundament rajatakse olemasolevale mineraalpinnasele rajamissügavusele 1,1m. Konstruktsioon koosneb monoliitsest r/b 0,2m ja fiboplokkidest 1,1m maa sees. Elamu sokkel 0,4m. Fibo lintide vahele on valatud r/b plaat paksusega 80mm ja see on alt soojustatud 100mm vahtpolüsterooliga.

Krundi asub Jaakna liivakarjääri läheduses ja kinnitul on liivapinnas. Täitematerjal on 300 m kaugusel.

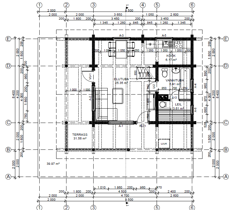
Vundamendi sisse on vaja paigaldada ka kanalisatsioonitorud ja veetorud, vastavalt projektis toodud tingimustel. Vaata joonist"Põhiplaan". Lisaks on vaja valada või siis ehitada fibost ka terassi postid. Vaata joonist"Vundamendiplaan". Lisatud ka asendiplaan.

Pakkumist soovin:
a) ehitusmaksumus + materjalid;
b) ainult ehitusmaksumus.

Pildid, video ja failid

Hanke korraldaja: eraisik ID34912

Pakkumised

Pakkumisi kokku: 6

Ettevõte Summa Käibemaks Lisatud Vestlus
Kasutaja ikoon ID27612
Pakkuja profiil Väike nool paremale
11 450€ Ei sisalda Ei sisalda 04.05.2015 Vestlus (6)

Pakkumise kirjeldus:

Hind sisaldab materjale ja kogu töömaksumust.Ettemaks mehanismide ja materjali jaoks.Parimat

Kasutaja ikoon ID37964
Pakkuja profiil Väike nool paremale
8 500€ Ei sisalda Ei sisalda 06.05.2015 Vestlus (1)

Pakkumise kirjeldus:

Hind ei sisalda eritöid (vesi elekter, küte, kanal.)

Kasutaja ikoon ID2186
Pakkuja profiil Väike nool paremale
10 731€ Ei sisalda Ei sisalda 07.05.2015 Vestlus (1)
Kasutaja ikoon ID28145
Pakkuja profiil Väike nool paremale
10 800€ Ei sisalda Ei sisalda 10.05.2015 Vestlus (1)

Pakkumise kirjeldus:

Tere. Hinnapakkumine on tehtud hankes loetletud vundamendi- ja lisatöödele, mis on vajalik antud ja õige tulemuse teostamiseks. Hinnapakkumine sisaldab kommunikatsioonide (vesi-kanal) ühendamist kuni 6 jm kaugusele hoonest. Hinnapakkumisel on arvestatud Fibo 200mm plokiga ja armeeritud vundamendilindi ning vundamendiplaadiga. Kui krundil on puid, mis tul ... Rohkem

Kasutaja ikoon ID35973
Pakkuja profiil Väike nool paremale
14 800€ Ei sisalda Ei sisalda 15.05.2015 Vestlus (2)

Pakkumise kirjeldus:

Tere, pakkumine sisaldab alljärgnevat; täismahus Teie poolt loetletud tööde teostamist koos materjalide ja mehhanismidega, (täpne pakkumine pärast objektiga tutvumist). Võime pakkuda ka teisi lahendusi kuid sellest hiljem. Muud märkused; Tellijate soovitused, referentsid ja korrektse hinnapakkumise esitame hiljem. Loodame, et meie pakkumine sobib Tei ... Rohkem

Kasutaja ikoon ID38572
Pakkuja profiil Väike nool paremale
10 812€ Ei sisalda Ei sisalda 16.05.2015 Vestlus (1)

Küsimused hanke korraldajale

Küsimus: private ID28145   10.05.2015 10:02
Tere, kas saame õieti aru, et on vaja teostada vundamendi linditööd, koos kommunikatsioonide ja läbiviikude ehitusega? Plaati ega sõrestikku ei ole vaja teostada? Kas Teil on olemas vundamendi läbilõige? Tänan.

Teavita reeglite rikkumisest

Korraldaja vastus: 10.05.2015 20:07

Tere!<br />
<br />
Vaja on teostada linditööd, koos läbiviikude ehitusega, paigaldada ka kommunikatsioonid ja valada plaat. Projektis läbilõiget pole aga püüan arhitekti käest selle saada.

Teavita reeglite rikkumisest

Lisa küsimus

Lisa küsimus

Minu pakkumine

Reeglid

Pakkumise kirjelduse väli on mõeldud pakkumise detailsemaks lahti kirjutamiseks. Pikema teksti mugavaks sisestamiseks klikkige kasti paremal ülaservas oleval ikoonil.
Pakkumist tehes on keelatud postitada enda kontaktandmeid (nimi, telefon, aadress jne). Me jälgime ja analüüsime pakkumisi, et vältida pettuseid ja reeglite rikkumisi.
Rikkumise puhul kasutajakonto blokeeritakse.

 

Teisi töid samas valdkonnas

Valdkonnas "Vundamenditööd" on 4 aktiivset tööd

no-img Pilt puudub

Plaatvundament koos kommunikatsioonidega

Asukoht: Harjumaa
Aega jäänud: 4p 23h
Tehtud pakkumisi: 2

Vundamendi ehitus

Asukoht: Harjumaa, Ülgase
Aega jäänud: 4p 23h
Tehtud pakkumisi: 1

Vanemad teated:

Vaata kõiki

Sellel veebilehel kasutatakse küpsiseid. Kasutamist jätkates nõustute küpsiste kasutamisega.

Sulge
 
Minu pakkumine

Reeglid

Pakkumise kirjelduse väli on mõeldud pakkumise detailsemaks lahti kirjutamiseks. Pikema teksti mugavaks sisestamiseks klikkige kasti paremal ülaservas oleval ikoonil.
Pakkumist tehes on keelatud postitada enda kontaktandmeid (nimi, telefon, aadress jne). Me jälgime ja analüüsime pakkumisi, et vältida pettuseid ja reeglite rikkumisi.
Rikkumise puhul kasutajakonto blokeeritakse.