+ Lisa oma töö      

Otsid ehitajat "Müüritööd" valdkonnast?

Parima pakkumise ja teostaja leidmiseks lisa oma töö.

Hange on lõppenud!

Võitjaks osutus kasutaja ID 35973

Korraldaja hinnang tehtud tööle

5.0
03.08.2015
Töökiirus: 12345
Kvaliteet: 12345
Hind: 12345

Korralik firma, head töömehed, soovitan koostööd teha - Toomas P.

FIBO plokkide ladumine

ID 33379

8221 vaatamist

Prindi

  • check Pakkumiste tegemine
    kuni 08.06.2015
  • check Võitja valik kuni
    15.06.2015
  • 3 Töö teostamine
    ja hinnang
Hanke lõpp: E, 8. juuni, 2015
Maakond: Harjumaa
Linn: Tallinn
Tööde algus: K, 10. juuni, 2015 (Soovituslik)
Tööde lõpp: L, 01. august, 2015 (Soovituslik)
Ehitusmaterjalid: Töö tellija poolt

Töö sisu

Tallinnas, Pääskülas algab eramu ehitus ning oleks pakkuda tööd paarile müürsepale FIBO plokkide paigalduseks. Vundament 300ne plokk - 830 tk, seinad 250ne plokk - 1850 tk, 200ne plokk - 750 tk. Palun pakkuda ploki ladumise tüki hind. Segumasin olemas, kuivsegu Sakret.
Soovi korral saadan joonised. Tööde alustamise aeg ~ 10.juunist.

Pildid, video ja failid

Hanke korraldaja: eraisik ID38915

Pakkumised

Pakkumisi kokku: 5

Ettevõte Summa Käibemaks Lisatud Vestlus
Kasutaja ikoon ID38933
Pakkuja profiil Väike nool paremale
4 500€ Ikoon kell Ei sisalda Ei sisalda 07.06.2015 Vestlus (2)
Kasutaja ikoon ID30621
Pakkuja profiil Väike nool paremale
1,4€ Sisaldab KM Sisaldab KM 02.06.2015 Vestlus (1)
Kasutaja ikoon ID27557
Pakkuja profiil Väike nool paremale
1,6€ Ei sisalda Ei sisalda 06.06.2015 Vestlus (1)
Kasutaja ikoon ID38572
Pakkuja profiil Väike nool paremale
1,4€ Ei sisalda Ei sisalda 08.06.2015 Vestlus (2)

Pakkumise kirjeldus:

Tere. Nagu küsisite siis see on ploki ladumise tüki hind. Tänud

Kasutaja ikoon ID35973
Pakkuja profiil Väike nool paremale
1,5€ Ei sisalda Ei sisalda 08.06.2015 Vestlus (4)

Pakkumise kirjeldus:

Tere,

pakutud on kiviladumise tk hind.
Kogemused, kvaliteet ja garantii!

parimat

Küsimused hanke korraldajale

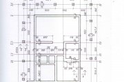
Küsimus: private ID37148   01.06.2015 13:20
Tere,<br />
<br />
Kui palju silluseid on? Äkki oleks võimalik põhjaplaan esitada.

Teavita reeglite rikkumisest

Korraldaja vastus: 01.06.2015 15:28

Tere<br />
<br />
Panin paar pilti hankesse üles, kus saate infot.

Teavita reeglite rikkumisest

Küsimus: private ID31957   02.06.2015 01:34
Lugupeetud hanke korraldaja, kas töö algus võiks olla ka alates juuli algusest. Sel juhul tean arvestada, kas teile pakkumist esitada või mitte. Kõike paremat!

Teavita reeglite rikkumisest

Korraldaja vastus: 02.06.2015 06:40

Tere<br />
<br />
Palun pakkuge siis ainult seinte ladumise hinda, vundamendi ehitusega ei saa kahjuks nii kaua oodata.

Teavita reeglite rikkumisest

Lisa küsimus

Lisa küsimus

Minu pakkumine

Reeglid

Pakkumise kirjelduse väli on mõeldud pakkumise detailsemaks lahti kirjutamiseks. Pikema teksti mugavaks sisestamiseks klikkige kasti paremal ülaservas oleval ikoonil.
Pakkumist tehes on keelatud postitada enda kontaktandmeid (nimi, telefon, aadress jne). Me jälgime ja analüüsime pakkumisi, et vältida pettuseid ja reeglite rikkumisi.
Rikkumise puhul kasutajakonto blokeeritakse.

 

Vanemad teated:

Vaata kõiki

Sellel veebilehel kasutatakse küpsiseid. Kasutamist jätkates nõustute küpsiste kasutamisega.

Sulge
 
Minu pakkumine

Reeglid

Pakkumise kirjelduse väli on mõeldud pakkumise detailsemaks lahti kirjutamiseks. Pikema teksti mugavaks sisestamiseks klikkige kasti paremal ülaservas oleval ikoonil.
Pakkumist tehes on keelatud postitada enda kontaktandmeid (nimi, telefon, aadress jne). Me jälgime ja analüüsime pakkumisi, et vältida pettuseid ja reeglite rikkumisi.
Rikkumise puhul kasutajakonto blokeeritakse.