+ Lisa oma töö      

Otsid ehitajat "Vundamenditööd" valdkonnast?

Parima pakkumise ja teostaja leidmiseks lisa oma töö.

Hange on lõppenud!

Võitjaks osutus kasutaja ID 32124

Korraldaja hinnang tehtud tööle

5.0
23.08.2015
Töökiirus: 12345
Kvaliteet: 12345
Hind: 12345

Suurepärane töö - kiire, täpne ja korralik. Töömehed asjatundlikud ja kogenud. Viisakas ja asjakohane suhtlemine. Usaldusväärne ja tellija soove arvestav. Soovitan kindlasti! - Kail �.

Vundamendi ehitus

ID 33707

5678 vaatamist

Prindi

  • check Pakkumiste tegemine
    kuni 19.07.2015
  • check Võitja valik kuni
    26.07.2015
  • 3 Töö teostamine
    ja hinnang
Hanke lõpp: P, 19. juuli, 2015
Maakond: Läänemaa
Muu asula: Vormsi
Tööde algus: N, 23. juuli, 2015 (Soovituslik)
Tööde lõpp: R, 31. juuli, 2015 (Soovituslik)
Ehitusmaterjalid: Töö tellija poolt

Töö sisu

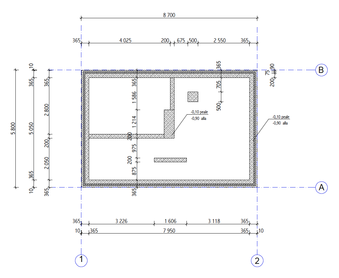
Otsin vilunud lintvundamendi ehitajat Aerocist abihoonele Vormsi saarel (8,7 × 5,8 m, vt joonist). Ehitusmaterjalid ja ettevalmistustööd (märgistamine, pinnase koorimine, vundamendikraavi kaevamine) on tellija poolt, samuti majutus- ja transpordikulud. Tellija on ka ehitusel abiks.

Töö sisaldab seega:
– killustikupadja tegemist ja tihendamist
– raketise ehitust ja armeerimist
– taldmiku valu (arvatavasti kohale tellitud betooniga)
– Fibo-plokkide ladumist (3 rida)
– hüdroisolatsiooni ja välissoojustuse tegemist
– tagasitäitmist ja tihendamist

Tööde algus juuli lõpus (eeldatavalt 25. paiku)

Pildid, video ja failid

Hanke korraldaja: eraisik ID39218

Pakkumised

Pakkumisi kokku: 4

Ettevõte Summa Käibemaks Lisatud Vestlus
Kasutaja ikoon ID38572
Pakkuja profiil Väike nool paremale
2 800€ Ei sisalda Ei sisalda 06.07.2015 Vestlus (0)

Pakkumise kirjeldus:

Tere. Pakkumine sisaldab siis vajalike töid. Kogemused üle 25 aasta.
Lugupidamisega

Kasutaja ikoon ID25300
Pakkuja profiil Väike nool paremale
2 500€ Sisaldab KM Sisaldab KM 06.07.2015 Vestlus (0)

Pakkumise kirjeldus:

Hind sisaldab mini kopplaaduri kasutamise võimalust vundamendi ehitustöödel ja tagasitäite tegemisel.

Kasutaja ikoon ID32124
Pakkuja profiil Väike nool paremale
2 000€ Sisaldab KM Sisaldab KM 07.07.2015 Vestlus (0)

Pakkumise kirjeldus:

3meest ,vajaminevad materjalid tellija poolt ,tööriistad ehitaja poolt

Kasutaja ikoon ID39258
Pakkuja profiil Väike nool paremale
2 100€ Sisaldab KM Sisaldab KM 19.07.2015 Vestlus (0)

Pakkumise kirjeldus:

Tööraha Teie poolt soovitud töödele.

Küsimused hanke korraldajale

Hanke korraldajale ei ole veel küsimusi esitatud.

Lisa küsimus

Lisa küsimus

Minu pakkumine

Reeglid

Pakkumise kirjelduse väli on mõeldud pakkumise detailsemaks lahti kirjutamiseks. Pikema teksti mugavaks sisestamiseks klikkige kasti paremal ülaservas oleval ikoonil.
Pakkumist tehes on keelatud postitada enda kontaktandmeid (nimi, telefon, aadress jne). Me jälgime ja analüüsime pakkumisi, et vältida pettuseid ja reeglite rikkumisi.
Rikkumise puhul kasutajakonto blokeeritakse.

 

Teisi töid samas valdkonnas

Valdkonnas "Vundamenditööd" on 5 aktiivset tööd

Vana kivivundamendi / sokli parandus

Asukoht: Pärnumaa
Aega jäänud: 48 min
Tehtud pakkumisi: 1

no-img Pilt puudub

Plaatvundamendi ehitus

Asukoht: Harjumaa
Aega jäänud: 9p
Tehtud pakkumisi: 1

Vanemad teated:

Vaata kõiki

Sellel veebilehel kasutatakse küpsiseid. Kasutamist jätkates nõustute küpsiste kasutamisega.

Sulge
 
Minu pakkumine

Reeglid

Pakkumise kirjelduse väli on mõeldud pakkumise detailsemaks lahti kirjutamiseks. Pikema teksti mugavaks sisestamiseks klikkige kasti paremal ülaservas oleval ikoonil.
Pakkumist tehes on keelatud postitada enda kontaktandmeid (nimi, telefon, aadress jne). Me jälgime ja analüüsime pakkumisi, et vältida pettuseid ja reeglite rikkumisi.
Rikkumise puhul kasutajakonto blokeeritakse.