+ Lisa oma töö      

Otsid ehitajat "Teede ehitus, teede korrashoid" valdkonnast?

Parima pakkumise ja teostaja leidmiseks lisa oma töö.

Hange on lõppenud!

Võitjaks osutus kasutaja ID 8736

Tiskres autotee katmine unikividega

ID 33792

4431 vaatamist

Prindi

  • check Pakkumiste tegemine
    kuni 28.07.2015
  • check Võitja valik kuni
    11.08.2015
  • 3 Töö teostamine
    ja hinnang
Hanke lõpp: T, 28. juuli, 2015
Maakond: Harjumaa
Muu asula: Tiskre
Tööde algus: E, 03. august, 2015 (Soovituslik)
Tööde lõpp: E, 31. august, 2015 (Soovituslik)
Ehitusmaterjalid: Töö tegija poolt

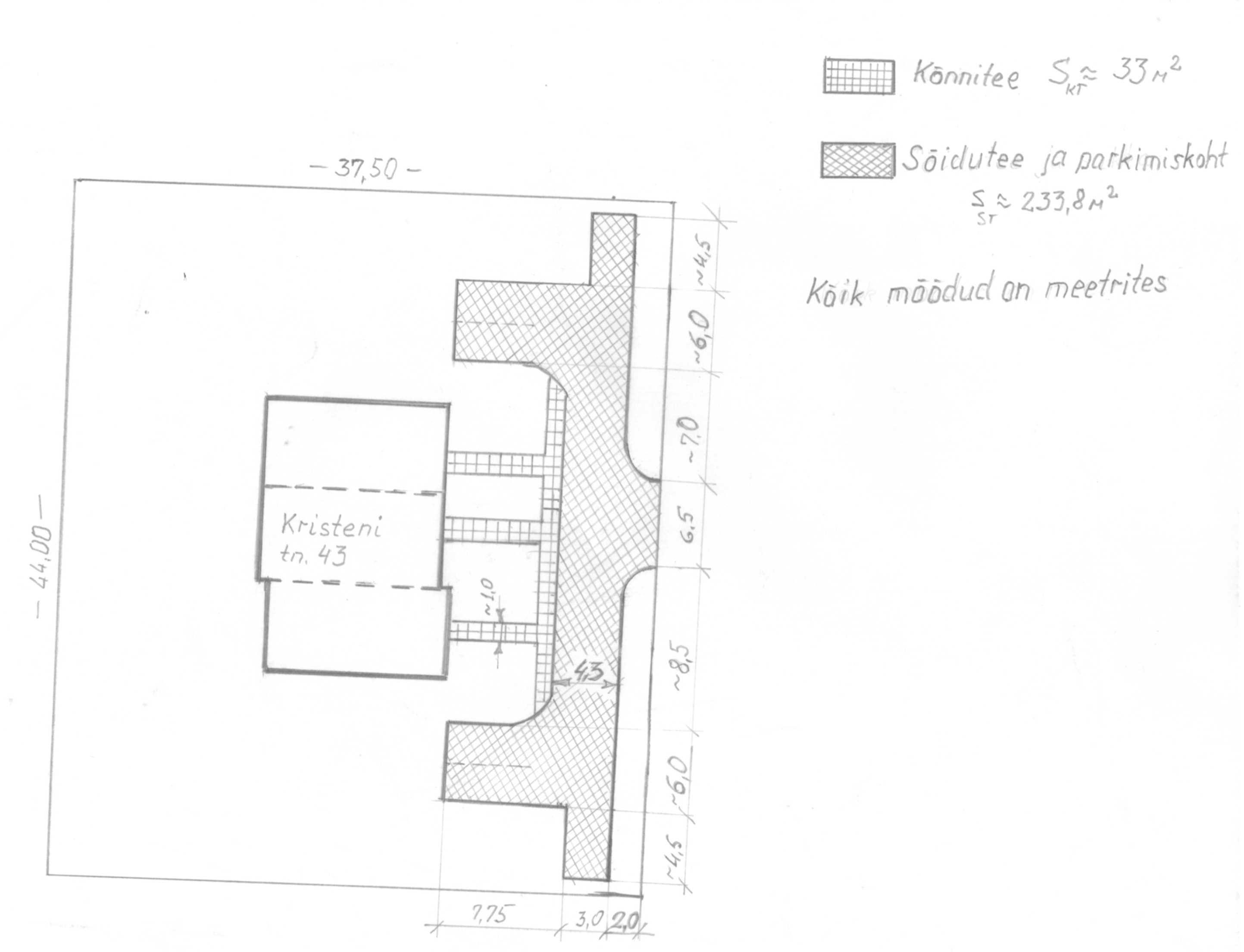
Töö sisu

Ridaelamuboksi ees autotee alune pind on 234 m2 ja eelnevalt on seal gruntkate. Lisaks tuleks parandada juba unikividega kaetud jalgeed maja ees. Täpsemalt kõik lisatud joonistelt

Pildid, video ja failid

Hanke korraldaja: eraisik ID39294

Pakkumised

Pakkumisi kokku: 4

Ettevõte Summa Käibemaks Lisatud Vestlus
Kasutaja ikoon ID38499
Pakkuja profiil Väike nool paremale
4 600€ Sisaldab KM Sisaldab KM 14.07.2015 Vestlus (0)

Pakkumise kirjeldus:

Tere! Pakkumine sisaldab aluspinna ettevalmistust, sillutisekivi koos paigaldusliiva, paigalduse ja lõppviimistlusega. Samuti olemasoleva sillutise parandamist. Pakkumise hinnas ei ole arvestatud killustikaluse ehituse ja äärekivi paigaldusega. Käibemaksu ei lisandu. Küsimuste korral olen meelsasti nõus vastama. Lugupidamisega..

Kasutaja ikoon ID39193
Pakkuja profiil Väike nool paremale
4 600€ Ei sisalda Ei sisalda 15.07.2015 Vestlus (0)
Kasutaja ikoon ID34237
Pakkuja profiil Väike nool paremale
5 850€ Ei sisalda Ei sisalda 16.07.2015 Vestlus (0)

Pakkumise kirjeldus:

Tere, Pinnase koorimine ja utiliseerimine (5.-/m2) 1170.-, Sillutiskivi (60mm, hall, Talot) paigaldus liivast sängituskihile (20.-/m2) 4680.-, Kõnnitee kivide ülessevõtmine, aluse korrigeerimine ja kivide tagasipaigaldus (14.-/m2) 452.- NB! Mahtude suurenemisel või vähenemisel võetakse aluseks ühiku hind. Töödele kegtib 2 aastane garantii. Lugupida ... Rohkem

Kasutaja ikoon ID8736
Pakkuja profiil Väike nool paremale
4 850€ Ei sisalda Ei sisalda 27.07.2015 Vestlus (2)

Pakkumise kirjeldus:

Hind sisaldab kirjelduses olnud töid, ilma uue killustikaluse ehituseta (eeldan, et olemas oleva tee all on olemas killustikalus, mida oleks vaja korrastada).
Teostatud töödele 2 aastat garantii!

Küsimused hanke korraldajale

Hanke korraldajale ei ole veel küsimusi esitatud.

Lisa küsimus

Lisa küsimus

Minu pakkumine

Reeglid

Pakkumise kirjelduse väli on mõeldud pakkumise detailsemaks lahti kirjutamiseks. Pikema teksti mugavaks sisestamiseks klikkige kasti paremal ülaservas oleval ikoonil.
Pakkumist tehes on keelatud postitada enda kontaktandmeid (nimi, telefon, aadress jne). Me jälgime ja analüüsime pakkumisi, et vältida pettuseid ja reeglite rikkumisi.
Rikkumise puhul kasutajakonto blokeeritakse.

 

Teisi töid samas valdkonnas

Valdkonnas "Teede ehitus, teede korrashoid" on 4 aktiivset tööd

no-img Pilt puudub

Kruusatee tasandamine ja uue kihi pealepanek

Asukoht: Võrumaa, Võru
Aega jäänud: 21h 38 min
Tehtud pakkumisi: 1

Sissesõidu tee ehitus

Asukoht: Raplamaa, Märjamaa
Aega jäänud: 2p 21h
Tehtud pakkumisi: 1

Vanemad teated:

Vaata kõiki

Sellel veebilehel kasutatakse küpsiseid. Kasutamist jätkates nõustute küpsiste kasutamisega.

Sulge
 
Minu pakkumine

Reeglid

Pakkumise kirjelduse väli on mõeldud pakkumise detailsemaks lahti kirjutamiseks. Pikema teksti mugavaks sisestamiseks klikkige kasti paremal ülaservas oleval ikoonil.
Pakkumist tehes on keelatud postitada enda kontaktandmeid (nimi, telefon, aadress jne). Me jälgime ja analüüsime pakkumisi, et vältida pettuseid ja reeglite rikkumisi.
Rikkumise puhul kasutajakonto blokeeritakse.