+ Lisa oma töö      

Otsid ehitajat "Siseviimistlustööd" valdkonnast?

Parima pakkumise ja teostaja leidmiseks lisa oma töö.

Korteri siseviimistlustööd

ID 33976

3689 vaatamist

Prindi

  • check Pakkumiste tegemine
    kuni 02.08.2015
  • check Võitja valik kuni
    09.08.2015
  • 3 Töö teostamine
    ja hinnang
Hanke lõpp: P, 2. august, 2015
Maakond: Harjumaa
Linn: Tallinn
Tööde algus: E, 03. august, 2015 (Soovituslik)
Tööde lõpp: P, 16. august, 2015 (Soovituslik)
Ehitusmaterjalid: Töö tellija poolt

Töö sisu

Oleksin huvitatud järgnevatest töödest. Töödega võiks alustada võimalikult ruttu ja ideaalis võiks kõik valmis olla augusti jooksul.

Momendil oleme eemaldanud kõik vanad tapeedid ja puhastanud seinad kuni betoonini. Seinad on vaja ette valmistada tapeetimiseks. Meie poolt valitud tapeet on faktuurne, ehk siis ei vaja päris ideaalset aluspinda. (fliistapeet Rasch)

1. Elutoa seinte tasandus + tapeetimine
Ühe seina tapeet vaja ajada mustrisse, teised lihtsalt valged.

2. Elutoa ukseava viimistlemine (vaata fotot).

3. Koridori seinte ja töönurga seinte tapeetimine (ei ole vajada ajada mustrisse)

4. Köögi tagaseina plaatimine. 3035mm x 600mm
Kivi dekoratiivtellis.

5. Kahe nishi tagaseina plaatimine (400mm x 350 mm)
Kivi dekoratiivtellis.


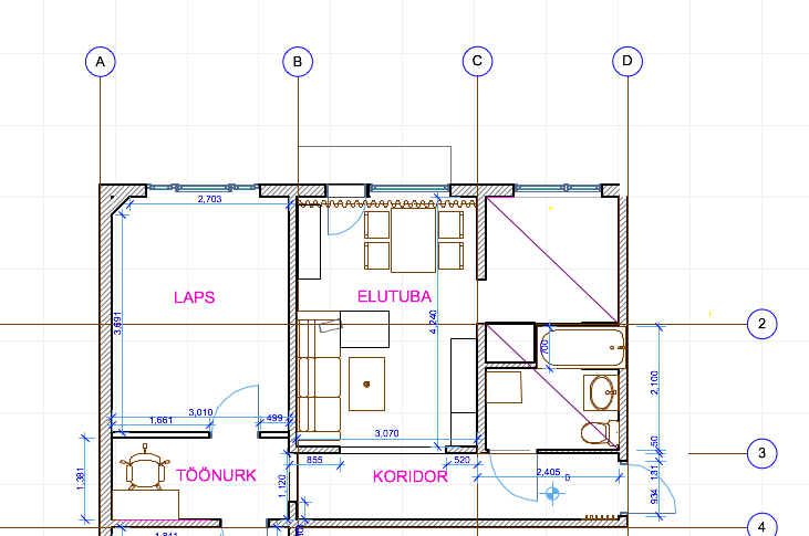
Manuses on korteriplaani fragment.
Asub Mustamäel.

Pildid, video ja failid

Hanke korraldaja: eraisik ID39456

Pakkumised

Pakkumisi kokku: 2

Ettevõte Summa Käibemaks Lisatud Vestlus
Kasutaja ikoon ID39193
Pakkuja profiil Väike nool paremale
30€ Ei sisalda Ei sisalda 31.07.2015 Vestlus (0)

Pakkumise kirjeldus:

Tere, kuna on palju erinevaid töid ja etappe siis pakun tunnitööna 30eur/h

Kasutaja ikoon ID30127
Pakkuja profiil Väike nool paremale
2 400€ Ei sisalda Ei sisalda 01.08.2015 Vestlus (0)

Pakkumise kirjeldus:

Leping,kvaliteet,garantii

Küsimused hanke korraldajale

Küsimus: private ID39239   30.07.2015 11:50
Tervist! Kas saate välja tuua ruutmeetrid, mida töö hõlmab? Ette tänades, B.

Teavita reeglite rikkumisest

Korraldaja vastus: 31.07.2015 10:26

Tere,<br />
<br />
Tapeetimist vajab 71 m2 seinapinda. (sellest 27m2 on elutoa seinad kus on vaja natuke suuremat eeltööd). Plaatimist ca 2,5m2<br />
<br />
Parimate soovidega,<br />
R.

Teavita reeglite rikkumisest

Lisa küsimus

Lisa küsimus

Minu pakkumine

Reeglid

Pakkumise kirjelduse väli on mõeldud pakkumise detailsemaks lahti kirjutamiseks. Pikema teksti mugavaks sisestamiseks klikkige kasti paremal ülaservas oleval ikoonil.
Pakkumist tehes on keelatud postitada enda kontaktandmeid (nimi, telefon, aadress jne). Me jälgime ja analüüsime pakkumisi, et vältida pettuseid ja reeglite rikkumisi.
Rikkumise puhul kasutajakonto blokeeritakse.

 

Teisi töid samas valdkonnas

Valdkonnas "Siseviimistlustööd" on 32 aktiivset tööd

Trepikoja värvimine

Asukoht: Harjumaa, Tallinn
Aega jäänud: 2h 57 min
Tehtud pakkumisi: 6

Ventilatsioonitoru vahetus, integreeritud nõudepesumasina ja pliidiplaadi vahetus

Asukoht: Tartumaa, Tartu
Aega jäänud: 2h 57 min
Tehtud pakkumisi: 5

Vanemad teated:

Vaata kõiki

Sellel veebilehel kasutatakse küpsiseid. Kasutamist jätkates nõustute küpsiste kasutamisega.

Sulge
 
Minu pakkumine

Reeglid

Pakkumise kirjelduse väli on mõeldud pakkumise detailsemaks lahti kirjutamiseks. Pikema teksti mugavaks sisestamiseks klikkige kasti paremal ülaservas oleval ikoonil.
Pakkumist tehes on keelatud postitada enda kontaktandmeid (nimi, telefon, aadress jne). Me jälgime ja analüüsime pakkumisi, et vältida pettuseid ja reeglite rikkumisi.
Rikkumise puhul kasutajakonto blokeeritakse.