+ Lisa oma töö      

Otsid ehitajat "Katusetööd" valdkonnast?

Parima pakkumise ja teostaja leidmiseks lisa oma töö.

Katuse ehitus

ID 34145

1520 vaatamist

Prindi

  • check Pakkumiste tegemine
    kuni 25.08.2015
  • check Võitja valik kuni
    01.09.2015
  • 3 Töö teostamine
    ja hinnang
Hanke lõpp: T, 25. august, 2015
Maakond: Harjumaa
Muu asula: Saku
Tööde algus: N, 01. oktoober, 2015 (Soovituslik)
Tööde lõpp: L, 31. oktoober, 2015 (Soovituslik)
Ehitusmaterjalid: Töö tegija poolt

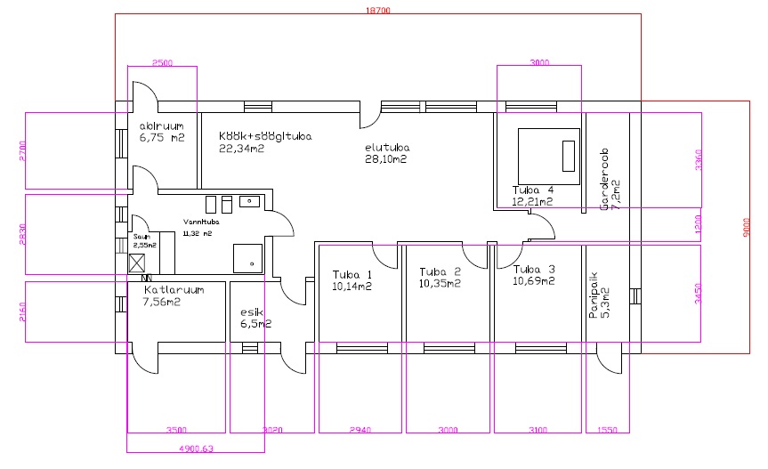
Töö sisu

On vaja ehitada ning paigaldada katusefermid
Maja pikkus 18700
laius 9000
seinte kõrgus 3000
katuse kalle 35 kraadi
materjal - plekk

Pildid, video ja failid

Hanke korraldaja: eraisik ID39581

Pakkumised

Pakkumisi kokku: 0

Küsimused hanke korraldajale

Hanke korraldajale ei ole veel küsimusi esitatud.

Lisa küsimus

Lisa küsimus

Minu pakkumine

Reeglid

Pakkumise kirjelduse väli on mõeldud pakkumise detailsemaks lahti kirjutamiseks. Pikema teksti mugavaks sisestamiseks klikkige kasti paremal ülaservas oleval ikoonil.
Pakkumist tehes on keelatud postitada enda kontaktandmeid (nimi, telefon, aadress jne). Me jälgime ja analüüsime pakkumisi, et vältida pettuseid ja reeglite rikkumisi.
Rikkumise puhul kasutajakonto blokeeritakse.

 

Teisi töid samas valdkonnas

Valdkonnas "Katusetööd" on 13 aktiivset tööd

Katusekatte vahetus

Asukoht: Võrumaa, Tsolgo
Aega jäänud: 6p 10h
Tehtud pakkumisi: 6

Katuse vahetus uue eterniidi vastu

Asukoht: Harjumaa, Viimsi
Aega jäänud: 5p 10h
Tehtud pakkumisi: 6

Vanemad teated:

Vaata kõiki

Sellel veebilehel kasutatakse küpsiseid. Kasutamist jätkates nõustute küpsiste kasutamisega.

Sulge
 
Minu pakkumine

Reeglid

Pakkumise kirjelduse väli on mõeldud pakkumise detailsemaks lahti kirjutamiseks. Pikema teksti mugavaks sisestamiseks klikkige kasti paremal ülaservas oleval ikoonil.
Pakkumist tehes on keelatud postitada enda kontaktandmeid (nimi, telefon, aadress jne). Me jälgime ja analüüsime pakkumisi, et vältida pettuseid ja reeglite rikkumisi.
Rikkumise puhul kasutajakonto blokeeritakse.