+ Lisa oma töö      

Otsid ehitajat "Pottsepatööd" valdkonnast?

Parima pakkumise ja teostaja leidmiseks lisa oma töö.

Kaminahju ja korstna ehitus

ID 34278

4775 vaatamist

Prindi

  • check Pakkumiste tegemine
    kuni 13.09.2015
  • check Võitja valik kuni
    20.09.2015
  • 3 Töö teostamine
    ja hinnang
Hanke lõpp: P, 13. september, 2015
Maakond: Pärnumaa
Muu asula: Jõesuu küla
Tööde algus: E, 21. september, 2015 (Soovituslik)
Tööde lõpp: E, 05. oktoober, 2015 (Soovituslik)
Ehitusmaterjalid: Töö tegija poolt

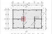
Töö sisu

44m2 freespuidust suvilasse kaminahju ehitus. Suvila on ehitatud 8cm raudbetoonist plaatvundamendile. Katuseharja kõrgus vundamendist 4,45m. Ka korsten võiks soojaks minna, et kütta katusealust magamislavatsit.

Pildid, video ja failid

Hanke korraldaja: eraisik ID39711

Pakkumised

Pakkumisi kokku: 1

Ettevõte Summa Käibemaks Lisatud Vestlus
Kasutaja ikoon ID39044
Pakkuja profiil Väike nool paremale
2 500€ Sisaldab KM Sisaldab KM 01.09.2015 Vestlus (2)

Pakkumise kirjeldus:

Julgeme soovitada sinna õhkkütte pelletikaminat, mis kütaks kogu elamise ära. Korstna kõrgust ma kuskilt välja ei lugenud ja seega arvestasin 7m.

Küsimused hanke korraldajale

Hanke korraldajale ei ole veel küsimusi esitatud.

Lisa küsimus

Lisa küsimus

Minu pakkumine

Reeglid

Pakkumise kirjelduse väli on mõeldud pakkumise detailsemaks lahti kirjutamiseks. Pikema teksti mugavaks sisestamiseks klikkige kasti paremal ülaservas oleval ikoonil.
Pakkumist tehes on keelatud postitada enda kontaktandmeid (nimi, telefon, aadress jne). Me jälgime ja analüüsime pakkumisi, et vältida pettuseid ja reeglite rikkumisi.
Rikkumise puhul kasutajakonto blokeeritakse.

 

Vanemad teated:

Vaata kõiki

Sellel veebilehel kasutatakse küpsiseid. Kasutamist jätkates nõustute küpsiste kasutamisega.

Sulge
 
Minu pakkumine

Reeglid

Pakkumise kirjelduse väli on mõeldud pakkumise detailsemaks lahti kirjutamiseks. Pikema teksti mugavaks sisestamiseks klikkige kasti paremal ülaservas oleval ikoonil.
Pakkumist tehes on keelatud postitada enda kontaktandmeid (nimi, telefon, aadress jne). Me jälgime ja analüüsime pakkumisi, et vältida pettuseid ja reeglite rikkumisi.
Rikkumise puhul kasutajakonto blokeeritakse.