+ Lisa oma töö      

Otsid ehitajat "Siseviimistlustööd" valdkonnast?

Parima pakkumise ja teostaja leidmiseks lisa oma töö.

Paneelmaja korteri kap.remont

ID 3444

4687 vaatamist

Prindi

  • check Pakkumiste tegemine
    kuni 12.04.2007
  • check Võitja valik kuni
    19.04.2007
  • 3 Töö teostamine
    ja hinnang
Hanke lõpp: N, 12. aprill, 2007
Maakond: Harjumaa
Linn: Tallinn
Tööde algus: E, 04. juuni, 2007 (Soovituslik)
Tööde lõpp: R, 29. juuni, 2007 (Soovituslik)
Ehitusmaterjalid: Töö tegija poolt

Töö sisu

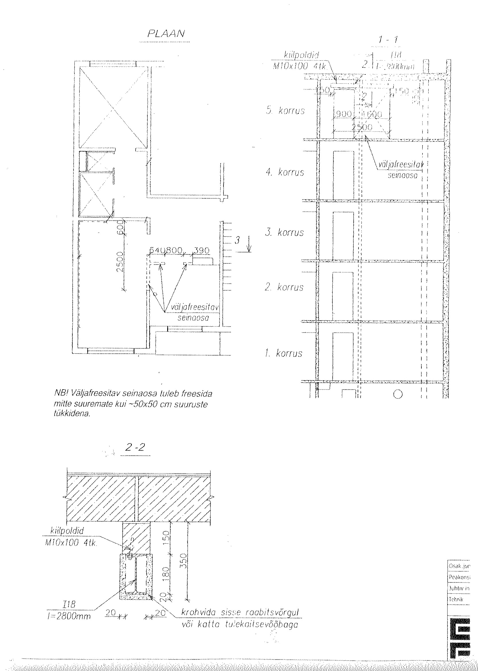
Korteri remonti osaliselt - puutumata jääb väike tuba; vannituba ja wc, viimastes vahetatakse välja sanitaartehnika (va.vann). Planeeritud remont - kandeseina ava tegemine, akende vahetus, vana parkettpõrand välja, asemele uus osa. ker.plaat+parkett (38,7m2), radiaatorid, seinad pahteldada+värvida, lagi värvida. Uste vahetus - v-tuba, vannituva, wc ja turvauks.

On olemas AS Eesti Projektilt joonised korteri ümberplaneerimiseks.


Pildid, video ja failid

Hanke korraldaja: eraisik ID5100

Pakkumised

Pakkumisi kokku: 3

Ettevõte Summa Käibemaks Lisatud Vestlus
Kasutaja ikoon ID4443
Pakkuja profiil Väike nool paremale
9,6€ Ei sisalda Ei sisalda 12.03.2007 Vestlus (0)

Pakkumise kirjeldus:

Tegeleme ainult maalritöödega!

Kasutaja ikoon ID923
Pakkuja profiil Väike nool paremale
0,1€ Ei sisalda Ei sisalda 26.03.2007 Vestlus (0)

Pakkumise kirjeldus:

hinda vaja täpsustada.

Kasutaja ikoon ID5406
Pakkuja profiil Väike nool paremale
8 031,4€ Sisaldab KM Sisaldab KM 04.04.2007 Vestlus (0)

Pakkumise kirjeldus:

Materjal + töö

Küsimused hanke korraldajale

Küsimus: private ID5406   03.04.2007 22:38
Tere! mitu akend tuleb ära vahetada? Millised uksed ja aknad peaksid olema? Kas parkett või laminaat tuleb? Mitu ruutu on seina? Mitu radiaatorit tuleb väljavahetada?

Teavita reeglite rikkumisest

Korraldaja vastus: 10.05.2026 14:08

Olemas küll Teil pakkumine aga igaks juhuks alljärgnev!

Teavita reeglite rikkumisest

Lisa küsimus

Lisa küsimus

Minu pakkumine

Reeglid

Pakkumise kirjelduse väli on mõeldud pakkumise detailsemaks lahti kirjutamiseks. Pikema teksti mugavaks sisestamiseks klikkige kasti paremal ülaservas oleval ikoonil.
Pakkumist tehes on keelatud postitada enda kontaktandmeid (nimi, telefon, aadress jne). Me jälgime ja analüüsime pakkumisi, et vältida pettuseid ja reeglite rikkumisi.
Rikkumise puhul kasutajakonto blokeeritakse.

 

Teisi töid samas valdkonnas

Valdkonnas "Siseviimistlustööd" on 26 aktiivset tööd

Korteri remont

Asukoht: Harjumaa, Muraste
Aega jäänud: 2p 9h
Tehtud pakkumisi: 15

no-img Pilt puudub

Laminaatparketi paigaldus

Asukoht: Harjumaa, Tallinn
Aega jäänud: 4p 9h
Tehtud pakkumisi: 8

Vanemad teated:

Vaata kõiki

Sellel veebilehel kasutatakse küpsiseid. Kasutamist jätkates nõustute küpsiste kasutamisega.

Sulge
 
Minu pakkumine

Reeglid

Pakkumise kirjelduse väli on mõeldud pakkumise detailsemaks lahti kirjutamiseks. Pikema teksti mugavaks sisestamiseks klikkige kasti paremal ülaservas oleval ikoonil.
Pakkumist tehes on keelatud postitada enda kontaktandmeid (nimi, telefon, aadress jne). Me jälgime ja analüüsime pakkumisi, et vältida pettuseid ja reeglite rikkumisi.
Rikkumise puhul kasutajakonto blokeeritakse.