+ Lisa oma töö      

Otsid ehitajat "Vannitubade remont" valdkonnast?

Parima pakkumise ja teostaja leidmiseks lisa oma töö.

Hange on lõppenud!

Võitjaks osutus kasutaja ID 33965

Vannitoa remont

ID 34490

3528 vaatamist

Prindi

  • check Pakkumiste tegemine
    kuni 02.10.2015
  • check Võitja valik kuni
    09.10.2015
  • 3 Töö teostamine
    ja hinnang
Hanke lõpp: R, 2. oktoober, 2015
Maakond: Harjumaa
Linn: Tallinn
Tööde algus: E, 21. september, 2015 (Soovituslik)
Tööde lõpp: L, 31. oktoober, 2015 (Soovituslik)
Ehitusmaterjalid: Töö tellija poolt

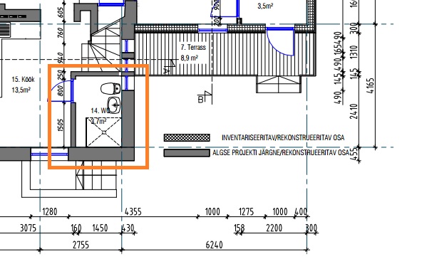
Töö sisu

3.7 m2 vannituba
Vajalikud tööd:
- niiskustõke
- seinad - osaline karkass (ühes seinas olemas), kipsplaat, keraamilised plaadid
- lagi - ripplagi
- põrand - põranda tasandus, põrandaküttematt, keraamiline plaat

Hetkeolukord - majaremondi käigus lammutatud kuni aluspõranda ja välisseina kontruktsioonideni puhtaks. Hetkel on vannituppa paigaldatud põrandaküttetorustik ning see osa ka ära valatud. Kahes seinas (maja välisseinad) on soojustatud kivivillaga ning kaetud OSB plaadiga. Üks sisesein on hetkel karkassina olemas, teine on lammutatud ja tuleb üles ehitada (karkass ja kipsplaat ning katteks keraamiline plaat).
Aken on vahetatud, aknapaled on tegemata.

Keraamilised plaadid töö tellija poolt, ülejäänud materjalide osas saab kokku leppida.
Ehitusmaterjalide hind hankes eraldi välja tuua.

Elektritööd saame ise teha, aga võib teha pakkumise, sel juhul see eraldi välja tuua.
Elektritööd - lae ja peegli valgustus, elektrilise põrandakütte paigaldus

Pildid, video ja failid

Hanke korraldaja: eraisik ID39921

Pakkumised

Pakkumisi kokku: 5

Ettevõte Summa Käibemaks Lisatud Vestlus
Kasutaja ikoon ID39963
Pakkuja profiil Väike nool paremale
1 600€ Ei sisalda Ei sisalda 01.10.2015 Vestlus (1)

Pakkumise kirjeldus:

tere pakkumine kõikide vajalike tööde raha!

Kasutaja ikoon ID30127
Pakkuja profiil Väike nool paremale
5 000€ Ei sisalda Ei sisalda 02.10.2015 Vestlus (2)

Pakkumise kirjeldus:

Töö+materjal.Garantii 5aastat

Kasutaja ikoon ID33965
Pakkuja profiil Väike nool paremale
1 475€ Ei sisalda Ei sisalda 02.10.2015 Vestlus (4)

Pakkumise kirjeldus:

Pakutud hind on puhtalt töörahale, ei sisalda materjale, KÄIBEMAKSU ei lisandu. Sisaldab hange.ee teenustasu 44 eurot. Pakkumist tehes pole arvestatud elektritöödega. Kõik tööks vajalikud materjalid-tarvikud hangib ja transpordib töö tellija või siis töö teostaja kuid sellisel juhul tehakse 100 % ettemaks materjalide tarbeks. Töö eest arveldam ... Rohkem

Kasutaja ikoon ID11067
Pakkuja profiil Väike nool paremale
1 940€ Ei sisalda Ei sisalda 02.10.2015 Vestlus (2)

Pakkumise kirjeldus:

Töö kiire ja korraik, tehtud tööle garantii,kvaliteet garanteeritud,hind sisaldab ka elektritöid!

Kasutaja ikoon ID40039
Pakkuja profiil Väike nool paremale
1 460€ Ei sisalda Ei sisalda 02.10.2015 Vestlus (1)

Küsimused hanke korraldajale

Küsimus: private ID36594   29.09.2015 17:41
Milleks topelt põrandaküte ?

Teavita reeglite rikkumisest

Korraldaja vastus: 29.09.2015 18:11

Sellepärast, et üks põrandaküte on keskkütte katla pealt ja teine oleks toetav elektriline põrandaküte kütteperioodiväliseks kasutamiseks.

Teavita reeglite rikkumisest

Lisa küsimus

Lisa küsimus

Minu pakkumine

Reeglid

Pakkumise kirjelduse väli on mõeldud pakkumise detailsemaks lahti kirjutamiseks. Pikema teksti mugavaks sisestamiseks klikkige kasti paremal ülaservas oleval ikoonil.
Pakkumist tehes on keelatud postitada enda kontaktandmeid (nimi, telefon, aadress jne). Me jälgime ja analüüsime pakkumisi, et vältida pettuseid ja reeglite rikkumisi.
Rikkumise puhul kasutajakonto blokeeritakse.

 

Teisi töid samas valdkonnas

Valdkonnas "Vannitubade remont" on 3 aktiivset tööd

Vannitoa ja Wc kapitaalremont

Asukoht: Harjumaa, Tallinn
Aega jäänud: 1p 14h
Tehtud pakkumisi: 4

Vannitoa ehitamine

Asukoht: Harjumaa, Tallinn
Aega jäänud: 15p 14h
Tehtud pakkumisi: 4

Vanemad teated:

Vaata kõiki

Sellel veebilehel kasutatakse küpsiseid. Kasutamist jätkates nõustute küpsiste kasutamisega.

Sulge
 
Minu pakkumine

Reeglid

Pakkumise kirjelduse väli on mõeldud pakkumise detailsemaks lahti kirjutamiseks. Pikema teksti mugavaks sisestamiseks klikkige kasti paremal ülaservas oleval ikoonil.
Pakkumist tehes on keelatud postitada enda kontaktandmeid (nimi, telefon, aadress jne). Me jälgime ja analüüsime pakkumisi, et vältida pettuseid ja reeglite rikkumisi.
Rikkumise puhul kasutajakonto blokeeritakse.